5 Wye Valley View Barns
HA

5 Wye Valley View Barns

By Hamilton Stiller

£ 650,000

Reviews

3 out of 5 stars

Hamilton Stiller says ..

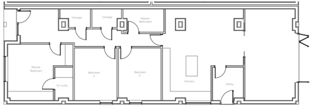
This single-storey converted barn boasts magnificent, far-reaching rural views across rolling hills. The attached home includes a light-streamed open-plan living arrangement which houses a high-quality German kitchen with modern integrated appliances. The three-bedroom home also includes chic Roc...

Property Oracle says ..

This newly constructed property at 5 Wye Valley View Barns in Birch, Herefordshire, offers a modern and contemporary design. The barn conversion style is visually appealing. The interior features an open-plan living area with high ceilings, a modern kitchen, and two well-appointed bathrooms. The images depict a clean, contemporary aesthetic, and the property appears to be well-finished and in good condition. However, it’s important to note that the interior images appear to be digitally staged or virtually furnished, so a physical viewing is necessary to confirm the exact condition. The property comes with an enclosed garden, which is desirable, though its size isn’t explicitly stated and appears modest from the provided images. The location, while offering peace and quiet, is somewhat remote, requiring travel to access local amenities and schools. The distance to the nearest schools, while manageable, is a consideration for potential buyers. The property’s price falls within the range of other recently listed houses in nearby areas, however a direct comparison is complicated by the lack of sufficient data on comparable properties to determine true value for money. The lack of specific information on plot size and the absence of accurate comparable property details makes a precise assessment of overall value slightly problematic.

Therefore, we give this property 6 / 10. *Disclaimer: This is our option and does constitute a recommendation or financial advice. Do your own research. *

Price
7
Condition
8
Location
7
Land
4
Bedrooms
3
Bathrooms
2
Sqft (est)
1,000.00

The heatmap indicates the level of crime in the area. The color of the heatmap indicates the crime severity and recency.

Metrics Year-on-Year

Average area value
495,563.00 £
Increased by 50.87 %
from 328,470.00 £
Est sale value
719,000.00 £
Increased by 186.45 %
from 251,000.00 £
Average area rental value
850.00 £/mo
Decreased by 19.89 %
from 1,061.00 £/mo
Est letting value
1,000.00 £/mo
from 0.00 £/mo
Est rental Yield
2.06 %
Decreased by 46.91 %
from 3.88 %
Crime Rate
0.00 %
from 0.00 %

Agent Activity

  • Hamilton Stiller created the listing.

Nearby Schools

NameTypeOfstedDistance
Garway Primary SchoolCommunity SchoolGood3.04 KM
St Weonard'S AcademyAcademy Converter3.56 KM
Llangattock School MonmouthWelsh Establishment6.88 KM
Dovecote SchoolOther Independent Special SchoolGood7.21 KM
Llangrove Ce AcademyAcademy ConverterGood8.16 KM

Images

Caldicot bungalow... Caldicot bungalow... Caldicot bungalow... Caldicot bungalow... Caldicot bungalow... Caldicot bungalow... Caldicot bungalow... Caldicot bungalow... Caldicot bungalow... Caldicot bungalow... Caldicot bungalow... Caldicot bungalow... Caldicot bungalow...

Nearby Streets

NameAverage PriceAverage SqftDistance
Mountain View £ 000.00 KM

Nearby Listings

AddressPriceTypeScoreDistance
Broad Oak, Hereford, Herefordshire, HR2 8QY £ 1,250,000BUY7 / 100.36 KM
Broad Oak, Hereford £ 650,000BUY7 / 100.53 KM
Southwell Close, Broad Oak £ 665,000BUY7 / 100.57 KM
Broad Oak £ 650,000BUY7 / 100.58 KM
Broad Oak, Hereford, Herefordshire, HR2 £ 650,000BUY8 / 100.76 KM

Nearby Properties

AddressPriceDistance
4 Southwell Close £ 300,0000.61 KM
1 Penrose Green Cottages £ 139,0001.54 KM