Hamilton Smith says ..
NEW LISTING - VERY WELL PRESENTED THREE BEDROOM DETACHED HOUSE, with CONSERVATORY, GARAGE and DRIVEWAY, NO ONWARD CHAIN.
Property Oracle says ..
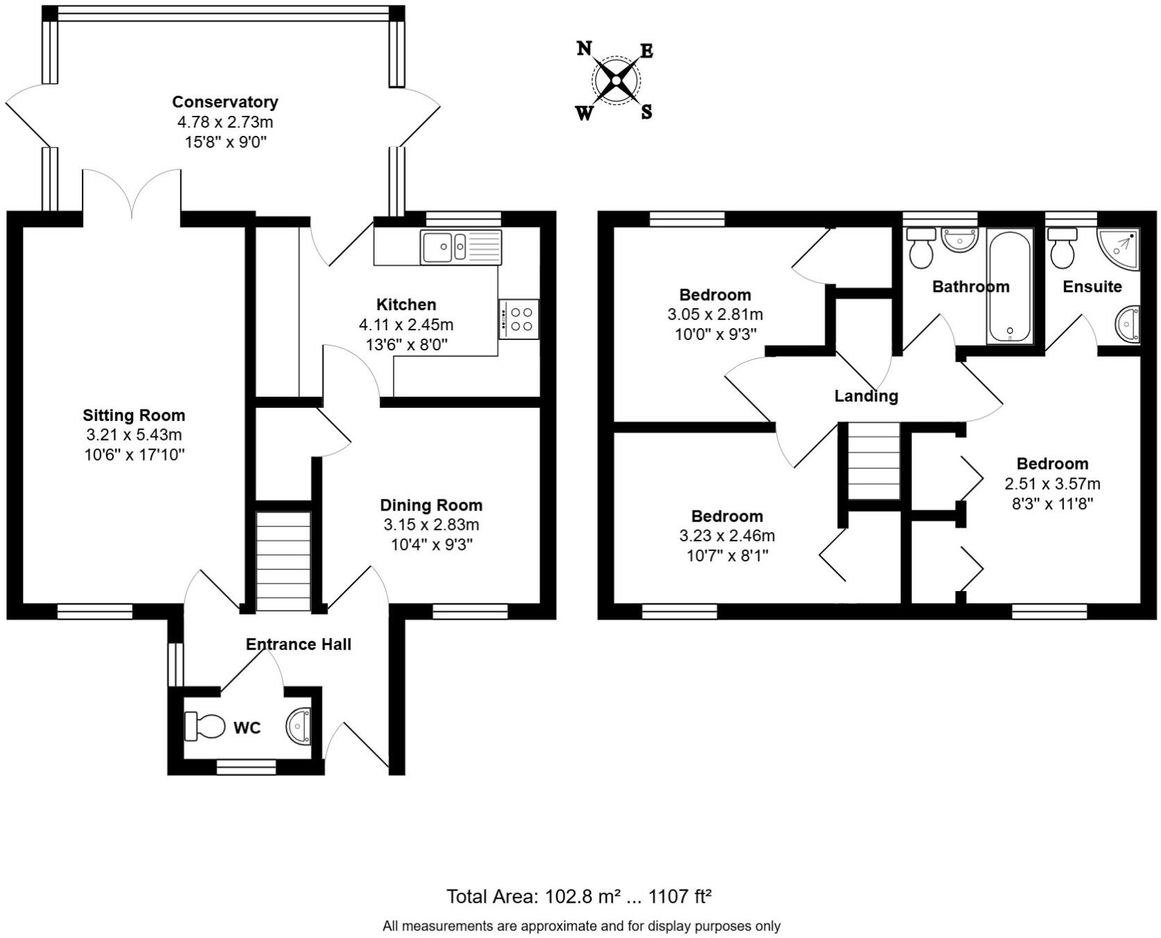
The property is located in Debenham, Suffolk, and is a three-bedroom, three-bathroom house with 877.65 sqft of living space and a 1,107 sqft plot. The property appears to be in good condition based on the provided photos. It benefits from a conservatory and a garden. The list price is £335,000. The average price for properties in the area is £419,545, with an average price per sqft of £284. Nearby properties on Bloomfield Way range in price from £90,000 to £387,500. There are several schools within a reasonable distance, including Debenham High School (0.53km).
Therefore, we give this property 7 / 10. *Disclaimer: This is our option and does constitute a recommendation or financial advice. Do your own research. *
- Price
- 6
- Condition
- 8
- Location
- 7
- Land
- 7
- Bedrooms
- 3
- Bathrooms
- 3
- Sqft (est)
- 877.65
- Lot (est)
- 1,107.00
The heatmap indicates the level of crime in the area. The color of the heatmap indicates the crime severity and recency.
Metrics Year-on-Year
- Average area value
- 507,000.00 £Increased by 14.95 %
- Est sale value
- 467,787.45 £Increased by 87.02 %
- Average area rental value
- 1,400.00 £/moDecreased by 6.67 %
- Est letting value
- 877.65 £/mo
- Est rental Yield
- 3.31 %Decreased by 18.87 %
- Crime Rate
- 483.00 %Unchanged by 0.00 %
Agent Activity
Hamilton Smith created the listing.
Nearby Schools
| Name | Type | Ofsted | Distance |
|---|---|---|---|
| High Suffolk Children'S Centre | Children's Centre | 0.46 KM | |
| Debenham High School | Academy Converter | 0.53 KM | |
| Sir Robert Hitcham Church Of England Voluntary Aided School | Voluntary Aided School | Requires improvement | 0.90 KM |
| Helmingham Primary School And Nursery | Academy Sponsor Led | 5.27 KM | |
| Stonham Aspal Church Of England Voluntary Aided Primary School | Voluntary Aided School | Good | 6.81 KM |
Images
Nearby Streets
| Name | Average Price | Average Sqft | Distance |
|---|---|---|---|
| Cherry Tree Lane | £ 695,000 | 0 | 0.00 KM |
| Priory Lane | £ 575,000 | 0 | 0.00 KM |
| Debenham Public Bridleway 39 | £ 522,500 | 0 | 0.00 KM |
Nearby Listings
| Address | Price | Type | Score | Distance |
|---|---|---|---|---|
| Debenham | £ 450,000 | BUY | 7 / 10 | 0.00 KM |
| Debenham | £ 335,000 | BUY | 7 / 10 | 0.00 KM |
| Bloomfield Way, Debenham, Stowmarket, Suffolk, IP14 | £ 390,000 | BUY | 7 / 10 | 0.05 KM |
| Raedwald Way, Debenham, Stowmarket | £ 475,000 | BUY | 7 / 10 | 0.13 KM |
| Debenham | £ 295,000 | BUY | 7 / 10 | 0.13 KM |
Nearby Properties
| Address | Price | Distance |
|---|---|---|
| 22 Bloomfield Way | £ 177,500 | 0.02 KM |
| 33 Bloomfield Way | £ 90,000 | 0.02 KM |
| 11 Bloomfield Way | £ 305,000 | 0.02 KM |
| 29 Bloomfield Way | £ 204,950 | 0.02 KM |
| 25 Bloomfield Way | £ 249,950 | 0.02 KM |