Station Road, Yeoford, Crediton, Devon, EX17
By British Homesellers
£ 260,000
Reviews
3 out of 5 stars
British Homesellers says ..
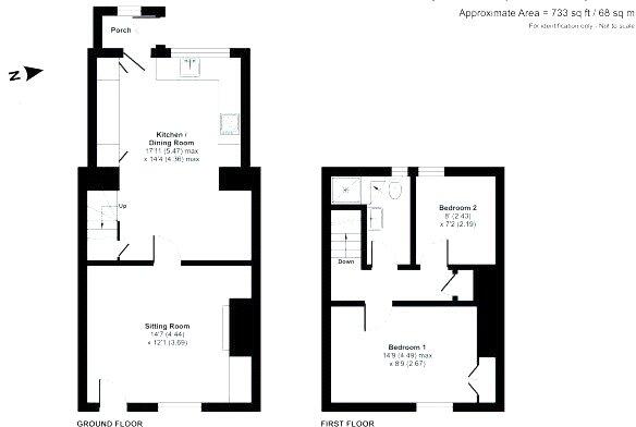
Charming Two-Bedroom Cottage in the Heart of Crediton, Devon Set within the picturesque town of Crediton, this beautifully presented two-bedroom terraced cottage offers character, comfort, and convenience in equal measure. Blending traditional features with modern touches, the home is ...
Property Oracle says ..
Therefore, we give this property 6 / 10. *Disclaimer: This is our option and does constitute a recommendation or financial advice. Do your own research. *
- Price
- 5
- Condition
- 6
- Location
- 7
- Land
- 7
- Bedrooms
- 2
- Bathrooms
- 2
- Sqft (est)
- 733.00
The heatmap indicates the level of crime in the area. The color of the heatmap indicates the crime severity and recency.
Metrics Year-on-Year
- Average area value
- 107,500.00 £Decreased by 65.54 %
- Est sale value
- 129,008.00 £Decreased by 10.20 %
- Average area rental value
- 1,000.00 £/moDecreased by 1.28 %
- Est letting value
- 733.00 £/mo
- Est rental Yield
- 11.16 %Increased by 186.15 %
- Crime Rate
- 321.00 %Unchanged by 0.00 %
from 311,916.00 £
from 143,668.00 £
from 1,013.00 £/mo
from 0.00 £/mo
from 3.90 %
from 321.00 %
Agent Activity
British Homesellers created the listing.
Nearby Schools
| Name | Type | Ofsted | Distance |
|---|---|---|---|
| Yeoford Community Primary School | Academy Converter | 0.29 KM | |
| Copplestone Primary School | Foundation School | Requires improvement | 4.51 KM |
| Cheriton Bishop Community Primary School | Academy Converter | 5.34 KM | |
| Landscore Primary School | Community School | Good | 6.27 KM |
| Queen Elizabeth'S | Academy Converter | Requires improvement | 7.06 KM |
Images
Nearby Streets
| Name | Average Price | Average Sqft | Distance |
|---|---|---|---|
| The Village | £ 0 | 0 | 0.00 KM |
| The Meadows | £ 0 | 0 | 0.00 KM |
| Brick Cottages | £ 1,172,500 | 0 | 0.00 KM |
Nearby Transport
| Name | NLC | TLC | Distance |
|---|---|---|---|
| Yeoford | 5827 | YEO | 0.21 KM |
| Copplestone | 5821 | COP | 5.10 KM |
| Morchard Road | 5825 | MRD | 8.29 KM |
| Crediton | 5754 | CDI | 8.99 KM |
Nearby Listings
| Address | Price | Type | Score | Distance |
|---|---|---|---|---|
| Station Road, Yeoford, Crediton, Devon, EX17 | £ 260,000 | BUY | 6 / 10 | 0.00 KM |
| Station Road, Yeoford, EX17 | £ 250,000 | BUY | 6 / 10 | 0.01 KM |
| The Oaks, Yeoford, Crediton, Devon | £ 300,000 | BUY | 6 / 10 | 0.11 KM |
| Yeoford Meadows, Yeoford, EX17 | £ 400,000 | BUY | 7 / 10 | 0.14 KM |
| Yeoford, Crediton | £ 1,200,000 | BUY | Unknown | 0.15 KM |
Nearby Properties
| Address | Price | Distance |
|---|---|---|
| 6 Station Road | £ 295,000 | 0.00 KM |
| 4 Station Road | £ 175,000 | 0.00 KM |
| 10 Station Road | £ 176,500 | 0.02 KM |
| 8 Station Road | £ 250,000 | 0.02 KM |
| Hazelbank | £ 528,000 | 0.02 KM |