Llanmihangel Farm, Pyle, Bridgend, CF33 6RL
By Herbert R Thomas
£ 3,850,000
Reviews
3 out of 5 stars
Herbert R Thomas says ..
Situation Llanmihangel Farm enjoys a a semi-rural location providing excellent access to a range of amenities with easy access to Junctions 37 and 38 of the M4 and the A48. Please see the attached location plan. Cartref Cartref is a charming four-bedroom barn conversion with stunning ...
Property Oracle says ..
Llanmihangel Farm presents a unique opportunity in the Bridgend area. This substantial property offers a blend of rural living with convenient access to Pyle’s amenities and transport. The extensive grounds, including equestrian facilities, are a major selling point, catering to a specific buyer profile. The property’s interior appears well-maintained and updated, suggesting a comfortable and modern living space. However, the absence of bathroom details and the lack of comparable properties make it challenging to definitively assess the value for money. The asking price is high relative to nearby residential properties. A thorough professional valuation is recommended before making any purchasing decisions. Potential buyers should consider the property’s unique features and its suitability for their specific needs and lifestyle. The large land area and equestrian facilities significantly increase the property’s appeal but also narrow the potential buyer pool. The proximity to Pyle station is a positive, offering convenient access to transport links. The proximity to several schools adds to the property’s family-friendly appeal. Overall, the property is attractive but requires careful consideration of its unique characteristics and price point.
Therefore, we give this property 7 / 10. *Disclaimer: This is our option and does constitute a recommendation or financial advice. Do your own research. *
- Price
- 6
- Condition
- 8
- Location
- 7
- Land
- 10
- Bedrooms
- 4
- Bathrooms
- 0
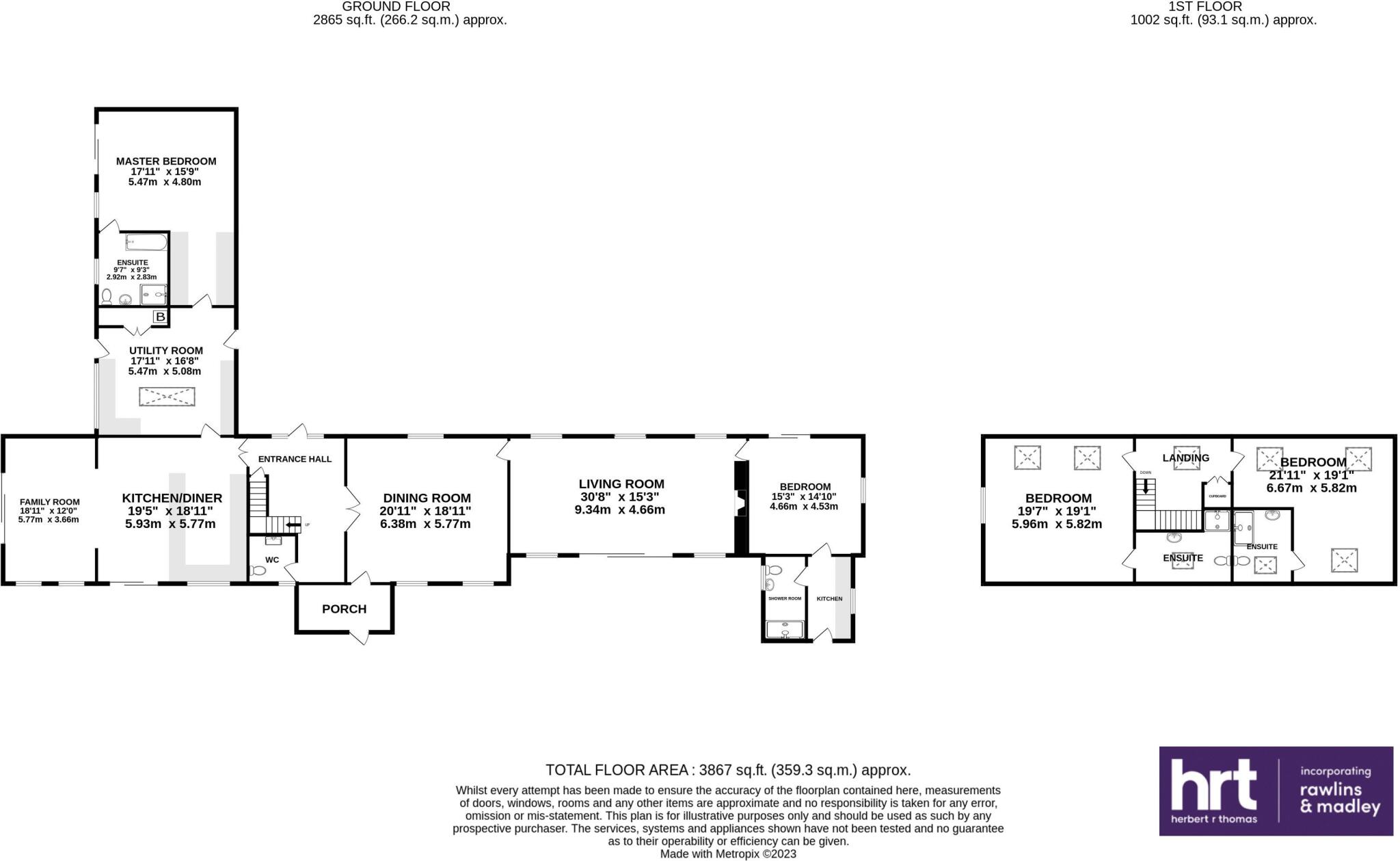
- Sqft (est)
- 3,867.47
The heatmap indicates the level of crime in the area. The color of the heatmap indicates the crime severity and recency.
Metrics Year-on-Year
- Average area value
- 245,000.00 £Decreased by 2.53 %
- Est sale value
- 533,710.86 £Decreased by 44.13 %
- Average area rental value
- 608.00 £/moDecreased by 26.30 %
- Est letting value
- 0.00 £/mo
- Est rental Yield
- 2.98 %Decreased by 24.37 %
- Crime Rate
- 11.00 %Unchanged by 0.00 %
Agent Activity
Herbert R Thomas created the listing.
Nearby Schools
| Name | Type | Ofsted | Distance |
|---|---|---|---|
| Afon-Y-Felin Primary School | Welsh Establishment | 0.49 KM | |
| Ysgol Y Ferch O'R Sger | Welsh Establishment | 0.75 KM | |
| Corneli Primary School | Welsh Establishment | 0.85 KM | |
| Pil Primary School | Welsh Establishment | 0.90 KM | |
| Cynffig Comprehensive School | Welsh Establishment | 2.25 KM |
Images
Nearby Streets
| Name | Average Price | Average Sqft | Distance |
|---|---|---|---|
| Lon-y-Cariadon | £ 0 | 0 | 0.00 KM |
| Ffordd Collwyn | £ 0 | 0 | 0.00 KM |
| Cae'r Cynffig | £ 140,000 | 0 | 0.00 KM |
| St. James' Crescent | £ 0 | 0 | 0.00 KM |
| Tydraw Crescent | £ 275,000 | 0 | 0.00 KM |
Nearby Transport
| Name | NLC | TLC | Distance |
|---|---|---|---|
| Pyle | 4185 | PYL | 0.24 KM |
| Garth (Bridgend County) | 3961 | GMG | 9.97 KM |
Nearby Listings
| Address | Price | Type | Score | Distance |
|---|---|---|---|---|
| Lot 4 - Equestrian facilities set in 50.42 acres, Llanmihangel Farm, Pyle, Bridgend, CF33 6RL | £ 875,000 | BUY | 7 / 10 | 0.00 KM |
| Lot 3 - Cartref, Llanmihangel Farm, Pyle, Bridgend, CF33 6RL | £ 1,100,000 | BUY | 7 / 10 | 0.00 KM |
| Lot 5 - approximately 18.59 acres of land at Llanmihangel Farm, Pyle, Bridgend, CF33 6RL | £ 270,000 | BUY | 8 / 10 | 0.00 KM |
| Llanmihangel Farm, Pyle, Bridgend, CF33 6RL | £ 3,850,000 | BUY | 7 / 10 | 0.00 KM |
| Lot 6 - The Cow Shed, Llanmihangel Farm, Pyle, Bridgend, CF33 6RL | £ 475,000 | BUY | 7 / 10 | 0.00 KM |
Nearby Properties
| Address | Price | Distance |
|---|---|---|
| 77 Marlas Road | £ 115,000 | 0.09 KM |
| 93 Marlas Road | £ 78,000 | 0.09 KM |
| 88 Marlas Road | £ 230,000 | 0.09 KM |
| 85 Marlas Road | £ 102,000 | 0.09 KM |
| 50 Beach Road | £ 68,000 | 0.13 KM |