BR
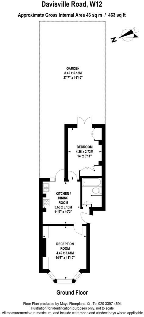
Davisville Road, London
By Brothers Property Management Ltd
£ 1,700
Brothers Property Management Ltd says ..
A spacious garden flat that has been sympathetically refurbished throughout.
- Bedrooms
- 1
- Bathrooms
- 1
The heatmap indicates the level of crime in the area. The color of the heatmap indicates the crime severity and recency.
Metrics Year-on-Year
- Average area value
- 841,000.00 £Increased by 16.53 %
- Average area rental value
- 2,099.00 £/moIncreased by 10.71 %
- Est rental Yield
- 3.00 %Decreased by 4.76 %
- Crime Rate
- 3.00 %Unchanged by 0.00 %
from 721,728.00 £
from 1,896.00 £/mo
from 3.15 %
from 3.00 %
Agent Activity
Brothers Property Management Ltd created the listing.
Nearby Schools
| Name | Type | Ofsted | Distance |
|---|---|---|---|
| Greenside Primary School | Academy Converter | Good | 0.37 KM |
| Cathnor Park Children'S Centre | Children's Centre | 0.48 KM | |
| Hammersmith Academy | Academy Sponsor Led | Good | 0.51 KM |
| Beyondautism Post-19 | Special Post 16 Institution | 0.52 KM | |
| Good Shepherd Rc Primary School | Voluntary Aided School | Outstanding | 0.54 KM |
Images
Nearby Streets
| Name | Average Price | Average Sqft | Distance |
|---|---|---|---|
| Askew Road | £ 0 | 0 | 0.00 KM |
| Elgin Avenue | £ 512,500 | 0 | 0.00 KM |
| Becklow Mews | £ 0 | 0 | 0.00 KM |
| Parnell Close | £ 0 | 0 | 0.00 KM |
| Askham Court | £ 900,000 | 0 | 0.00 KM |
Nearby Transport
| Name | NLC | TLC | Distance |
|---|---|---|---|
| Shepherd'S Bush | 9587 | SPB | 2.54 KM |
| Acton Central | 1404 | ACC | 2.61 KM |
| South Acton | 1452 | SAT | 3.30 KM |
| Kensington (Olympia) | 3092 | KPA | 3.35 KM |
| Acton Main Line | 3000 | AML | 3.37 KM |
Nearby Listings
| Address | Price | Type | Score | Distance |
|---|---|---|---|---|
| Askew Road, Shepherds Bush | £ 461 | RENT | Unknown | 0.04 KM |
| Davisville Road, Shepherd's Bush, London, W12 | £ 2,700 | RENT | Unknown | 0.06 KM |
| Davisville Road, Shepherd's Bush, London, W12 | £ 4,000 | RENT | Unknown | 0.06 KM |
| Starfield Road W12 | £ 4,767 | RENT | Unknown | 0.09 KM |
| Askew Road, London, W12 | £ 4,000 | RENT | Unknown | 0.09 KM |
Nearby Properties
| Address | Price | Distance |
|---|---|---|
| 45 Davisville Road | £ 690,000 | 0.07 KM |
| 21 Davisville Road | £ 1,420,000 | 0.07 KM |
| 41 Davisville Road | £ 76,500 | 0.07 KM |
| 47 Davisville Road | £ 20,500 | 0.07 KM |
| 53 Davisville Road | £ 281,000 | 0.07 KM |