Dovers Green Road, Reigate, Surrey
By Cubitt & West
£ 1,050,000
Reviews
3 out of 5 stars
Cubitt & West says ..
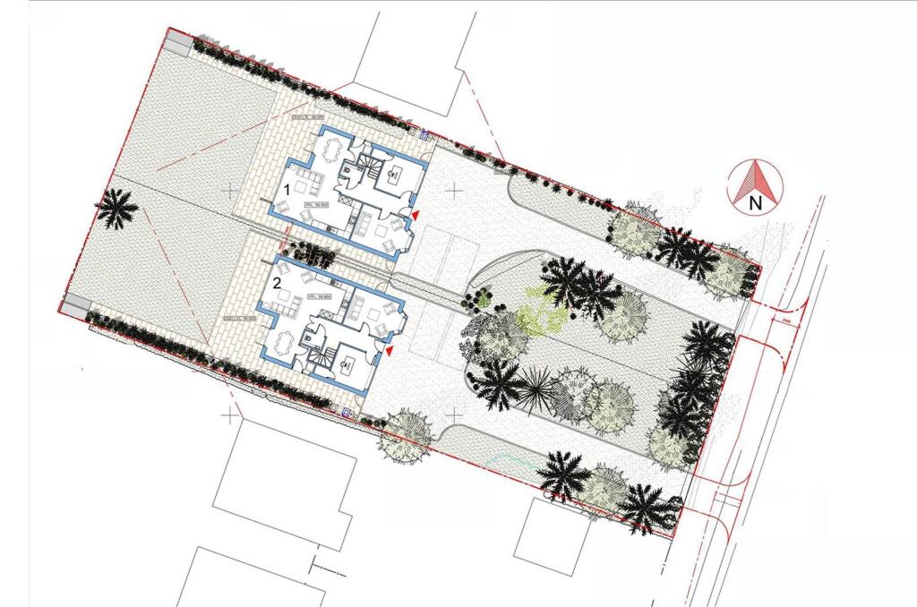
ATTENTION DEVELOPERS !. A fantastic opportunity to create 2 superb homes on a large level building plot 0.376 acre in size. Exceptional position close to local amenities; Planning permission granted ref 24/02356/F for 2 large 3 storey, detached houses ( 2200 sq ft each) 5 bedrooms, 3 bathrooms, 4...
Property Oracle says ..
This property, located on Dovers Green Road in Reigate, Surrey, is listed as land. The property requires significant renovation. While the location is desirable due to its proximity to schools and transportation, the property’s condition and high price point may deter some buyers. The large plot size and garden offer excellent potential for development or enhancement, making it an attractive prospect for those willing to invest in a comprehensive renovation project.
Therefore, we give this property 6 / 10. *Disclaimer: This is our option and does constitute a recommendation or financial advice. Do your own research. *
- Price
- 5
- Condition
- 4
- Location
- 7
- Land
- 8
- Bedrooms
- 0
- Bathrooms
- 0
The heatmap indicates the level of crime in the area. The color of the heatmap indicates the crime severity and recency.
Metrics Year-on-Year
- Average area value
- 562,030.00 £Increased by 4.03 %
- Average area rental value
- 1,714.00 £/moDecreased by 14.56 %
- Est rental Yield
- 3.66 %Decreased by 17.94 %
- Crime Rate
- 28.00 %Unchanged by 0.00 %
Agent Activity
Cubitt & West created the listing.
Nearby Schools
| Name | Type | Ofsted | Distance |
|---|---|---|---|
| Dovers Green Sure Start Children'S Centre | Children's Centre | 0.69 KM | |
| Dovers Green School | Academy Converter | 0.73 KM | |
| Reigate School | Academy Converter | 1.20 KM | |
| Reigate Valley College | Academy Alternative Provision Converter | 1.26 KM | |
| Sandcross Primary School | Academy Converter | 1.46 KM |
Images
Nearby Streets
| Name | Average Price | Average Sqft | Distance |
|---|---|---|---|
| Bridleway UF110/61/10 | £ 0 | 0 | 0.00 KM |
| Castle Close | £ 0 | 0 | 0.00 KM |
| Ashdown Close | £ 665,000 | 0 | 0.00 KM |
| Baron's Way | £ 600,000 | 0 | 0.00 KM |
| Delamere Road | £ 535,000 | 0 | 0.00 KM |
Nearby Transport
| Name | NLC | TLC | Distance |
|---|---|---|---|
| Reigate | 5480 | REI | 2.69 KM |
| Earlswood (Surrey) | 5414 | ELD | 3.58 KM |
| Redhill | 5478 | RDH | 4.68 KM |
| Salfords (Surrey) | 5380 | SAF | 4.71 KM |
| Horley | 5365 | HOR | 7.08 KM |
Nearby Listings
| Address | Price | Type | Score | Distance |
|---|---|---|---|---|
| Dovers Green Road, Reigate, Surrey | £ 1,050,000 | BUY | 6 / 10 | 0.00 KM |
| Dovers Green Road, Reigate, Surrey | £ 1,050,000 | BUY | Unknown | 0.00 KM |
| Dovers Green Road, Reigate, Surrey | £ 693,500 | BUY | Unknown | 0.00 KM |
| Dovers Green Road, Reigate, Surrey, RH2 | £ 725,000 | BUY | 7 / 10 | 0.02 KM |
| Dovers Green Road, Reigate, Surrey | £ 800,000 | BUY | 6 / 10 | 0.11 KM |
Nearby Properties
| Address | Price | Distance |
|---|---|---|
| 8 Beehive Way | £ 710,000 | 0.19 KM |
| 7 Dovers Green Road | £ 630,000 | 0.19 KM |
| 19 Sandcross Lane | £ 470,000 | 0.23 KM |
| 11 Sandcross Lane | £ 310,000 | 0.23 KM |
| 9 Sandcross Lane | £ 211,000 | 0.23 KM |