Whittington Street, Coatbridge, Lanarkshire, ML5
By Aquila Management Services
£ 112,500
Reviews
3 out of 5 stars
Aquila Management Services says ..
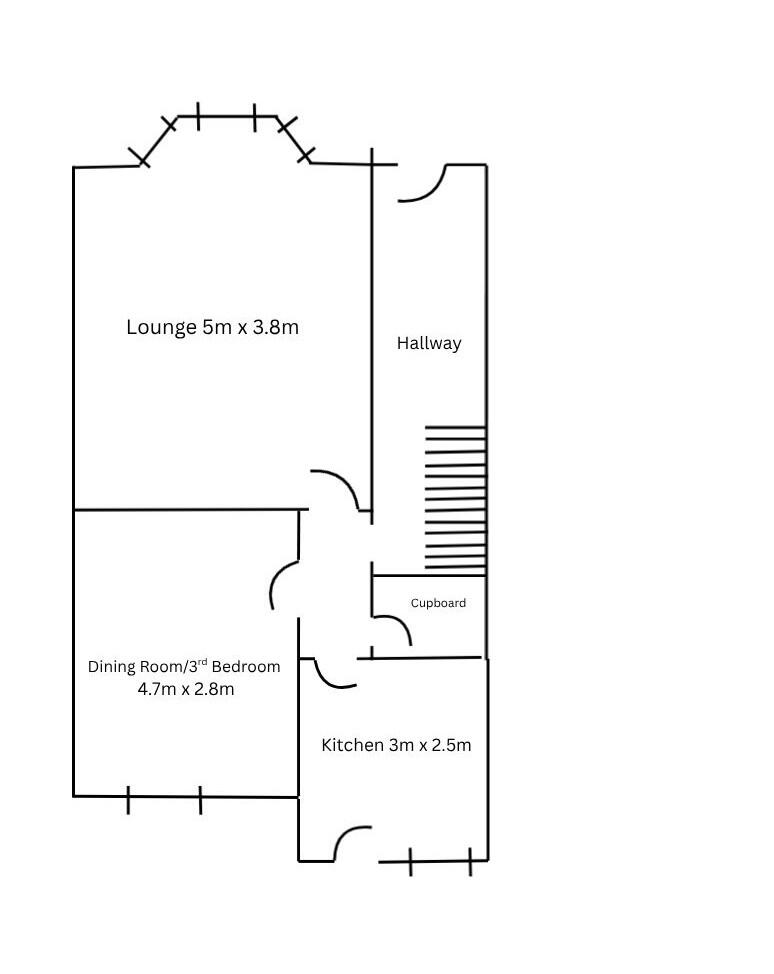
Aquila Management Services are delighted to present this 2/3 bedroom mid terraced Edwardian villa. The flexible accommodation comprises; spacious lounge, dining room/3rd bedroom, 2 bedrooms. Fitted kitchen with door to rear. Family bathroom. Walkway & courtyard. GCH. DG.Early viewing essential.
Property Oracle says ..
This is a terraced property in Coatbridge, with 3 bedrooms and 1 bathroom. The property is located close to local transportation, with Coatbridge Central and Sunnyside stations within walking distance. The interior of the property appears to be in reasonable condition, with a modern bathroom and kitchen. However, the exterior and rear ‘garden’ area require some attention. The property is listed at £112,500, which is below the average price for the area. The property offers good potential for first-time buyers or investors.
Therefore, we give this property 6 / 10. *Disclaimer: This is our option and does constitute a recommendation or financial advice. Do your own research. *
- Price
- 8
- Condition
- 7
- Location
- 7
- Land
- 3
- Bedrooms
- 3
- Bathrooms
- 1
- Sqft (est)
- 426.90
The heatmap indicates the level of crime in the area. The color of the heatmap indicates the crime severity and recency.
Metrics Year-on-Year
- Average area value
- 155,332.00 £Decreased by 27.30 %
- Est sale value
- 109,713.30 £Increased by 12.23 %
- Average area rental value
- 750.00 £/moDecreased by 8.54 %
- Est letting value
- 426.90 £/mo
- Est rental Yield
- 5.79 %Increased by 25.60 %
- Crime Rate
- 0.00 %
Agent Activity
Aquila Management Services created the listing.
Images
Nearby Streets
| Name | Average Price | Average Sqft | Distance |
|---|---|---|---|
| The North Calder Heritage Trail | £ 0 | 0 | 0.00 KM |
| Ross Street | £ 92,500 | 0 | 0.00 KM |
| Forrestburn Road | £ 209,995 | 0 | 0.00 KM |
| Baird Street | £ 159,995 | 0 | 0.00 KM |
| Railway Street | £ 69,995 | 0 | 0.00 KM |
Nearby Transport
| Name | NLC | TLC | Distance |
|---|---|---|---|
| Coatbridge Central | 9747 | CBC | 0.47 KM |
| Coatbridge Sunnyside | 9752 | CBS | 0.63 KM |
| Whifflet | 9753 | WFF | 1.31 KM |
| Blairhill | 9760 | BAI | 1.81 KM |
| Kirkwood | 9766 | KWD | 2.40 KM |
Nearby Listings
| Address | Price | Type | Score | Distance |
|---|---|---|---|---|
| Whittington Street, Coatbridge, Lanarkshire, ML5 | £ 112,500 | BUY | 6 / 10 | 0.00 KM |
| 29 Main Street, Coatbridge, ML5 3AJ | £ 90,000 | BUY | 4 / 10 | 0.17 KM |
| Main Street, Coatbridge | £ 150,000 | BUY | 6 / 10 | 0.20 KM |
| Academy Street, Coatbridge | £ 375,000 | BUY | 6 / 10 | 0.20 KM |
| Academy Street, Coatbridge, ML5 3AU | £ 72,500 | BUY | 5 / 10 | 0.23 KM |