Haywain Drive, Deeping St Nicholas, PE11
By Newton Fallowell
£ 415,000
Reviews
3 out of 5 stars
Newton Fallowell says ..
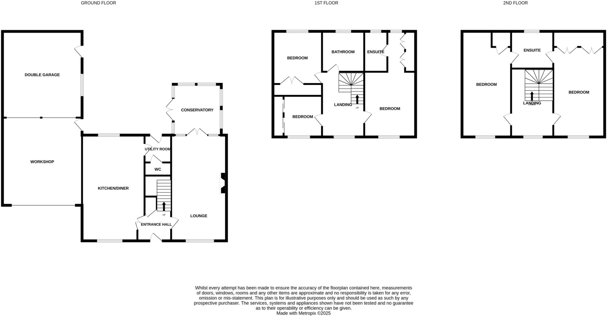
Newton Fallowell are proud to offer for sale with NO ONWARD CHAIN, this five bedroom detached house benefiting from a WORKSHOP & DOUBLE GARAGE. The property is in excellent order throughout and the ground floor briefly comprises of a refitted kitchen / diner, a sperate lounge opening to a cons...
Property Oracle says ..
This is a detached property in Deeping St Nicholas, Lincolnshire, featuring five bedrooms and three bathrooms. The house spans 2,245 square feet and includes a well-maintained garden, a modern kitchen, and a double garage. The property is located within walking distance of Deeping St Nicholas Primary School and is approximately 9.22 KM from Spalding, which offers rail transportation. The house appears to be in good condition, with consistent interior design and a well-kept exterior. The asking price of £415,000 seems reasonable given the size, condition, and location of the property.
Therefore, we give this property 7 / 10. *Disclaimer: This is our option and does constitute a recommendation or financial advice. Do your own research. *
- Price
- 7
- Condition
- 8
- Location
- 7
- Land
- 7
- Bedrooms
- 5
- Bathrooms
- 3
- Sqft (est)
- 2,245.00
The heatmap indicates the level of crime in the area. The color of the heatmap indicates the crime severity and recency.
Metrics Year-on-Year
- Average area value
- 347,778.00 £Increased by 12.57 %
- Est sale value
- 603,905.00 £Decreased by 30.49 %
- Average area rental value
- 850.00 £/moDecreased by 11.83 %
- Est letting value
- 0.00 £/moDecreased by 100.00 %
- Est rental Yield
- 2.93 %Decreased by 21.66 %
- Crime Rate
- 61.00 %Unchanged by 0.00 %
Agent Activity
Newton Fallowell created the listing.
Nearby Schools
| Name | Type | Ofsted | Distance |
|---|---|---|---|
| Deeping St Nicholas Primary School | Community School | Good | 1.27 KM |
| South View Community Primary School | Community School | Requires improvement | 6.59 KM |
| Crowland Childrens Centre | Children's Centre Linked Site | 6.70 KM | |
| The Spalding Monkshouse Primary School | Community School | Good | 7.89 KM |
| The Spalding St John The Baptist Church Of England Primary School | Voluntary Aided School | Good | 8.01 KM |
Images
Nearby Transport
| Name | NLC | TLC | Distance |
|---|---|---|---|
| Spalding | 6388 | SPA | 9.22 KM |
Nearby Listings
| Address | Price | Type | Score | Distance |
|---|---|---|---|---|
| Haywain Drive, Deeping St Nicholas, PE11 | £ 415,000 | BUY | 7 / 10 | 0.00 KM |
| Haywain Drive, Deeping St. Nicholas, SPALDING | £ 440,000 | BUY | 7 / 10 | 0.00 KM |
| Haywain Drive, Deeping St Nicholas, Market Deeping, PE11 | £ 290,000 | BUY | 7 / 10 | 0.03 KM |
| Farmhouse Drive, Deeping St. Nicholas, Spalding, Lincolnshire, PE11 | £ 195,000 | BUY | 6 / 10 | 0.08 KM |
| Farmhouse Drive, Deeping St Nicholas, Market Deeping, PE11 | £ 240,000 | BUY | 6 / 10 | 0.09 KM |
Nearby Properties
| Address | Price | Distance |
|---|---|---|
| 46 Haywain Drive | £ 180,000 | 0.00 KM |
| 32 Haywain Drive | £ 142,000 | 0.00 KM |
| 15 Haywain Drive | £ 215,000 | 0.00 KM |
| 14 Haywain Drive | £ 143,000 | 0.00 KM |
| 5 Haywain Drive | £ 250,000 | 0.00 KM |