Flat 1/1, 93 Dundrennan Road, Battlefield, G42
PA

Flat 1/1, 93 Dundrennan Road, Battlefield, G42

By Pacitti Jones

£ 199,995

Reviews

3 out of 5 stars

Pacitti Jones says ..

Boasting bright and spacious accommodation while retaining much of its original character and charm, this attractive two-bedroom first-floor flat presents an excellent opportunity for the discerning purchaser. Ideally situated within one of the Southside’s most admired and sought-after loca...

Property Oracle says ..

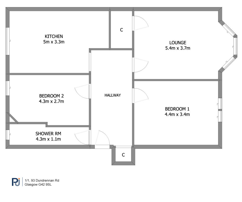
This is a two-bedroom flat located on Dundrennan Road in Langside, Glasgow. The property features a shared garden, one bathroom, and is approximately 730 square feet. The interior is a mix of modern and traditional styles. The location is well-connected with several transportation options nearby. The property is listed at £199,995, which is slightly above the average for the area.

Therefore, we give this property 6 / 10. *Disclaimer: This is our option and does constitute a recommendation or financial advice. Do your own research. *

Price
7
Condition
7
Location
7
Land
6
Bedrooms
2
Bathrooms
1
Sqft (est)
729.58

The heatmap indicates the level of crime in the area. The color of the heatmap indicates the crime severity and recency.

Metrics Year-on-Year

Average area value
189,182.00 £
Decreased by 1.44 %
from 191,952.00 £
Est sale value
172,180.88 £
Increased by 2.16 %
from 168,532.98 £
Average area rental value
1,231.00 £/mo
Increased by 15.59 %
from 1,065.00 £/mo
Est letting value
729.58 £/mo
Unchanged by 0.00 %
from 729.58 £/mo
Est rental Yield
7.81 %
Increased by 17.27 %
from 6.66 %
Crime Rate
0.00 %
from 0.00 %

Agent Activity

  • Pacitti Jones created the listing.

Images

202510310903051.jpg 202510310904131.jpg 202510310904136.jpg 202510310904137.jpg 202510310904135.jpg 202510310904138.jpg 2025103109030511.jpg 202510310904134.jpg 2025103109030512.jpg 2025103109030513.jpg 202510310904130.jpg 2025103109030514.jpg 202510310904133.jpg 2025103109041310.jpg 202510310904139.jpg 202510310904132.jpg 202510310903056.jpg 202510310903055.jpg 2025103109041311.jpg 202510310903057.jpg 202510310903059.jpg 202510310903058.jpg 2025103109030510.jpg 202510310903054.jpg 202510310903053.jpg 202510310903052.jpg 202510310903050.jpg

Nearby Streets

NameAverage PriceAverage SqftDistance
Invergordon Avenue £ 000.00 KM
Overdale Street £ 252,66700.00 KM
Muirskeith Place £ 000.00 KM
Muirskeith Crescent £ 000.00 KM
Millbrae Gardens £ 000.00 KM

Nearby Transport

NameNLCTLCDistance
Mount Florida9819MFL0.84 KM
Langside9818LGS1.06 KM
Cathcart9795CCT1.07 KM
Queens Park (Glasgow)9822QPK1.30 KM
Crosshill9814COI1.65 KM

Nearby Listings

AddressPriceTypeScoreDistance
Flat 1/1, 93 Dundrennan Road, Battlefield, G42 £ 199,995BUY6 / 100.00 KM
99 Dundrennan Road, Flat 2/1, Battlefield, Glasgow, G42 9SL £ 219,000BUY5 / 100.02 KM
87 Dundrennan Road, Flat 0/1, Battlefield, Glasgow, G42 9SL £ 159,000BUYUnknown0.03 KM
Flat 1/2, 86 Dundrennan Road, Battlefield, G42 £ 190,000BUY6 / 100.03 KM
Cartvale Road, Battlefield £ 95,000BUY6 / 100.04 KM