Jack Charles says ..
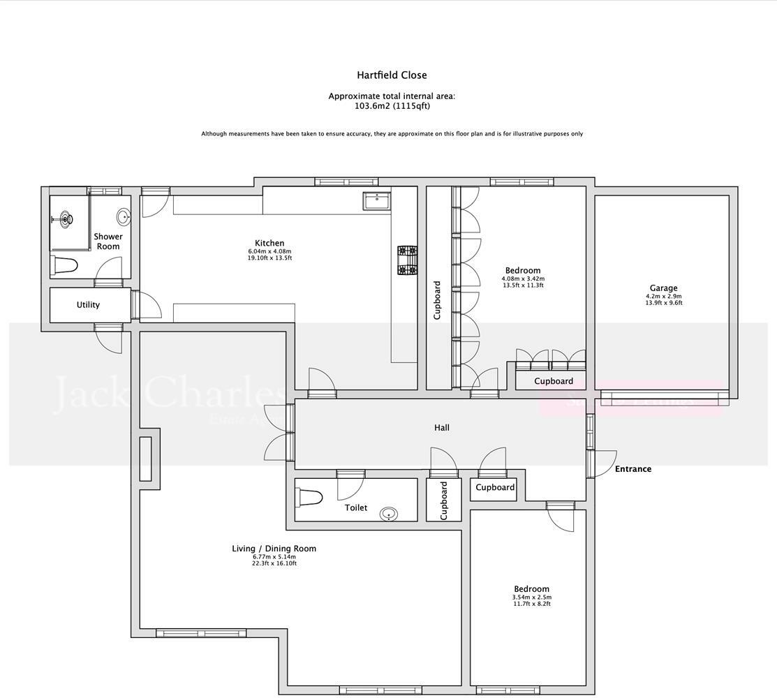
Guide £495,000 - £525,000. Jack Charles are delighted to offer for sale this super deceptively spacious two bedroom detached bungalow being sold with No Forward Chain, located in a sought after residential area in North Tonbridge. The property occupies a corner position and has the poten...
Property Oracle says ..
This two-bedroom detached bungalow in Hartfield Close, Tonbridge, is situated in a convenient location near local schools and Tonbridge train station, making it attractive to families and commuters. The property appears habitable but has dated décor throughout. The kitchen and bathroom are functional but could benefit from modernisation. The garden provides some outdoor space but requires landscaping. The list price of £495,000 appears reasonable given the property type and location, although a precise comparison with similar properties is difficult due to limited information in the provided data. The lack of square footage data on nearby properties makes it hard to determine the price per sqft accurately. Further investigation into the property’s specifics, particularly the plot size and exact condition, would be needed for a more comprehensive evaluation. The absence of significant details regarding the internal condition or the potential for extension may also impact value.
Therefore, we give this property 6 / 10. *Disclaimer: This is our option and does constitute a recommendation or financial advice. Do your own research. *
- Price
- 7
- Condition
- 6
- Location
- 7
- Land
- 4
- Bedrooms
- 2
- Bathrooms
- 1
- Sqft (est)
- 1,115.14
The heatmap indicates the level of crime in the area. The color of the heatmap indicates the crime severity and recency.
Metrics Year-on-Year
- Average area value
- 259,821.00 £Increased by 8.05 %
- Est sale value
- 353,499.38 £Increased by 23.83 %
- Average area rental value
- 1,011.00 £/moIncreased by 5.53 %
- Est letting value
- 1,115.14 £/moUnchanged by 0.00 %
- Est rental Yield
- 4.67 %Decreased by 2.30 %
- Crime Rate
- 14.00 %Unchanged by 0.00 %
Agent Activity
Jack Charles created the listing.
Nearby Schools
| Name | Type | Ofsted | Distance |
|---|---|---|---|
| Woodlands Primary School | Community School | Good | 0.41 KM |
| Cage Green Primary School | Academy Sponsor Led | 1.18 KM | |
| Skills For Independence And Employability Ltd | Special Post 16 Institution | 1.24 KM | |
| Hugh Christie School | Foundation School | Good | 1.49 KM |
| Ymca West Kent | Special Post 16 Institution | 1.94 KM |
Images
Nearby Streets
| Name | Average Price | Average Sqft | Distance |
|---|---|---|---|
| Merlin Close | £ 0 | 0 | 0.00 KM |
| Constable Road | £ 0 | 0 | 0.00 KM |
| Wilson Road | £ 0 | 0 | 0.00 KM |
| Sullivan Road | £ 500,000 | 0 | 0.00 KM |
| MU3 | £ 0 | 0 | 0.00 KM |
Nearby Transport
| Name | NLC | TLC | Distance |
|---|---|---|---|
| Tonbridge | 5229 | TON | 3.39 KM |
| High Brooms | 5235 | HIB | 7.09 KM |
| Hildenborough | 5236 | HLB | 7.42 KM |
| Borough Green And Wrotham | 5130 | BRG | 9.27 KM |
| Leigh (Kent) | 5294 | LIH | 9.49 KM |
Nearby Listings
| Address | Price | Type | Score | Distance |
|---|---|---|---|---|
| Hartfield Close, Tonbridge | £ 495,000 | BUY | 6 / 10 | 0.00 KM |
| Hartfield Close, Tonbridge, Kent, TN10 | £ 500,000 | BUY | 7 / 10 | 0.07 KM |
| Pen Way, Tonbridge, TN10 4JN | £ 469,000 | BUY | 6 / 10 | 0.10 KM |
| North Tonbridge | £ 415,000 | BUY | 6 / 10 | 0.10 KM |
| Higham Lane, Tonbridge, TN10 4JE | £ 695,000 | BUY | 7 / 10 | 0.12 KM |
Nearby Properties
| Address | Price | Distance |
|---|---|---|
| 35 Higham Lane | £ 525,000 | 0.07 KM |
| 9 Hartfield Close | £ 425,000 | 0.07 KM |
| 14 Hartfield Close | £ 335,000 | 0.07 KM |
| 12 Hartfield Close | £ 345,000 | 0.07 KM |
| 15 Hartfield Close | £ 400,000 | 0.07 KM |