GA
The Hurst, Kingsley, Frodsham
By Gascoigne Halman
£ 300,000
Reviews
2 out of 5 stars
Gascoigne Halman says ..
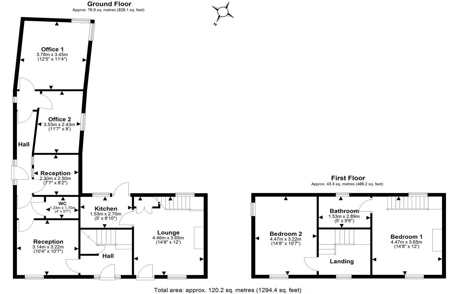
This detached character property, formerly the local doctors surgery, is being offered for sale for the first time in many decades.
Property Oracle says ..
Therefore, we give this property 5 / 10. *Disclaimer: This is our option and does constitute a recommendation or financial advice. Do your own research. *
- Price
- 8
- Condition
- 3
- Location
- 7
- Land
- 4
- Bedrooms
- 2
- Bathrooms
- 1
- Sqft (est)
- 1,023.77
The heatmap indicates the level of crime in the area. The color of the heatmap indicates the crime severity and recency.
Metrics Year-on-Year
- Average area value
- 756,250.00 £Increased by 54.84 %
- Est sale value
- 969,510.19 £Increased by 264.23 %
- Average area rental value
- 1,450.00 £/moIncreased by 11.54 %
- Est letting value
- 1,023.77 £/mo
- Est rental Yield
- 2.30 %Decreased by 27.90 %
- Crime Rate
- 41.00 %Unchanged by 0.00 %
from 488,411.00 £
from 266,180.20 £
from 1,300.00 £/mo
from 0.00 £/mo
from 3.19 %
from 41.00 %
Agent Activity
Gascoigne Halman created the listing.
Nearby Schools
| Name | Type | Ofsted | Distance |
|---|---|---|---|
| Kingsley St John'S Cofe (Va) Primary School | Voluntary Aided School | Good | 0.40 KM |
| Kingsley Community Primary School And Nursery | Community School | Good | 2.28 KM |
| Norley Cofe Va Primary School | Voluntary Aided School | Good | 3.69 KM |
| Aston By Sutton Primary School | Community School | Good | 3.89 KM |
| Crowton Christ Church Cofe Primary School | Voluntary Aided School | Good | 4.16 KM |
Images
Nearby Streets
| Name | Average Price | Average Sqft | Distance |
|---|---|---|---|
| Horseshoe Close | £ 0 | 0 | 0.00 KM |
| Manse Field Road | £ 0 | 0 | 0.00 KM |
| Paddock View | £ 0 | 0 | 0.00 KM |
| Forest Lane | £ 995,000 | 0 | 0.00 KM |
Nearby Transport
| Name | NLC | TLC | Distance |
|---|---|---|---|
| Delamere | 2306 | DLM | 4.28 KM |
| Frodsham | 2284 | FRD | 6.53 KM |
| Runcorn East | 2294 | RUE | 6.79 KM |
| Acton Bridge (Cheshire) | 2287 | ACB | 7.64 KM |
| Mouldsworth | 2158 | MLD | 7.70 KM |
Nearby Listings
| Address | Price | Type | Score | Distance |
|---|---|---|---|---|
| The Hurst, Kingsley, Frodsham | £ 300,000 | BUY | 5 / 10 | 0.00 KM |
| The Hurst, Kingsley, Frodsham | £ 265,000 | BUY | Unknown | 0.04 KM |
| Brookside, Kingsley, Frodsham | £ 450,000 | BUY | 7 / 10 | 0.09 KM |
| Brookside, Kingsley, Frodsham | £ 525,000 | BUY | Unknown | 0.18 KM |
| The Hurst, Kingsley, WA6 | £ 585,000 | BUY | Unknown | 0.19 KM |
Nearby Properties
| Address | Price | Distance |
|---|---|---|
| Shepherds Lodge | £ 360,000 | 0.03 KM |
| Hillcrest | £ 475,000 | 0.03 KM |
| Bank House | £ 225,000 | 0.08 KM |
| 3 Hurst Mews | £ 425,000 | 0.13 KM |
| 1 Hurst Mews | £ 575,000 | 0.13 KM |