EX
Hunters Oak, Hemel Hempstead, HP2 7SY
By eXp UK
£ 350,000
Reviews
2 out of 5 stars
eXp UK says ..
A must see family home in an amazing location - Viewing highly recommended!!!
Property Oracle says ..
Therefore, we give this property 5 / 10. *Disclaimer: This is our option and does constitute a recommendation or financial advice. Do your own research. *
- Price
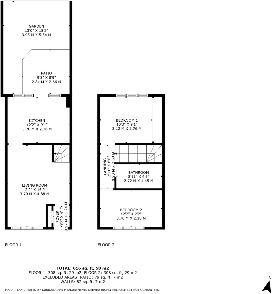
- 3
- Condition
- 6
- Location
- 7
- Land
- 6
- Bedrooms
- 2
- Bathrooms
- 1
- Sqft (est)
- 81.65
The heatmap indicates the level of crime in the area. The color of the heatmap indicates the crime severity and recency.
Metrics Year-on-Year
- Average area value
- 384,571.00 £Increased by 5.66 %
- Est sale value
- 33,803.10 £Decreased by 15.68 %
- Average area rental value
- 1,311.00 £/moDecreased by 19.32 %
- Est letting value
- 81.65 £/moDecreased by 50.00 %
- Est rental Yield
- 4.09 %Decreased by 23.69 %
- Crime Rate
- 22.00 %Unchanged by 0.00 %
from 363,966.00 £
from 40,090.15 £
from 1,625.00 £/mo
from 163.30 £/mo
from 5.36 %
from 22.00 %
Agent Activity
eXp UK created the listing.
Nearby Schools
| Name | Type | Ofsted | Distance |
|---|---|---|---|
| Brockswood Primary School | Community School | Outstanding | 0.51 KM |
| D6 Cedar Tree Family Centre | Children's Centre | 0.60 KM | |
| Holtsmere End Infant And Nursery School | Community School | Good | 0.86 KM |
| Holtsmere End Junior School | Community School | Good | 0.92 KM |
| The Astley Cooper School | Community School | Good | 1.55 KM |
Images
Nearby Streets
| Name | Average Price | Average Sqft | Distance |
|---|---|---|---|
| Rowley Walk | £ 0 | 0 | 0.00 KM |
| Holtsmere End Lane | £ 0 | 0 | 0.00 KM |
| Coral Avenue | £ 0 | 0 | 0.00 KM |
| Regina Gardens | £ 0 | 0 | 0.00 KM |
| Dunster Road | £ 0 | 0 | 0.00 KM |
Nearby Transport
| Name | NLC | TLC | Distance |
|---|---|---|---|
| Apsley | 1430 | APS | 5.78 KM |
| Hemel Hempstead | 1391 | HML | 7.32 KM |
| Kings Langley | 1392 | KGL | 7.72 KM |
Nearby Listings
| Address | Price | Type | Score | Distance |
|---|---|---|---|---|
| Hunters Oak, Hemel Hempstead, HP2 7SY | £ 350,000 | BUY | 5 / 10 | 0.00 KM |
| Aragon Close, Hemel Hempstead | £ 210,000 | BUY | 6 / 10 | 0.10 KM |
| Hunters Oak, Hemel Hempstead, Hertfordshire, HP2 | £ 395,000 | BUY | 7 / 10 | 0.11 KM |
| Aragon Close, HEMEL HEMPSTEAD | £ 200,000 | BUY | 6 / 10 | 0.11 KM |
| Camberwell Place, Hemel Hempstead, HP2 | £ 510,000 | BUY | 7 / 10 | 0.13 KM |
Nearby Properties
| Address | Price | Distance |
|---|---|---|
| 79 Hunters Oak | £ 175,000 | 0.01 KM |
| 81 Hunters Oak | £ 299,000 | 0.01 KM |
| 92 Hunters Oak | £ 370,000 | 0.01 KM |
| 87 Hunters Oak | £ 228,000 | 0.01 KM |
| 86 Hunters Oak | £ 185,000 | 0.01 KM |