Julian Marks says ..
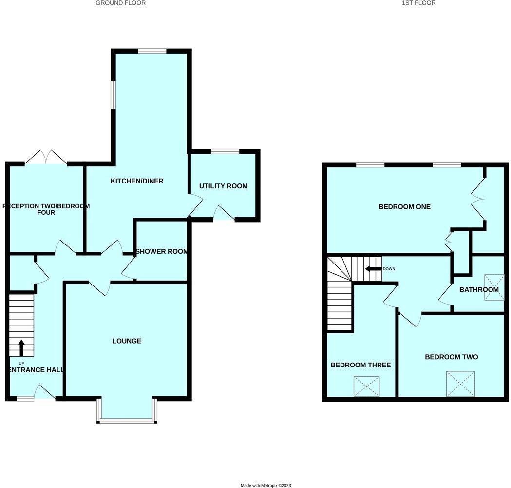
Individual semi-detached house situated in this highly sought-after enclave within Elburton. The accommodation is superbly-presented throughout & briefly comprises an entrance hall, bay-fronted lounge, generous open-plan kitchen/dining room & separate utility, additional ground floor reception ro...
Property Oracle says ..
Therefore, we give this property 7 / 10. *Disclaimer: This is our option and does constitute a recommendation or financial advice. Do your own research. *
- Price
- 7
- Condition
- 8
- Location
- 7
- Land
- 7
- Bedrooms
- 4
- Bathrooms
- 2
- Sqft (est)
- 1,066.00
The heatmap indicates the level of crime in the area. The color of the heatmap indicates the crime severity and recency.
Metrics Year-on-Year
- Average area value
- 311,919.00 £Decreased by 6.41 %
- Est sale value
- 496,756.00 £Increased by 32.76 %
- Average area rental value
- 1,169.00 £/moIncreased by 9.05 %
- Est letting value
- 1,066.00 £/moUnchanged by 0.00 %
- Est rental Yield
- 4.50 %Increased by 16.58 %
- Crime Rate
- 11.00 %Unchanged by 0.00 %
from 333,288.00 £
from 374,166.00 £
from 1,072.00 £/mo
from 1,066.00 £/mo
from 3.86 %
from 11.00 %
Agent Activity
Julian Marks marked this listing as sold.
Julian Marks created the listing.
Nearby Schools
| Name | Type | Ofsted | Distance |
|---|---|---|---|
| Sherford Vale School | Free Schools | 0.50 KM | |
| Elburton Primary School | Academy Converter | Outstanding | 0.96 KM |
| Coombe Dean School | Academy Converter | Requires improvement | 2.40 KM |
| Plymstock Children'S Centre | Children's Centre | 2.41 KM | |
| Plympton St Maurice Primary School | Academy Converter | Good | 2.52 KM |
Images
Nearby Streets
| Name | Average Price | Average Sqft | Distance |
|---|---|---|---|
| Arcadia | £ 0 | 0 | 0.00 KM |
| Pisces Street | £ 300,000 | 0 | 0.00 KM |
| Dorado Street | £ 360,000 | 0 | 0.00 KM |
| Andromeda Grove | £ 230,000 | 0 | 0.00 KM |
| Lyra Vale | £ 0 | 0 | 0.00 KM |
Nearby Transport
| Name | NLC | TLC | Distance |
|---|---|---|---|
| Plymouth | 3580 | PLY | 9.71 KM |
Nearby Listings
| Address | Price | Type | Score | Distance |
|---|---|---|---|---|
| Elburton, Plymouth | £ 385,000 | BUY | 7 / 10 | 0.00 KM |
| Sherford Road, Elburton, Plymouth | £ 550,000 | BUY | 7 / 10 | 0.05 KM |
| Elburton, Plymouth | £ 450,000 | BUY | 7 / 10 | 0.14 KM |
| Candish Drive, Plymouth, Devon | £ 500,000 | BUY | 7 / 10 | 0.19 KM |
| Candish Drive, Elburton, Plymouth | £ 510,000 | BUY | 6 / 10 | 0.20 KM |
Nearby Properties
| Address | Price | Distance |
|---|---|---|
| 38 Sherford Road | £ 320,000 | 0.05 KM |
| 40 Sherford Road | £ 420,000 | 0.05 KM |
| 36 Sherford Road | £ 375,000 | 0.05 KM |
| 42 Sherford Road | £ 470,000 | 0.05 KM |
| 8 Hartwell Avenue | £ 270,000 | 0.11 KM |