Exley Mount, Keighley
By Wildfell Properties Ltd
£ 200,000
Reviews
3 out of 5 stars
Wildfell Properties Ltd says ..
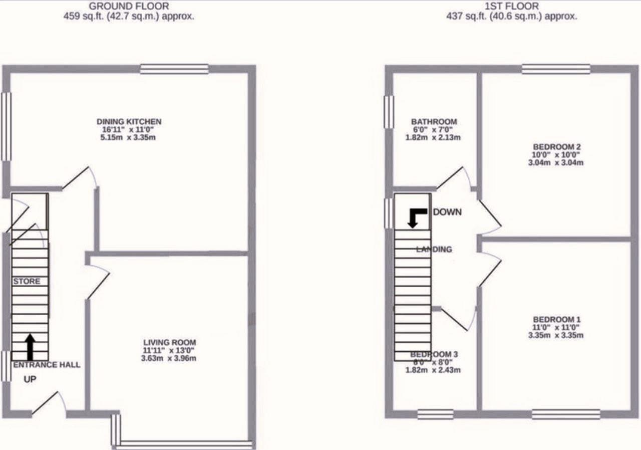
Situated in the popular residential location of Ingrow, this well presented three bedroom semi-detached property would suit a variety of buyers including families and first time buyers alike. The property benefits from a spacious lounge, dining kitchen and under stairs storage cupboard to the...
Property Oracle says ..
This semi-detached property in Keighley, West Yorkshire is listed at £200,000. The property has three bedrooms and one bathroom, and is situated in a residential area with nearby schools and transportation links. While the property itself appears to be in good condition based on the provided images, there is limited information on the plot size and the overall condition of the property. The average house price in the area is £175,631, with an average price per square foot of £170. Given the limited plot size and the lack of information regarding the property’s square footage, a definitive assessment of the property’s value is difficult. However, considering nearby comparable properties, the asking price of £200,000 may be slightly above average for the area.
Therefore, we give this property 6 / 10. *Disclaimer: This is our option and does constitute a recommendation or financial advice. Do your own research. *
- Price
- 6
- Condition
- 8
- Location
- 7
- Land
- 4
- Bedrooms
- 3
- Bathrooms
- 1
- Sqft (est)
- 459.00
The heatmap indicates the level of crime in the area. The color of the heatmap indicates the crime severity and recency.
Metrics Year-on-Year
- Average area value
- 196,000.00 £Increased by 9.26 %
- Est sale value
- 161,109.00 £Increased by 101.72 %
- Average area rental value
- 875.00 £/moIncreased by 15.89 %
- Est letting value
- 459.00 £/mo
- Est rental Yield
- 5.36 %Increased by 6.14 %
- Crime Rate
- 3.00 %Unchanged by 0.00 %
Agent Activity
Wildfell Properties Ltd created the listing.
Nearby Schools
| Name | Type | Ofsted | Distance |
|---|---|---|---|
| Low Fold Children And Family Centre | Children's Centre | 0.12 KM | |
| Beckfoot Nessfield | Academy Sponsor Led | 0.52 KM | |
| Beckfoot Oakbank | Academy Sponsor Led | Requires improvement | 0.56 KM |
| Ingrow Primary School | Community School | Good | 0.57 KM |
| Holycroft Primary School | Academy Converter | 0.87 KM |
Images
Nearby Streets
| Name | Average Price | Average Sqft | Distance |
|---|---|---|---|
| Arnclifffe Avenue | £ 0 | 0 | 0.00 KM |
| Back Wheat Street | £ 115,000 | 0 | 0.00 KM |
| Diamond Street | £ 0 | 0 | 0.00 KM |
| Staveley Way | £ 0 | 0 | 0.00 KM |
| Hardwick Street | £ 65,000 | 0 | 0.00 KM |
Nearby Transport
| Name | NLC | TLC | Distance |
|---|---|---|---|
| Keighley | 8468 | KEI | 2.64 KM |
| Steeton And Silsden | 8469 | SON | 5.21 KM |
| Crossflatts | 8554 | CFL | 8.69 KM |
| Bingley | 8553 | BIY | 9.58 KM |
Nearby Listings
| Address | Price | Type | Score | Distance |
|---|---|---|---|---|
| Exley Mount, Keighley | £ 200,000 | BUY | 6 / 10 | 0.00 KM |
| Exley Mount, Exley | £ 210,000 | BUY | Unknown | 0.01 KM |
| Exley Mount, Keighley | £ 190,000 | BUY | 7 / 10 | 0.01 KM |
| Jubilee Drive, Keighley, West Yorkshire, BD21 | £ 125,000 | BUY | Unknown | 0.07 KM |
| Exley Road, Keighley, West Yorkshire, BD21 | £ 235,000 | BUY | Unknown | 0.07 KM |
Nearby Properties
| Address | Price | Distance |
|---|---|---|
| 23 Exley Mount | £ 192,000 | 0.01 KM |
| 4 Exley Mount | £ 94,000 | 0.01 KM |
| 19 Exley Mount | £ 87,000 | 0.01 KM |
| 12 Exley Mount | £ 95,000 | 0.01 KM |
| 24 Exley Mount | £ 105,000 | 0.01 KM |