Hiltons Estates says ..
This charming one-bedroom property is located in the peaceful village of Sipson, just minutes from Heathrow Airport, making it an ideal spot for frequent travellers. With easy access to West Drayton Train Station, you can quickly reach central London and beyond. The property boasts a comfortable ...
Property Oracle says ..
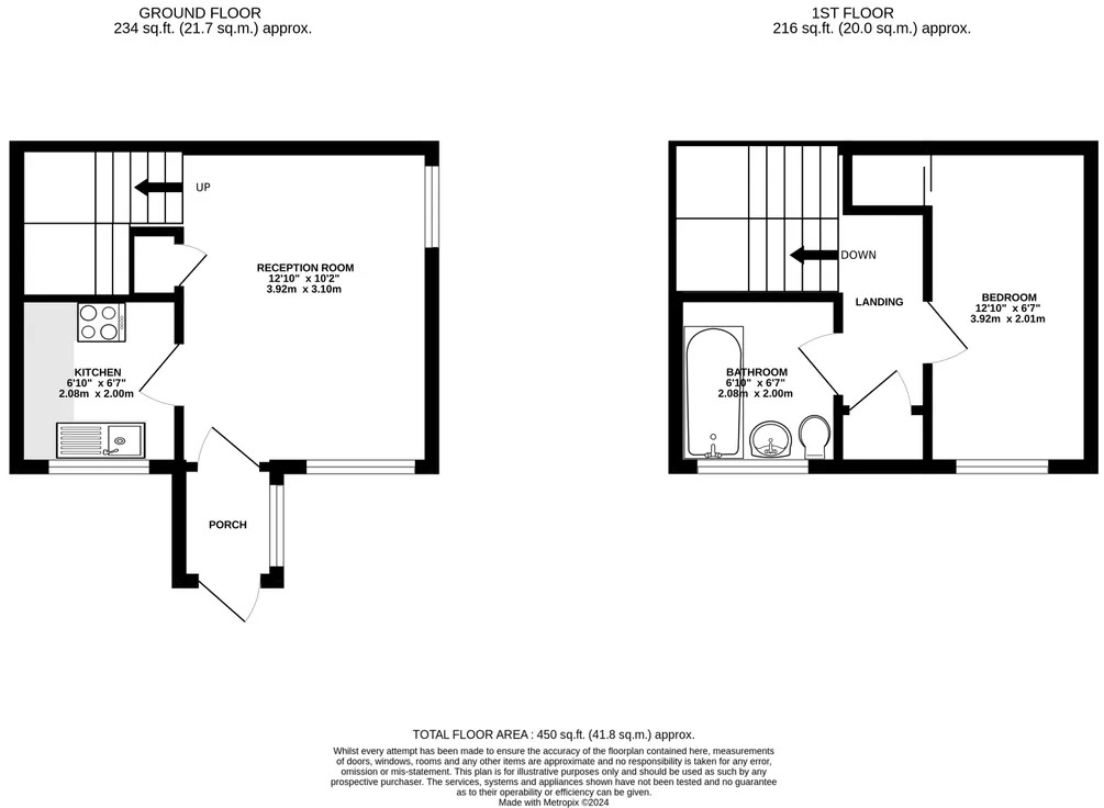
The property is located in Sipson, a suburb of West Drayton, close to Heathrow Airport. The location benefits from relatively easy access to transport links, including Heathrow Terminals 2 & 3 (2.19km), West Drayton station (2.69km), and other Heathrow terminals within a reasonable distance. There are also several schools nearby, including Lady Nafisa School (0.24km) and Heathrow Primary School (0.33km), both rated as ‘Good’ by Ofsted. The property itself appears to be a one-bedroom terraced house with a small garden. Based on the photos, the property seems to be in fair condition, although some minor cosmetic improvements could enhance its overall appeal. The price of £280,000 seems relatively reasonable when compared to the average price of similar properties in the area (£412,240) and the average price per square foot (£591). However, the lack of information regarding the square footage of nearby properties makes a precise comparison challenging. The property benefits from having a small garden, which adds to its value. Overall, the property presents a viable opportunity for first-time buyers or investors looking for a property in a convenient location, close to transport links and schools.
Therefore, we give this property 6 / 10. *Disclaimer: This is our option and does constitute a recommendation or financial advice. Do your own research. *
- Price
- 7
- Condition
- 6
- Location
- 7
- Land
- 4
- Bedrooms
- 1
- Bathrooms
- 1
- Sqft (est)
- 450.00
The heatmap indicates the level of crime in the area. The color of the heatmap indicates the crime severity and recency.
Metrics Year-on-Year
- Average area value
- 354,989.00 £Decreased by 17.80 %
- Est sale value
- 129,600.00 £Decreased by 39.87 %
- Average area rental value
- 1,560.00 £/moDecreased by 9.20 %
- Est letting value
- 450.00 £/moUnchanged by 0.00 %
- Est rental Yield
- 5.27 %Increased by 10.48 %
- Crime Rate
- 20.00 %Unchanged by 0.00 %
Agent Activity
Hiltons Estates created the listing.
Nearby Schools
| Name | Type | Ofsted | Distance |
|---|---|---|---|
| Lady Nafisa School | Other Independent School | Good | 0.24 KM |
| Heathrow Primary School | Community School | Good | 0.33 KM |
| Cherry Lane Primary School | Community School | Good | 0.80 KM |
| Cherry Lane Children'S Centre | Children's Centre | 0.80 KM | |
| West Drayton Academy | Academy Converter | Good | 1.89 KM |
Images
Nearby Streets
| Name | Average Price | Average Sqft | Distance |
|---|---|---|---|
| Wykeham Close | £ 0 | 0 | 0.00 KM |
| Kenwood Close | £ 0 | 0 | 0.00 KM |
| Bell Avenue | £ 0 | 0 | 0.00 KM |
| Oak Avenue | £ 0 | 0 | 0.00 KM |
| Bolton's Lane | £ 0 | 0 | 0.00 KM |
Nearby Transport
| Name | NLC | TLC | Distance |
|---|---|---|---|
| Heathrow Terminals 2 And 3 (Rail Station Only) | 7090 | HXX | 2.19 KM |
| West Drayton | 3174 | WDT | 2.69 KM |
| Heathrow Terminal 4 | 7091 | HAF | 3.86 KM |
| Hayes And Harlington | 3186 | HAY | 4.29 KM |
| Heathrow Terminal 5 | 9846 | HWV | 4.33 KM |
Nearby Listings
| Address | Price | Type | Score | Distance |
|---|---|---|---|---|
| Russell Gardens, Sipson | £ 280,000 | BUY | 6 / 10 | 0.00 KM |
| Russell Gardens, Sipson, West Drayton, UB7 | £ 290,000 | BUY | 6 / 10 | 0.04 KM |
| Sipson, West Drayton | £ 440,000 | BUY | 6 / 10 | 0.05 KM |
| Russell Gardens, Sipson, West Drayton, UB7 | £ 280,000 | BUY | 5 / 10 | 0.06 KM |
| Vineries Close, Sipson, West Drayton | £ 440,000 | BUY | 5 / 10 | 0.10 KM |
Nearby Properties
| Address | Price | Distance |
|---|---|---|
| 20 Russell Gardens | £ 278,000 | 0.00 KM |
| 38 Russell Gardens | £ 277,500 | 0.00 KM |
| 26 Russell Gardens | £ 175,670 | 0.03 KM |
| 18 Russell Gardens | £ 191,710 | 0.03 KM |
| 42 Russell Gardens | £ 131,000 | 0.03 KM |