Stamfords says ..
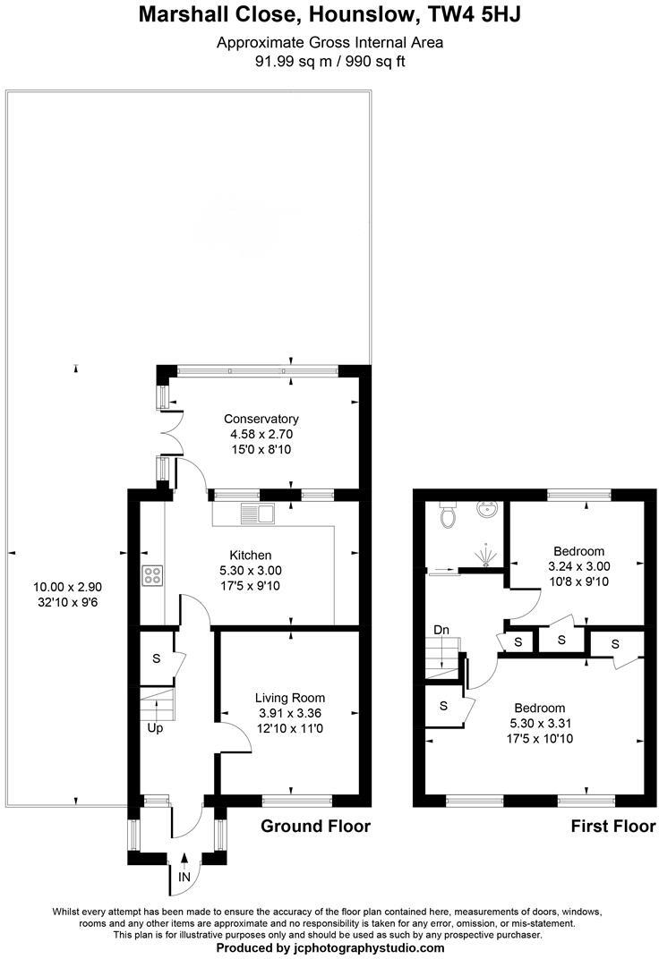
A two bedroom end-of-terrace house with potential to extend to the side and rear (STPP), situated at the end of this ever popular cul-de-sac located off Wellington Road South with access to local shops, bus routes and Heathland school. The accommodation comprises, on the ground floor, lounge, ki...
Property Oracle says ..
Therefore, we give this property 6 / 10. *Disclaimer: This is our option and does constitute a recommendation or financial advice. Do your own research. *
- Price
- 7
- Condition
- 6
- Location
- 7
- Land
- 6
- Bedrooms
- 2
- Bathrooms
- 1
The heatmap indicates the level of crime in the area. The color of the heatmap indicates the crime severity and recency.
Metrics Year-on-Year
- Average area value
- 586,667.00 £Increased by 4.58 %
- Average area rental value
- 1,895.00 £/moDecreased by 3.27 %
- Est rental Yield
- 3.88 %Decreased by 7.40 %
- Crime Rate
- 5.00 %Unchanged by 0.00 %
from 560,993.00 £
from 1,959.00 £/mo
from 4.19 %
from 5.00 %
Agent Activity
Stamfords created the listing.
Nearby Schools
| Name | Type | Ofsted | Distance |
|---|---|---|---|
| Midsummer Park Children'S Centre | Children's Centre | 0.41 KM | |
| Orchard Primary School | Community School | Good | 0.46 KM |
| Suffah Primary School | Other Independent School | 0.47 KM | |
| The Heathland School | Community School | Outstanding | 0.47 KM |
| St Michael And St Martin Catholic Primary School | Voluntary Aided School | Good | 0.64 KM |
Images
Nearby Streets
| Name | Average Price | Average Sqft | Distance |
|---|---|---|---|
| Drayton Close | £ 0 | 0 | 0.00 KM |
| Bramley Way | £ 0 | 0 | 0.00 KM |
| Nursery Gardens | £ 320,000 | 0 | 0.00 KM |
| Orchard Road | £ 690,962 | 0 | 0.00 KM |
| Laburnum Grove | £ 0 | 0 | 0.00 KM |
Nearby Transport
| Name | NLC | TLC | Distance |
|---|---|---|---|
| Hounslow | 5563 | HOU | 1.82 KM |
| Whitton | 5611 | WTN | 2.66 KM |
| Feltham | 5559 | FEL | 3.75 KM |
| Fulwell | 5587 | FLW | 4.44 KM |
| Isleworth | 5592 | ISL | 4.86 KM |
Nearby Listings
| Address | Price | Type | Score | Distance |
|---|---|---|---|---|
| Marshall Close, Hounslow | £ 455,000 | BUY | 6 / 10 | 0.00 KM |
| Beaulieu Close, Hounslow, Greater London, TW4 | £ 299,950 | BUY | 7 / 10 | 0.05 KM |
| Beaulieu Close, Hounslow, TW4 | £ 295,000 | BUY | 5 / 10 | 0.08 KM |
| Beresford Gardens, Hounslow | £ 650,000 | BUY | 5 / 10 | 0.11 KM |
| Roseheath Road, Hounslow | £ 625,000 | BUY | 7 / 10 | 0.12 KM |
Nearby Properties
| Address | Price | Distance |
|---|---|---|
| 15 Beaulieu Close | £ 168,000 | 0.10 KM |
| 21 Beaulieu Close | £ 167,000 | 0.10 KM |
| 11 Beaulieu Close | £ 186,500 | 0.10 KM |
| 13 Beaulieu Close | £ 162,000 | 0.10 KM |
| 16 Beaulieu Close | £ 280,000 | 0.10 KM |