Stanley Road, Broadstairs, Kent, CT10
By Miles & Barr
£ 650,000
Reviews
3 out of 5 stars
Miles & Barr says ..
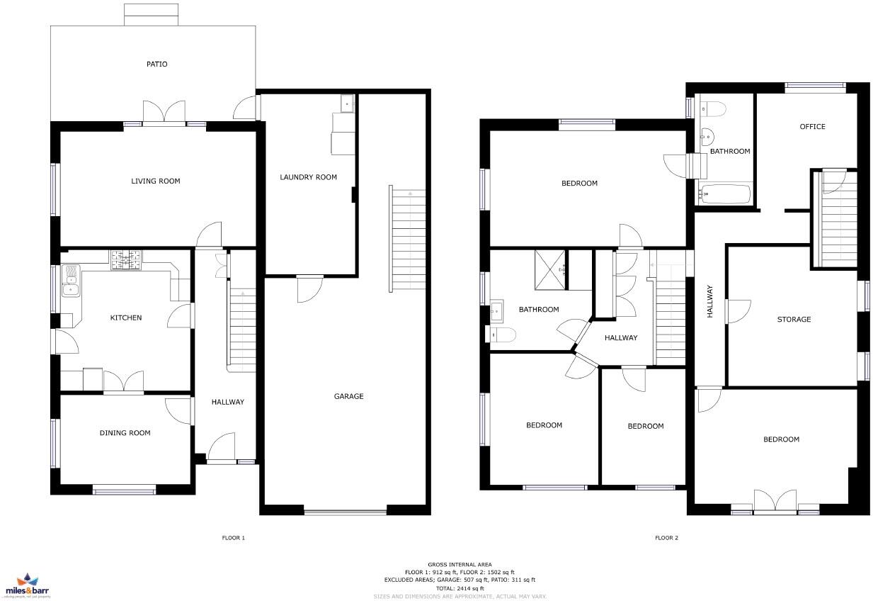
Situated along Stanley Road close to local amenities and the high speed rail link to London is this exceptionally spacious five bedroom detached house, with room to develop downstairs with relevant plannings due to the large garage that was previously a workshop area. Set back from the...
Property Oracle says ..
The property is a 6-bedroom, 2-bathroom detached house located in an excellent location in Broadstairs, Kent. While some areas appear well-maintained and modern, other areas show signs of needing attention. The list price seems potentially high without knowing the square footage, but the number of bedrooms and the presence of a garden would justify a higher price than average. Further information on the square footage would allow for a more precise assessment of the price’s reasonableness.
Therefore, we give this property 7 / 10. *Disclaimer: This is our option and does constitute a recommendation or financial advice. Do your own research. *
- Price
- 6
- Condition
- 7
- Location
- 9
- Land
- 7
- Bedrooms
- 6
- Bathrooms
- 2
The heatmap indicates the level of crime in the area. The color of the heatmap indicates the crime severity and recency.
Metrics Year-on-Year
- Average area value
- 400,000.00 £Decreased by 26.17 %
- Average area rental value
- 895.00 £/moDecreased by 35.00 %
- Est rental Yield
- 2.69 %Decreased by 11.80 %
- Crime Rate
- 5.00 %Unchanged by 0.00 %
Agent Activity
Miles & Barr created the listing.
Nearby Schools
| Name | Type | Ofsted | Distance |
|---|---|---|---|
| St Peter-In-Thanet Cofe Junior School | Voluntary Aided School | Good | 0.45 KM |
| St Joseph'S Catholic Primary School, Broadstairs | Academy Converter | Good | 0.45 KM |
| Callis Grange Nursery And Infant School | Community School | Outstanding | 0.59 KM |
| Callis Grange Children'S Centre | Children's Centre | 0.69 KM | |
| St Mildred'S Primary Infant School | Foundation School | Outstanding | 1.02 KM |
Images
Nearby Streets
| Name | Average Price | Average Sqft | Distance |
|---|---|---|---|
| Stanley Road | £ 465,825 | 0 | 0.00 KM |
| Parkland Court | £ 0 | 0 | 0.00 KM |
| The Paddocks | £ 657,778 | 0 | 0.00 KM |
| Albion Road | £ 358,750 | 0 | 0.00 KM |
| The Oaks | £ 612,833 | 0 | 0.00 KM |
Nearby Transport
| Name | NLC | TLC | Distance |
|---|---|---|---|
| Broadstairs | 5006 | BSR | 0.83 KM |
| Dumpton Park | 5034 | DMP | 2.57 KM |
| Ramsgate | 5023 | RAM | 4.13 KM |
| Margate | 5018 | MAR | 6.91 KM |
Nearby Listings
| Address | Price | Type | Score | Distance |
|---|---|---|---|---|
| Stanley Road, Broadstairs, Kent, CT10 | £ 650,000 | BUY | 7 / 10 | 0.00 KM |
| Stanley Road, Broadstairs | £ 525,000 | BUY | 7 / 10 | 0.03 KM |
| Callis Court Road, Broadstairs, Kent, CT10 | £ 695,000 | BUY | 6 / 10 | 0.07 KM |
| Grange Road, Broadstairs, Kent, CT10 | £ 475,000 | BUY | 7 / 10 | 0.14 KM |
| Worcester Grove, Broadstairs, Kent | £ 950,000 | BUY | 7 / 10 | 0.15 KM |
Nearby Properties
| Address | Price | Distance |
|---|---|---|
| 28 Callis Court Road | £ 695,000 | 0.07 KM |
| 21 Callis Court Road | £ 362,000 | 0.07 KM |
| 26 Callis Court Road | £ 400,000 | 0.07 KM |
| 12 Catherine Way | £ 250,000 | 0.11 KM |
| 5 Catherine Way | £ 177,000 | 0.11 KM |