Little Acre, Sawpit Road, Hurst, Berkshire RG10.
By Knight Frank - New Homes
£ 1,595,000
Reviews
4 out of 5 stars
Knight Frank - New Homes says ..
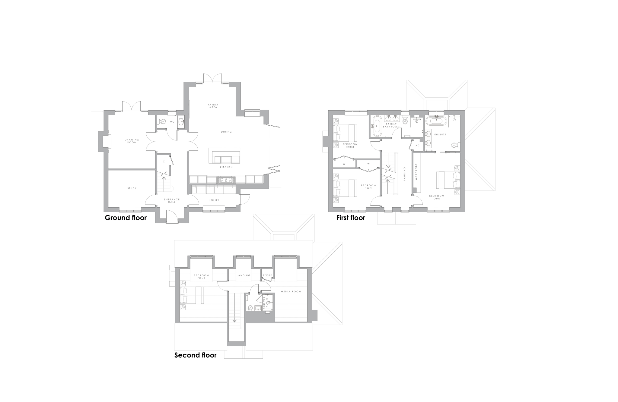
*Last home remaining* A beautiful brand new four double bedroom detached home with three spacious reception rooms and a double carbarn. **This is the last remaining home available at Little Acre** Little Acre is a brand new development of just four brand new homes, situated in a peaceful, semi-...
Property Oracle says ..
This property is a new build detached house located in Hurst, Berkshire. The area is affluent and family-oriented, with good access to local amenities and transport links. The property itself is in excellent condition, appearing modern and well-maintained. The images show a well-designed interior with a large garden. Given the location, condition, and apparent size of the property, the list price is in line with the average prices for similar properties in the area. However, without specific square footage, a definitive price per square foot analysis cannot be conducted.
Therefore, we give this property 9 / 10. *Disclaimer: This is our option and does constitute a recommendation or financial advice. Do your own research. *
- Price
- 8
- Condition
- 10
- Location
- 9
- Land
- 10
- Bedrooms
- 4
- Bathrooms
- 3
The heatmap indicates the level of crime in the area. The color of the heatmap indicates the crime severity and recency.
Metrics Year-on-Year
- Average area value
- 1,167,115.00 £Decreased by 13.16 %
- Average area rental value
- 2,766.00 £/moIncreased by 74.73 %
- Est rental Yield
- 2.84 %Increased by 101.42 %
- Crime Rate
- 2.00 %Unchanged by 0.00 %
Agent Activity
Knight Frank - New Homes created the listing.
Nearby Schools
| Name | Type | Ofsted | Distance |
|---|---|---|---|
| St Nicholas Church Of England Primary, Hurst | Academy Converter | 0.13 KM | |
| Dolphin School | Other Independent School | 1.99 KM | |
| The Colleton Primary School | Community School | Good | 2.05 KM |
| The Starlings Children'S Centre | Children's Centre | 2.09 KM | |
| Winnersh Primary School | Community School | Good | 2.52 KM |
Images
Nearby Streets
| Name | Average Price | Average Sqft | Distance |
|---|---|---|---|
| Church Hill | £ 1,325,000 | 0 | 0.00 KM |
| FP Hurst No.16 | £ 2,350,000 | 0 | 0.00 KM |
| Mallard Close | £ 0 | 0 | 0.00 KM |
| Gooch Close | £ 0 | 0 | 0.00 KM |
Nearby Transport
| Name | NLC | TLC | Distance |
|---|---|---|---|
| Twyford | 3155 | TWY | 2.58 KM |
| Winnersh | 5697 | WNS | 3.33 KM |
| Winnersh Triangle | 5698 | WTI | 4.17 KM |
| Wokingham | 5696 | WKM | 4.94 KM |
| Wargrave | 3158 | WGV | 5.44 KM |
Nearby Listings
| Address | Price | Type | Score | Distance |
|---|---|---|---|---|
| Martineau Lane, Hurst, Reading, Berkshire, RG10 | £ 285,000 | BUY | Unknown | 0.08 KM |
| Church Hill, Hurst, Berkshire, RG10 | £ 1,325,000 | BUY | 7 / 10 | 0.09 KM |
| Martineau Lane, Hurst, RG10 | £ 795,000 | BUY | 8 / 10 | 0.20 KM |
| Barber Close, Hurst, Reading | £ 1,395,000 | BUY | 7 / 10 | 0.26 KM |
| School Road, Hurst, Reading, Berkshire, RG10 | £ 225,000 | BUY | 5 / 10 | 0.30 KM |
Nearby Properties
| Address | Price | Distance |
|---|---|---|
| 42 Martineau Lane | £ 129,000 | 0.15 KM |
| 44 Martineau Lane | £ 766,000 | 0.15 KM |
| 29 Martineau Lane | £ 376,000 | 0.15 KM |
| 33 Martineau Lane | £ 550,000 | 0.15 KM |
| 15 Martineau Lane | £ 465,000 | 0.15 KM |