Tavistock
KI

Tavistock

By Kirby Estate Agents

£ 185,000

Reviews

3 out of 5 stars

Kirby Estate Agents says ..

Charming DUKE OF BEDFORD cottage in TAVISTOCK, offered to the market with NO ONWARD CHAIN.

Property Oracle says ..

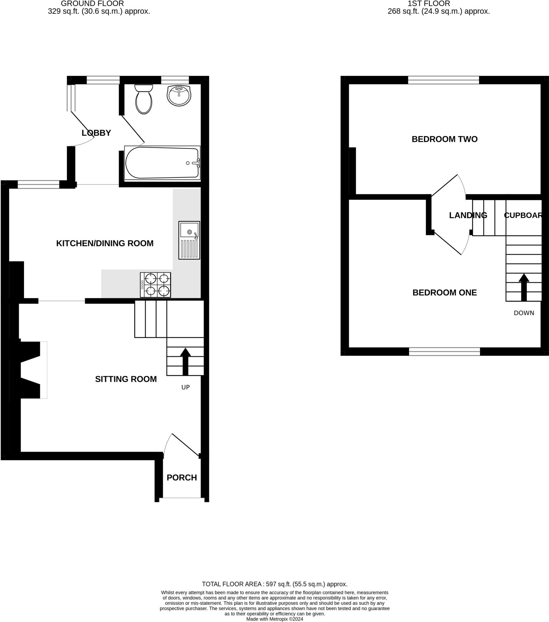
The property is a 2 bedroom terraced house located in Tavistock, Devon. It benefits from being close to Tavistock Primary & Nursery School (0.21km) which is rated ‘Good’ by Ofsted. Tavistock College is also within walking distance (0.34km). The property includes a garden with a shed.

The property shows some signs of needing renovation, particularly in the bedrooms where some damp patches are visible on the walls. The bathroom is relatively modern, although the overall condition of the property suggests it could benefit from some updating. The exterior is traditional, with stone walls.

While the average house price in the area is significantly higher at £331,333, the list price of £185,000 appears lower than average for the area. However, without square footage information for the subject property, a precise price per square foot comparison cannot be made to determine if the list price is reasonable. The lower price may reflect the need for renovation. Nearby comparable properties range in price from £151,000 to £299,950, indicating some price variation in the area.

The location is good, being close to schools and potentially local amenities, although more information on the proximity to shops and transport links would be needed for a more complete assessment. The property also has a garden which is a positive feature.

Therefore, we give this property 6 / 10. *Disclaimer: This is our option and does constitute a recommendation or financial advice. Do your own research. *

Price
7
Condition
6
Location
7
Land
6
Bedrooms
2
Bathrooms
1

The heatmap indicates the level of crime in the area. The color of the heatmap indicates the crime severity and recency.

Metrics Year-on-Year

Average area value
293,023.00 £
Increased by 0.76 %
from 290,805.00 £
Average area rental value
1,170.00 £/mo
Increased by 31.61 %
from 889.00 £/mo
Est rental Yield
4.79 %
Increased by 30.52 %
from 3.67 %
Crime Rate
12.00 %
Unchanged by 0.00 %
from 12.00 %

Agent Activity

  • Kirby Estate Agents created the listing.

Nearby Schools

NameTypeOfstedDistance
Tavistock Primary & Nursery SchoolFoundation SchoolGood0.21 KM
Tavistock CollegeAcademy Converter0.34 KM
Tavistock & District Children'S CentreChildren's Centre0.73 KM
St Rumon'S Church Of England (Vc) Infants SchoolAcademy Converter1.42 KM
Whitchurch Community Primary SchoolFoundation SchoolGood1.71 KM

Images

Outbuilding/Potential Studio Outbuildings Cosy Sitting Room Cosy Sitting Room Kitchen/Breakfast Room Kitchen Bedroom 1 Bedroom 2 Modern Bathroom Sunny Garden Character Fireplace Dining Area Kitchen/Breakfast Room Utility/Rear Lobby Bedroom 1 Bedroom 2 Downstairs Bathroom Bedroom 1 Westbridge Cottages Kitchen Cosy Sitting Room Kitchen/Breakfast Room Kitchen/Breakfast Room Cosy Sitting Room Modern Bathroom Bedroom 2 Sunny Level Gardens Dining Area Utility/Rear Lobby Downstairs Bathroom Outbuildings Outbuilding/Potential Studio Feature Fireplace Bedroom 2

Nearby Streets

NameAverage PriceAverage SqftDistance
Canal Towpath £ 000.00 KM
Dathan Close £ 000.00 KM
Pixon Lane £ 292,50000.00 KM
St Johns Avenue £ 000.00 KM
Lynbridge Court £ 000.00 KM

Nearby Transport

NameNLCTLCDistance
Calstock3562CSK8.05 KM
Gunnislake3563GSL8.06 KM
Bere Alston3549BAS8.29 KM

Nearby Listings

AddressPriceTypeScoreDistance
Tavistock, PL19 8DQ £ 150,000BUY6 / 100.00 KM
Westbridge Cottages, Tavistock £ 230,000BUY6 / 100.00 KM
Tavistock £ 185,000BUY6 / 100.00 KM
Devon £ 200,000BUY6 / 100.00 KM
Westbridge Cottages, Tavistock £ 200,000BUY7 / 100.13 KM

Nearby Properties

AddressPriceDistance
53 Westbridge Cottages £ 200,0000.00 KM
37 Westbridge Cottages £ 190,0000.00 KM
64 Westbridge Cottages £ 137,0000.00 KM
24 Westbridge Cottages £ 125,0000.00 KM
58 Westbridge Cottages £ 142,5000.00 KM