Blacksmith Close, Aldershot, Hampshire, GU12
By Mackenzie Smith
£ 290,000
Reviews
3 out of 5 stars
Mackenzie Smith says ..
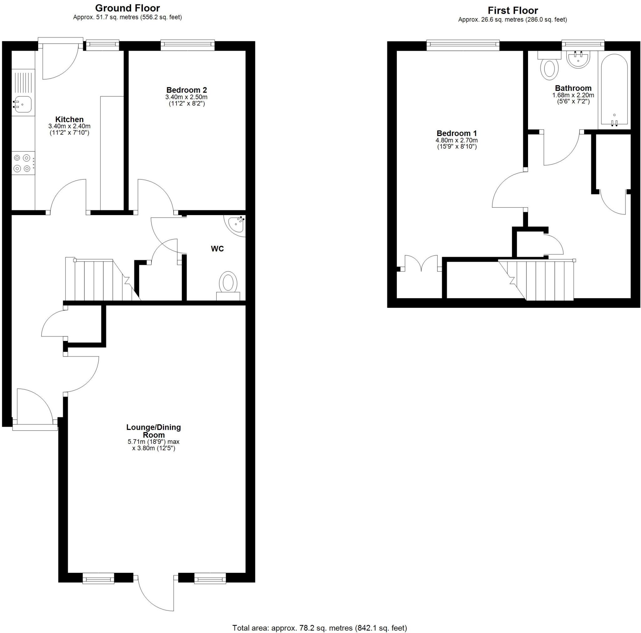
A well-maintained, split-level two-bedroom apartment featuring a generous living room with external access and a kitchen with integrated appliances, plus direct access to a private garden.
Property Oracle says ..
This property is a 2 bedroom, 1 bathroom apartment located in Aldershot, Hampshire. The apartment is in good condition and benefits from a private rear garden. The location is convenient, with nearby schools and transportation links. The list price is slightly below the average price for the area, however, it is important to note that the average price per sqft is higher than that of this property. This suggests that the price may be reasonable considering the size and features of the apartment.
Therefore, we give this property 7 / 10. *Disclaimer: This is our option and does constitute a recommendation or financial advice. Do your own research. *
- Price
- 7
- Condition
- 9
- Location
- 8
- Land
- 7
- Bedrooms
- 2
- Bathrooms
- 1
- Sqft (est)
- 616.06
- Lot (est)
- 841.74
The heatmap indicates the level of crime in the area. The color of the heatmap indicates the crime severity and recency.
Metrics Year-on-Year
- Average area value
- 336,995.00 £Increased by 12.55 %
- Est sale value
- 280,307.30 £Increased by 43.53 %
- Average area rental value
- 1,032.00 £/moDecreased by 12.32 %
- Est letting value
- 616.06 £/moUnchanged by 0.00 %
- Est rental Yield
- 3.67 %Decreased by 22.25 %
- Crime Rate
- 31.00 %Unchanged by 0.00 %
Agent Activity
Mackenzie Smith created the listing.
Nearby Schools
| Name | Type | Ofsted | Distance |
|---|---|---|---|
| Alderwood School | Community School | Good | 0.42 KM |
| Maple Vue Children'S Centre | Children's Centre | 0.45 KM | |
| Walsh Memorial Cofe Controlled Infant School | Voluntary Controlled School | Outstanding | 1.82 KM |
| Walsh Cofe Junior School | Voluntary Controlled School | Requires improvement | 1.82 KM |
| St Michael'S Church Of England Controlled Junior School | Voluntary Controlled School | Requires improvement | 1.88 KM |
Images
Nearby Streets
| Name | Average Price | Average Sqft | Distance |
|---|---|---|---|
| Harvest Lane | £ 0 | 0 | 0.00 KM |
| Alpha Road | £ 0 | 0 | 0.00 KM |
| St Marys Close | £ 0 | 0 | 0.00 KM |
| Needhams Place | £ 0 | 0 | 0.00 KM |
| Lea Way | £ 350,000 | 0 | 0.00 KM |
Nearby Transport
| Name | NLC | TLC | Distance |
|---|---|---|---|
| Aldershot | 5623 | AHT | 2.08 KM |
| North Camp | 5636 | NCM | 2.95 KM |
| Ash | 5641 | ASH | 3.20 KM |
| Ash Vale | 5547 | AHV | 3.21 KM |
| Farnborough (Main) | 5521 | FNB | 5.26 KM |
Nearby Listings
| Address | Price | Type | Score | Distance |
|---|---|---|---|---|
| Blacksmith Close, Aldershot, Hampshire, GU12 | £ 270,000 | BUY | 5 / 10 | 0.00 KM |
| Blacksmith Close, Aldershot, Hampshire, GU12 | £ 290,000 | BUY | 7 / 10 | 0.00 KM |
| Blacksmith Close, Aldershot, Hampshire | £ 280,000 | BUY | 7 / 10 | 0.02 KM |
| Badger Way, Aldershot, Hampshire | £ 210,000 | BUY | 5 / 10 | 0.05 KM |
| Blacksmith Close, Aldershot, Hampshire, GU12 | £ 280,000 | BUY | 7 / 10 | 0.06 KM |
Nearby Properties
| Address | Price | Distance |
|---|---|---|
| 6 Badger Way | £ 210,000 | 0.05 KM |
| 9 Badger Way | £ 333,000 | 0.05 KM |
| 12 Badger Way | £ 249,995 | 0.05 KM |
| 2 Badger Way | £ 180,000 | 0.05 KM |
| 1 Badger Way | £ 218,000 | 0.05 KM |