Wain Gap, South Milford, Leeds
EM

Wain Gap, South Milford, Leeds

By Emsley Mavor

£ 300,000

Reviews

3 out of 5 stars

Emsley Mavor says ..

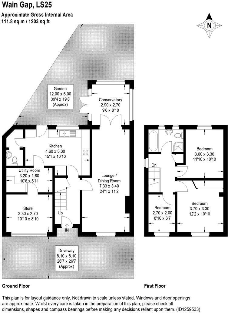
STYLE - Lovely Semi Detached Home HIGHLIGHTS - Beautifully Styled Throughout, Spacious Ground Floor, Garden Room, Cloak Room, Utility Three Bedrooms, Contemporary Bathroom, Enclosed Garden. THREE WORDS - Move. Straight. In!

Property Oracle says ..

This is a well-presented semi-detached property in South Milford. The house benefits from a modern kitchen and bathroom, a conservatory, and a good-sized garden. The property is located close to local schools and train stations, making it a desirable location for families and commuters. The listing price is slightly above the average for the area, but the property offers a generous living space. Overall, this property represents a good opportunity for potential buyers.

Therefore, we give this property 7 / 10. *Disclaimer: This is our option and does constitute a recommendation or financial advice. Do your own research. *

Price
7
Condition
8
Location
7
Land
7
Bedrooms
3
Bathrooms
1
Sqft (est)
1,766.25

The heatmap indicates the level of crime in the area. The color of the heatmap indicates the crime severity and recency.

Metrics Year-on-Year

Average area value
227,143.00 £
Decreased by 21.02 %
from 287,585.00 £
Est sale value
439,796.25 £
Decreased by 24.55 %
from 582,862.50 £
Average area rental value
1,237.00 £/mo
Increased by 11.34 %
from 1,111.00 £/mo
Est letting value
1,766.25 £/mo
Unchanged by 0.00 %
from 1,766.25 £/mo
Est rental Yield
6.54 %
Increased by 40.95 %
from 4.64 %
Crime Rate
11.00 %
Unchanged by 0.00 %
from 11.00 %

Agent Activity

  • Emsley Mavor created the listing.

Nearby Schools

NameTypeOfstedDistance
South Milford Primary SchoolAcademy Converter0.91 KM
Sherburn In Elmet, Athelstan Community Primary SchoolCommunity SchoolGood1.65 KM
Sherburn High SchoolAcademy Converter1.69 KM
Sherburn Children'S CentreChildren's Centre2.73 KM
Sherburn Hungate Primary SchoolAcademy Converter2.91 KM

Images

8_Wain_Gap__21.jpg 8_Wain_Gap__10.jpg 8_Wain_Gap__12.jpg 8_Wain_Gap__6.jpg 8_Wain_Gap__11.jpg 8_Wain_Gap__9.jpg 8_Wain_Gap__13.jpg 8_Wain_Gap__8.jpg 8_Wain_Gap__15.jpg 8_Wain_Gap__28.jpg 8_Wain_Gap__25.jpg 8_Wain_Gap__5.jpg 8_Wain_Gap__2.jpg 8_Wain_Gap__7.jpg 8_Wain_Gap__3.jpg 8_Wain_Gap__14.jpg 8_Wain_Gap__18.jpg 8_Wain_Gap__27.jpg 8_Wain_Gap__17.jpg 8_Wain_Gap__24.jpg 8_Wain_Gap__26.jpg 8_Wain_Gap__20.jpg 8_Wain_Gap__19.jpg

Nearby Streets

NameAverage PriceAverage SqftDistance
Westfield Close £ 000.00 KM
The Sycamores £ 575,00000.00 KM
The Avenue £ 000.00 KM
Well Lane £ 000.00 KM
Woodlands Close £ 000.00 KM

Nearby Transport

NameNLCTLCDistance
South Milford8142SOM1.26 KM
Sherburn-In-Elmet8257SIE3.83 KM
Church Fenton8233CHF6.69 KM
Micklefield8477MIK7.56 KM
Knottingley8546KNO7.69 KM

Nearby Listings

AddressPriceTypeScoreDistance
Wain Gap, South Milford, Leeds £ 300,000BUY7 / 100.00 KM
Wain Gap, South Milford, Leeds £ 280,000BUY7 / 100.01 KM
Westfield Close, South Milford, Leeds £ 290,000BUYUnknown0.11 KM
High Street, South Milford, Leeds £ 1,250,000BUYUnknown0.26 KM
Westfield Lane, South Milford, Leeds £ 525,000BUYUnknown0.33 KM

Nearby Properties

AddressPriceDistance
6 Wain Gap £ 190,0000.03 KM
8 Wain Gap £ 219,9950.03 KM
4 Wain Gap £ 165,0000.03 KM
84 Westfield Lane £ 299,9950.08 KM
86 Westfield Lane £ 234,0000.08 KM