Macclesfield Road, Prestbury
By Gascoigne Halman
£ 1,250,000
Reviews
4 out of 5 stars
Gascoigne Halman says ..
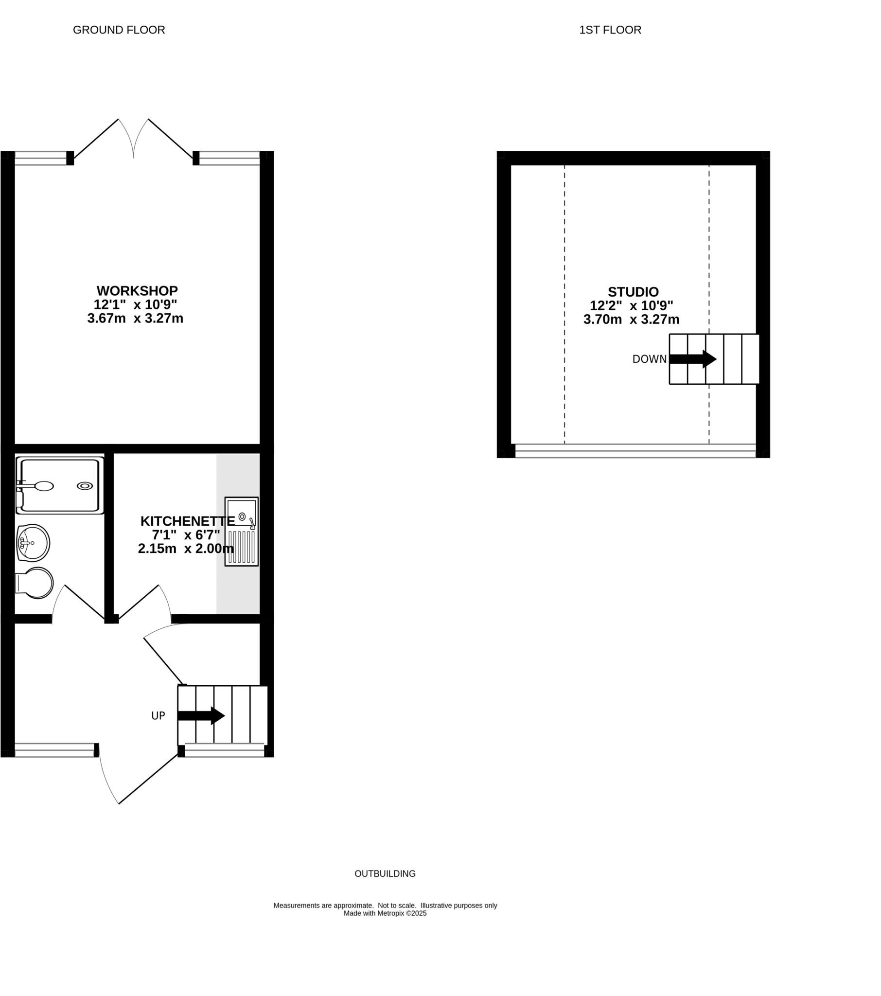
An exceptional detached country home located in the heart of the Prestbury village conservation area, offering elegant interiors, a private walled garden, parking and bursting with character.
Property Oracle says ..
Pear Tree Cottage is a charming detached property located on Macclesfield Road in Prestbury. The house features three bedrooms and three bathrooms. The interior has been modernised, with a contemporary kitchen and stylish bathrooms. The property benefits from a large, well-maintained garden. Prestbury is a sought-after location with good schools and transport links. The property is conveniently located close to Prestbury Cofe Primary School and Prestbury train station. The price is above the local average, but reflects the property’s detached status, good condition and desirable location.
Therefore, we give this property 8 / 10. *Disclaimer: This is our option and does constitute a recommendation or financial advice. Do your own research. *
- Price
- 7
- Condition
- 8
- Location
- 8
- Land
- 9
- Bedrooms
- 3
- Bathrooms
- 3
The heatmap indicates the level of crime in the area. The color of the heatmap indicates the crime severity and recency.
Metrics Year-on-Year
- Average area value
- 1,007,500.00 £Decreased by 19.91 %
- Average area rental value
- 2,733.00 £/moDecreased by 61.29 %
- Est rental Yield
- 3.26 %Decreased by 51.63 %
- Crime Rate
- 39.00 %Unchanged by 0.00 %
Agent Activity
Gascoigne Halman created the listing.
Nearby Schools
| Name | Type | Ofsted | Distance |
|---|---|---|---|
| Prestbury Cofe Primary School | Voluntary Aided School | Good | 0.45 KM |
| Upton Priory School | Academy Converter | Good | 1.90 KM |
| The King'S School In Macclesfield | Other Independent School | 2.12 KM | |
| The Fallibroome Academy | Academy Converter | Outstanding | 2.32 KM |
| Bollinbrook Cofe (A) Primary School | Voluntary Aided School | Requires improvement | 2.62 KM |
Images
Nearby Streets
| Name | Average Price | Average Sqft | Distance |
|---|---|---|---|
| Pearl Street | £ 525,000 | 0 | 0.00 KM |
| Springfields | £ 1,274,975 | 0 | 0.00 KM |
| Peters Close | £ 0 | 0 | 0.00 KM |
| Castle Rise | £ 475,000 | 0 | 0.00 KM |
| Willow Way | £ 695,000 | 0 | 0.00 KM |
Nearby Transport
| Name | NLC | TLC | Distance |
|---|---|---|---|
| Prestbury | 2875 | PRB | 0.87 KM |
| Adlington (Cheshire) | 2939 | ADC | 4.00 KM |
| Macclesfield | 2871 | MAC | 4.57 KM |
| Poynton | 2874 | PYT | 7.17 KM |
| Bramhall | 2944 | BML | 8.16 KM |
Nearby Listings
| Address | Price | Type | Score | Distance |
|---|---|---|---|---|
| Macclesfield Road, Prestbury | £ 1,250,000 | BUY | 8 / 10 | 0.00 KM |
| Macclesfield Road, Prestbury, Cheshire, SK10 | £ 1,350,000 | BUY | 7 / 10 | 0.00 KM |
| The Village, Prestbury | £ 475,000 | BUY | Unknown | 0.05 KM |
| Village Mews, Shirleys Drive, Prestbury, Macclesfield, SK10 | £ 500,000 | BUY | Unknown | 0.15 KM |
| The Village, Prestbury | £ 650,000 | BUY | 7 / 10 | 0.20 KM |
Nearby Properties
| Address | Price | Distance |
|---|---|---|
| 1 The Village | £ 387,500 | 0.10 KM |
| 3 The Village | £ 405,000 | 0.10 KM |
| 4 The Village | £ 362,000 | 0.10 KM |
| Bollin Lodge | £ 475,000 | 0.10 KM |
| Spencer Cottage | £ 1,100,000 | 0.10 KM |