Marsham Way, Gerrards Cross, SL9
By Domus Partners
£ 2,995,000
Reviews
4 out of 5 stars
Domus Partners says ..
Impressive detached property with landscaped gardens, heated pool, and luxurious features. Convenient location near town centre and station. Ideal for modern family living.
Property Oracle says ..
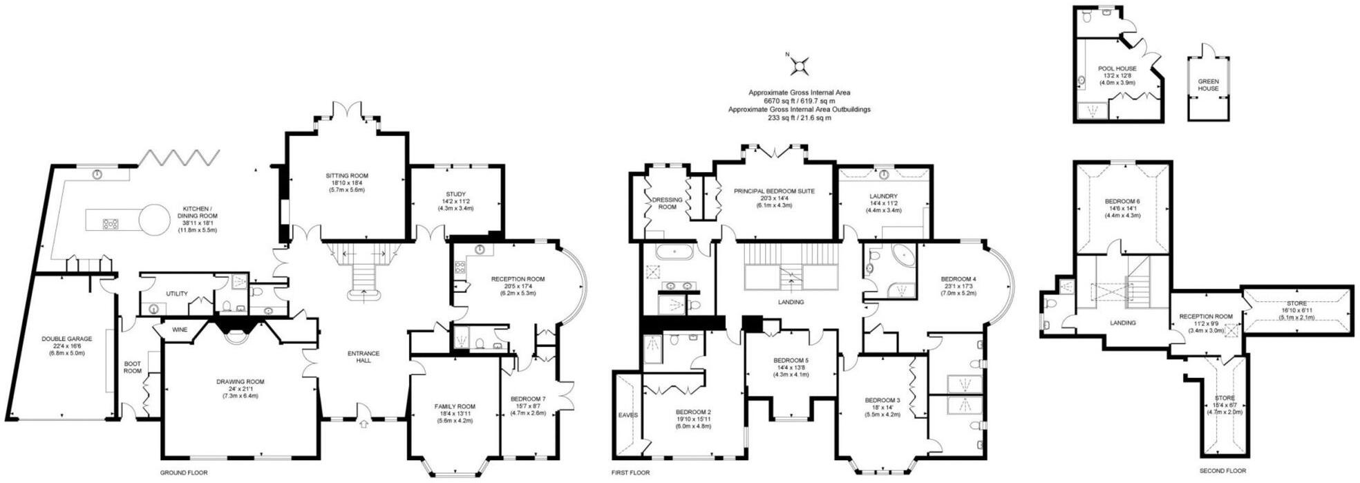
This property is a large family home located in Gerrards Cross, Buckinghamshire. The area is known for its excellent schools and good transport links, including proximity to Gerrards Cross train station. The property itself is in excellent condition, having undergone recent renovations or extensions. It boasts a large garden with a swimming pool, adding significant value. While the list price is high, it is in line with other comparable properties in the area, considering the size, features, and condition. The property offers significant living space, multiple bathrooms and bedrooms, and high-end finishes throughout. The large plot size and private pool are significant selling points. Overall, this property represents a premium offering in a desirable location.
Therefore, we give this property 8 / 10. *Disclaimer: This is our option and does constitute a recommendation or financial advice. Do your own research. *
- Price
- 7
- Condition
- 9
- Location
- 9
- Land
- 8
- Bedrooms
- 7
- Bathrooms
- 7
- Sqft (est)
- 6,028.87
The heatmap indicates the level of crime in the area. The color of the heatmap indicates the crime severity and recency.
Metrics Year-on-Year
- Average area value
- 1,395,354.00 £Increased by 7.30 %
- Est sale value
- 3,713,783.92 £Increased by 11.19 %
- Average area rental value
- 3,163.00 £/moIncreased by 11.02 %
- Est letting value
- 6,028.87 £/moUnchanged by 0.00 %
- Est rental Yield
- 2.72 %Increased by 3.42 %
- Crime Rate
- 5.00 %Unchanged by 0.00 %
Agent Activity
Domus Partners created the listing.
Nearby Schools
| Name | Type | Ofsted | Distance |
|---|---|---|---|
| The Gerrards Cross Cofe School | Academy Converter | Outstanding | 0.60 KM |
| St Mary'S School | Other Independent School | 1.14 KM | |
| Thorpe House School | Other Independent School | 1.60 KM | |
| Gayhurst School | Other Independent School | 2.40 KM | |
| St Joseph'S Catholic Primary School | Academy Converter | 2.63 KM |
Images
Nearby Streets
| Name | Average Price | Average Sqft | Distance |
|---|---|---|---|
| Parkside | £ 0 | 0 | 0.00 KM |
| Orchehill Court | £ 425,000 | 0 | 0.00 KM |
| The Greenway | £ 0 | 0 | 0.00 KM |
Nearby Transport
| Name | NLC | TLC | Distance |
|---|---|---|---|
| Gerrards Cross | 3051 | GER | 1.06 KM |
| Denham Golf Club | 3060 | DGC | 3.24 KM |
| Denham | 3052 | DNM | 5.49 KM |
| Seer Green | 3061 | SRG | 7.31 KM |
| Chorleywood | 546 | CLW | 8.36 KM |
Nearby Listings
| Address | Price | Type | Score | Distance |
|---|---|---|---|---|
| Marsham Way, Gerrards Cross, SL9 | £ 2,995,000 | BUY | 8 / 10 | 0.00 KM |
| Marsham Way, Gerrards Cross, Buckinghamshire | £ 2,995,000 | BUY | 8 / 10 | 0.00 KM |
| Woodlands, Gerrards Cross | £ 1,500,000 | BUY | 8 / 10 | 0.19 KM |
| Vicarage Way, Gerrards Cross, SL9 | £ 3,000,000 | BUY | Unknown | 0.23 KM |
| Vicarage Way, Gerrards Cross, Buckinghamshire, SL9 | £ 3,250,000 | BUY | Unknown | 0.25 KM |
Nearby Properties
| Address | Price | Distance |
|---|---|---|
| 56 Marsham Way | £ 3,150,000 | 0.06 KM |
| 60 Marsham Way | £ 1,940,000 | 0.06 KM |
| 24 Woodlands | £ 500,000 | 0.14 KM |
| 10 Woodlands | £ 600,000 | 0.14 KM |
| 26 Woodlands | £ 1,695,000 | 0.14 KM |