North Street, Martock, TA12
EN

North Street, Martock, TA12

By English Homes

£ 320,000

Reviews

3 out of 5 stars

English Homes says ..

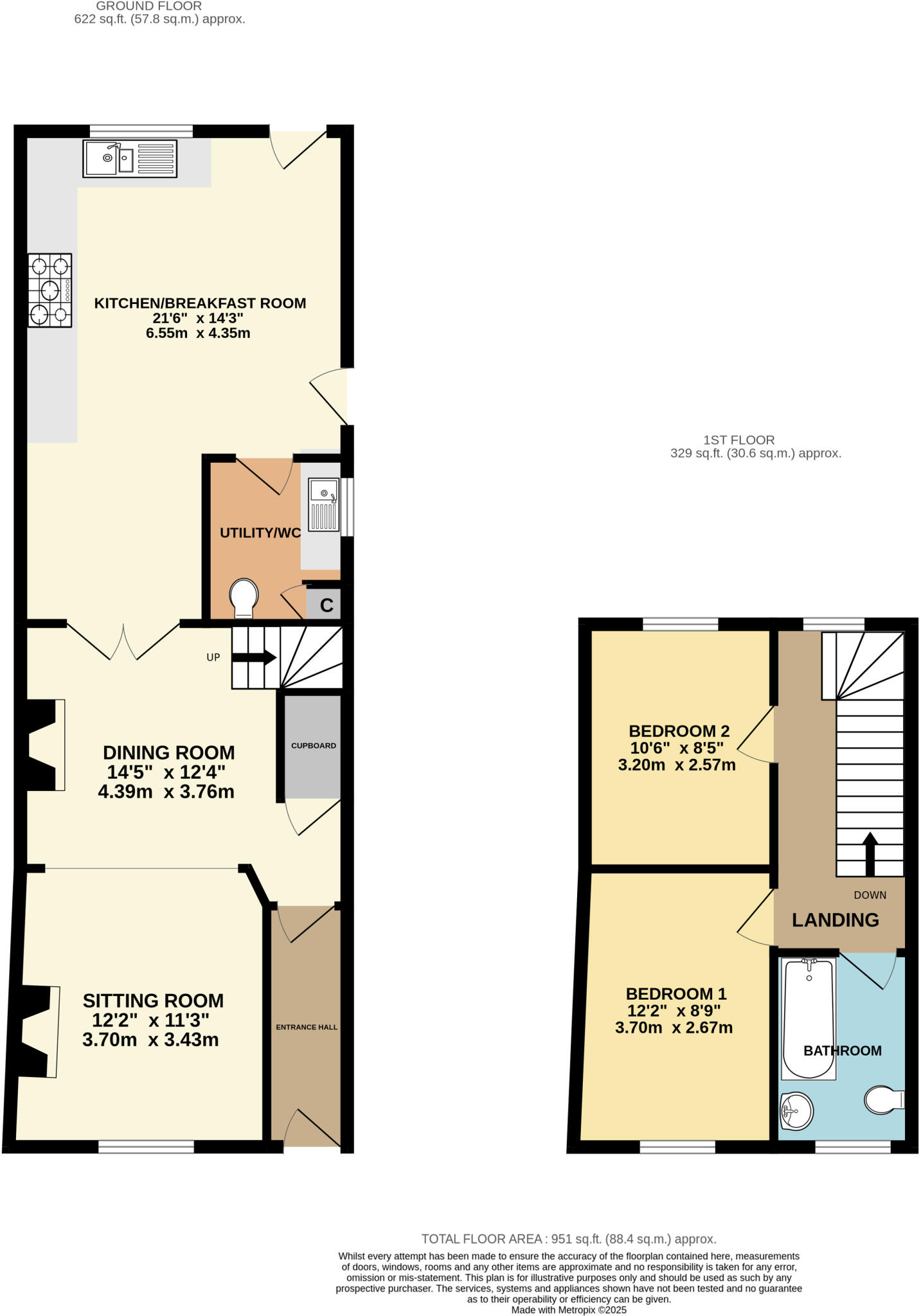
Dating from 1826 Tiebar Cottage is an immaculately presented and spacious end of terrace cottage with a lovely mix of modern and traditional styling. It offers buyers modern, light and airy accommodation and has a very pretty rear garden and terrace. Situated just a few minutes’ walk away...

Property Oracle says ..

Therefore, we give this property 7 / 10. *Disclaimer: This is our option and does constitute a recommendation or financial advice. Do your own research. *

Price
7
Condition
8
Location
7
Land
7
Bedrooms
2
Bathrooms
1
Sqft (est)
815.90

The heatmap indicates the level of crime in the area. The color of the heatmap indicates the crime severity and recency.

Metrics Year-on-Year

Average area value
285,000.00 £
Decreased by 11.80 %
from 323,130.00 £
Est sale value
358,996.00 £
Increased by 48.65 %
from 241,506.40 £
Average area rental value
1,200.00 £/mo
Decreased by 16.67 %
from 1,440.00 £/mo
Est letting value
815.90 £/mo
Unchanged by 0.00 %
from 815.90 £/mo
Est rental Yield
5.05 %
Decreased by 5.61 %
from 5.35 %
Crime Rate
44.00 %
Unchanged by 0.00 %
from 44.00 %

Agent Activity

  • English Homes created the listing.

Nearby Schools

NameTypeOfstedDistance
Martock Church Of England Va Primary SchoolVoluntary Aided SchoolGood0.53 KM
Ash Church Of England Primary SchoolVoluntary Controlled SchoolRequires improvement1.98 KM
Castle Primary SchoolAcademy Sponsor LedGood2.96 KM
Norton-Sub-Hamdon Church Of England Primary SchoolVoluntary Controlled SchoolGood3.91 KM
Stanchester AcademyAcademy ConverterGood4.91 KM

Images

Picture No. 16 Picture No. 13 Picture No. 17 Picture No. 06 Picture No. 14 Picture No. 12 Picture No. 01 Picture No. 02 Picture No. 03 Picture No. 19 Picture No. 04 Picture No. 05 Picture No. 07 Picture No. 09 Picture No. 11 Picture No. 08 Picture No. 10 Picture No. 15 Picture No. 22

Nearby Streets

NameAverage PriceAverage SqftDistance
Beech Road £ 000.00 KM
Little Orchard £ 000.00 KM
Hurridge Close £ 300,00000.00 KM
Pound Lane £ 000.00 KM

Nearby Listings

AddressPriceTypeScoreDistance
North Street, Martock, TA12 £ 320,000BUY7 / 100.00 KM
North Street, MARTOCK, Somerset, TA12 £ 240,000BUYUnknown0.06 KM
North Street, Martock, Somerset, TA12 £ 200,000BUYUnknown0.06 KM
Printers Court, Martock, Somerset, TA12 £ 270,000BUY7 / 100.08 KM
North Street, Martock, TA12 £ 390,000BUY7 / 100.08 KM

Nearby Properties

AddressPriceDistance
58 North Street £ 230,0000.04 KM
72 North Street £ 230,0000.04 KM
68 North Street £ 140,0000.04 KM
76 North Street £ 45,0000.04 KM
74 North Street £ 125,0000.04 KM