Jenkinson Estates says ..
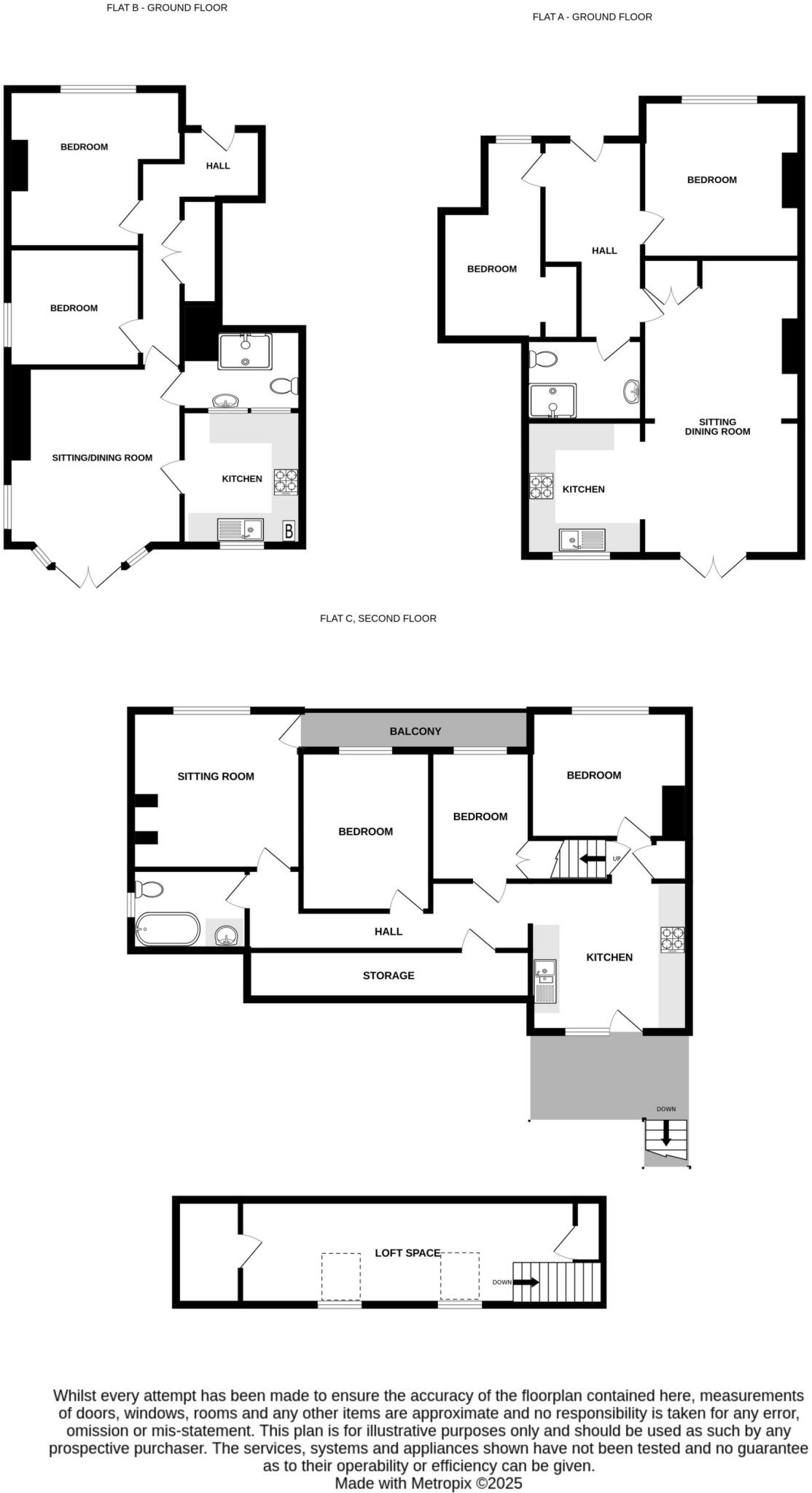
Jenkinson Estates are pleased to bring to the market this substantial property that is currently configured to provide three separate flats, situated in the town centre location of Golf Road, Deal. This investment opportunity comes to the market with no onward chain complications and really must ...
Property Oracle says ..
This is a substantial house located on Golf Road, Deal. The property offers seven bedrooms and three bathrooms. While some areas have been updated, other parts of the house would benefit from modernisation. The property includes a small outdoor space and a shed. The house is near local schools and transportation links, making it a potentially attractive family home. The listing price is higher than the average for the area, reflecting the size and number of bedrooms.
Therefore, we give this property 6 / 10. *Disclaimer: This is our option and does constitute a recommendation or financial advice. Do your own research. *
- Price
- 6
- Condition
- 6
- Location
- 7
- Land
- 5
- Bedrooms
- 7
- Bathrooms
- 3
- Sqft (est)
- 1,030.00
The heatmap indicates the level of crime in the area. The color of the heatmap indicates the crime severity and recency.
Metrics Year-on-Year
- Average area value
- 505,375.00 £Increased by 53.39 %
- Est sale value
- 508,820.00 £Increased by 26.99 %
- Average area rental value
- 1,085.00 £/moDecreased by 20.22 %
- Est letting value
- 1,030.00 £/moUnchanged by 0.00 %
- Est rental Yield
- 2.58 %Decreased by 47.88 %
- Crime Rate
- 11.00 %Unchanged by 0.00 %
Agent Activity
Jenkinson Estates created the listing.
Nearby Schools
| Name | Type | Ofsted | Distance |
|---|---|---|---|
| Sandown School | Academy Converter | 0.11 KM | |
| Brewood Secondary School | Other Independent Special School | Good | 1.28 KM |
| Goodwin Academy | Academy Sponsor Led | 1.78 KM | |
| Deal Parochial Church Of England Primary School | Academy Converter | 1.91 KM | |
| Warden House Primary School | Academy Converter | Outstanding | 2.27 KM |
Images
Nearby Streets
| Name | Average Price | Average Sqft | Distance |
|---|---|---|---|
| Sandown Court | £ 0 | 0 | 0.00 KM |
| Peter Street | £ 0 | 0 | 0.00 KM |
| Dibdin Road | £ 0 | 0 | 0.00 KM |
| Hengist Road | £ 0 | 0 | 0.00 KM |
| Lydden Close | £ 380,833 | 0 | 0.00 KM |
Nearby Transport
| Name | NLC | TLC | Distance |
|---|---|---|---|
| Deal | 5011 | DEA | 0.77 KM |
| Walmer | 5041 | WAM | 3.46 KM |
| Sandwich | 5026 | SDW | 7.66 KM |
| Martin Mill | 5040 | MTM | 8.66 KM |
Nearby Listings
| Address | Price | Type | Score | Distance |
|---|---|---|---|---|
| Golf Road, Deal, CT14 | £ 750,000 | BUY | 6 / 10 | 0.00 KM |
| Golf Road, Deal, Kent | £ 142,500 | BUY | Unknown | 0.02 KM |
| Golf Road, Deal, Kent | £ 165,500 | BUY | 6 / 10 | 0.02 KM |
| Golf Road, Deal, Kent | £ 18,000 | BUY | 4 / 10 | 0.02 KM |
| Golf Road, Deal, Kent | £ 250,000 | BUY | 6 / 10 | 0.02 KM |
Nearby Properties
| Address | Price | Distance |
|---|---|---|
| 6 Golf Road | £ 160,000 | 0.02 KM |
| 25 Golf Road | £ 180,000 | 0.02 KM |
| 21 Golf Road | £ 179,000 | 0.04 KM |
| 20 Golf Road | £ 324,995 | 0.04 KM |
| 35 Golf Road | £ 195,000 | 0.04 KM |