Melbury Road, Harrow
WI

Melbury Road, Harrow

By Wilson Hawkins

£ 610,000

Reviews

2 out of 5 stars

Wilson Hawkins says ..

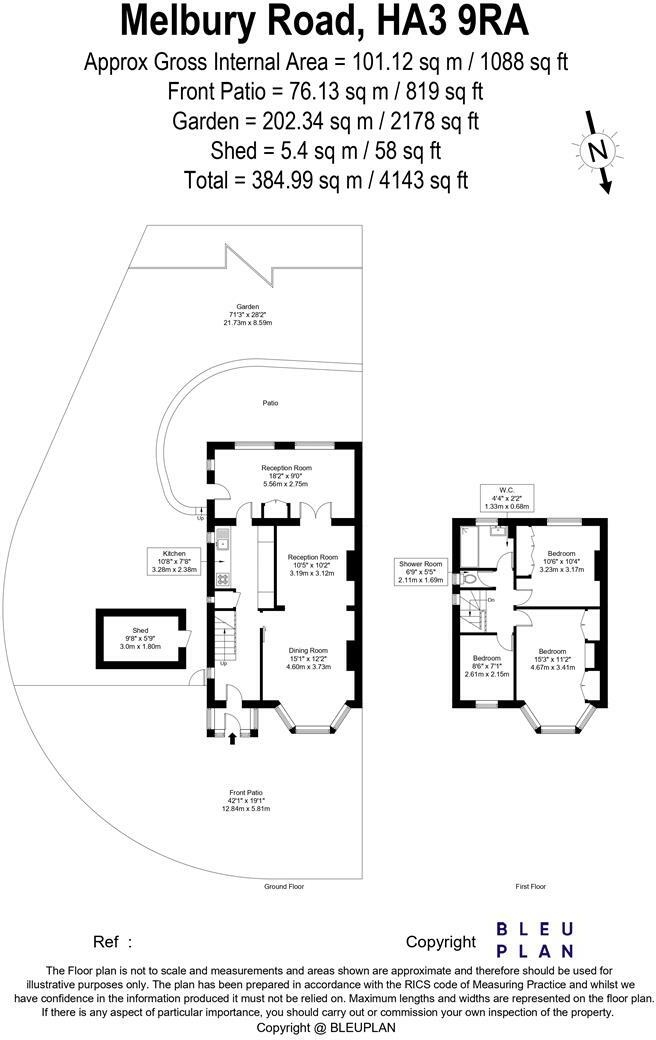
A 3 bedroom semi detached family home with a rear extension well set on a bold corner plot. The property benefits from its own drive to the rear and offers potential for a double storey side extension subject to the usual consents. The property offers scope to update & refurbish and is ...

Property Oracle says ..

This three-bedroom semi-detached house in Melbury Road, Harrow, presents a mixed bag. Its location in Kenton offers a compromise between suburban tranquility and access to London transport links via nearby underground stations, offering a decent balance for commuters and families. The proximity to schools, especially the outstanding Claremont High School, is a significant plus for families with school-aged children. However, more detail about the area’s amenities would provide a more comprehensive assessment.

The property itself is in need of modernisation. While the structure seems sound, the interior design and finishes are visibly dated. Potential buyers should factor in costs for renovations and refurbishment to bring the property to a contemporary standard. The inclusion of a conservatory is a positive feature, expanding the living space. The availability of a garden, while not exceptionally large, adds to the property’s appeal. The image provided shows a garden with potential for improvement and personal landscaping.

The asking price of £610,000 appears relatively aligned with other comparable properties listed in the area. It’s crucial to account for the needed refurbishment costs when determining the overall value and evaluating potential return on investment. More precise data on average prices per square foot in the immediate vicinity would allow for a more definitive valuation. The property would be ideal for a buyer seeking a family home that allows for customization to the buyer’s personal preferences.

Therefore, we give this property 5 / 10. *Disclaimer: This is our option and does constitute a recommendation or financial advice. Do your own research. *

Price
7
Condition
5
Location
6
Land
4
Bedrooms
3
Bathrooms
1
Sqft (est)
1,088.45

The heatmap indicates the level of crime in the area. The color of the heatmap indicates the crime severity and recency.

Metrics Year-on-Year

Average area value
200,667.00 £
Decreased by 60.33 %
from 505,808.00 £
Est sale value
275,377.85 £
Decreased by 29.53 %
from 390,753.55 £
Average area rental value
1,454.00 £/mo
Decreased by 8.95 %
from 1,597.00 £/mo
Est letting value
1,088.45 £/mo
Unchanged by 0.00 %
from 1,088.45 £/mo
Est rental Yield
8.70 %
Increased by 129.55 %
from 3.79 %
Crime Rate
15.00 %
Unchanged by 0.00 %
from 15.00 %

Agent Activity

  • Wilson Hawkins marked this listing as sold.

  • Wilson Hawkins created the listing.

Nearby Schools

NameTypeOfstedDistance
JfsVoluntary Aided SchoolSpecial Measures0.52 KM
Sinai Jewish Primary SchoolVoluntary Aided SchoolGood0.59 KM
St Bernadette'S Catholic Primary SchoolAcademy Converter0.83 KM
Claremont High SchoolAcademy ConverterOutstanding1.05 KM
Kingsbury High SchoolAcademy ConverterGood1.22 KM

Images

7 Melbury Road - BxR8btk9J6MzqBxYtygT.jpg 7 Melbury Road - 1risTip15i1jnZAxWKfg.jpg 7 Melbury Road - 4p4WuOoW3DjZch7w5OJt.jpg 7 Melbury Road - ihMhysNqxZ9WolsJeD8D.jpg 7 Melbury Road - 97uifVh511i6pjZpN0oS.jpg 7 Melbury Road - aef7SMHGVUZZg9iz3Lzm.jpg 7 Melbury Road - RLvehymd0qWseuueEGw8.jpg 7 Melbury Road - bUHa9zdLUdiEww4Naz0g.jpg 7 Melbury Road - PxpFNk81Im6dXtUyP5jj.jpg 7 Melbury Road - HealUJCQSG0Ts6cWvyi9.jpg 7 Melbury Road - DPJuaAyinPfjXUlfdqGH.jpg 7 Melbury Road - Guveky9N3yJb0DStnhIK.jpg 7 Melbury Road - hVuYMmq89tHsVOcDpp52.jpg 7 Melbury Road - QYYpBeIkbhDDXtaUvHmx.jpg 7 Melbury Road - wLlpbStBHOAwVvEm8wle.jpg

Nearby Streets

NameAverage PriceAverage SqftDistance
Gore Court £ 383,00000.00 KM
Page Close £ 000.00 KM
May Lane £ 000.00 KM
Wilson Drive £ 000.00 KM
Sutherland Court £ 000.00 KM

Nearby Transport

NameNLCTLCDistance
South Kenton1453SOK3.09 KM
North Wembley1422NWB3.25 KM
Wembley Stadium1509WCX3.33 KM
Kenton1399KNT3.62 KM
Wembley Central1423WMB3.80 KM

Nearby Listings

AddressPriceTypeScoreDistance
Melbury Road, HARROW, Greater London, HA3 £ 575,000BUY5 / 100.03 KM
712D Kenton Road, Kenton, Harrow, HA3 9QX £ 165,000BUY4 / 100.14 KM
712D Kenton Road, Harrow, Middlesex, HA3 9QX £ 120,000BUY4 / 100.14 KM
Robin Grove, Harrow, Middlesex, HA3 £ 550,000BUY6 / 100.16 KM
Dorchester Way, Harrow, Middlesex, HA3 £ 725,000BUYUnknown0.19 KM

Nearby Properties

AddressPriceDistance
10 Melbury Road £ 565,0000.02 KM
14 Melbury Road £ 124,0000.02 KM
1a Melbury Road £ 360,0000.02 KM
1 Melbury Road £ 670,5000.02 KM
16 Melbury Road £ 575,0000.02 KM