Bloomsbury Lane, Timperley, Altrincham
By Gascoigne Halman
£ 349,900
Reviews
3 out of 5 stars
Gascoigne Halman says ..
This wonderful and charming period terrace style home offers well-proportioned accommodation right in the heart of Timperley village! The property boasts two well-proportioned reception rooms, two double bedrooms, AND two bathrooms, making this extremely desirable. Don't miss out on this ...
Property Oracle says ..
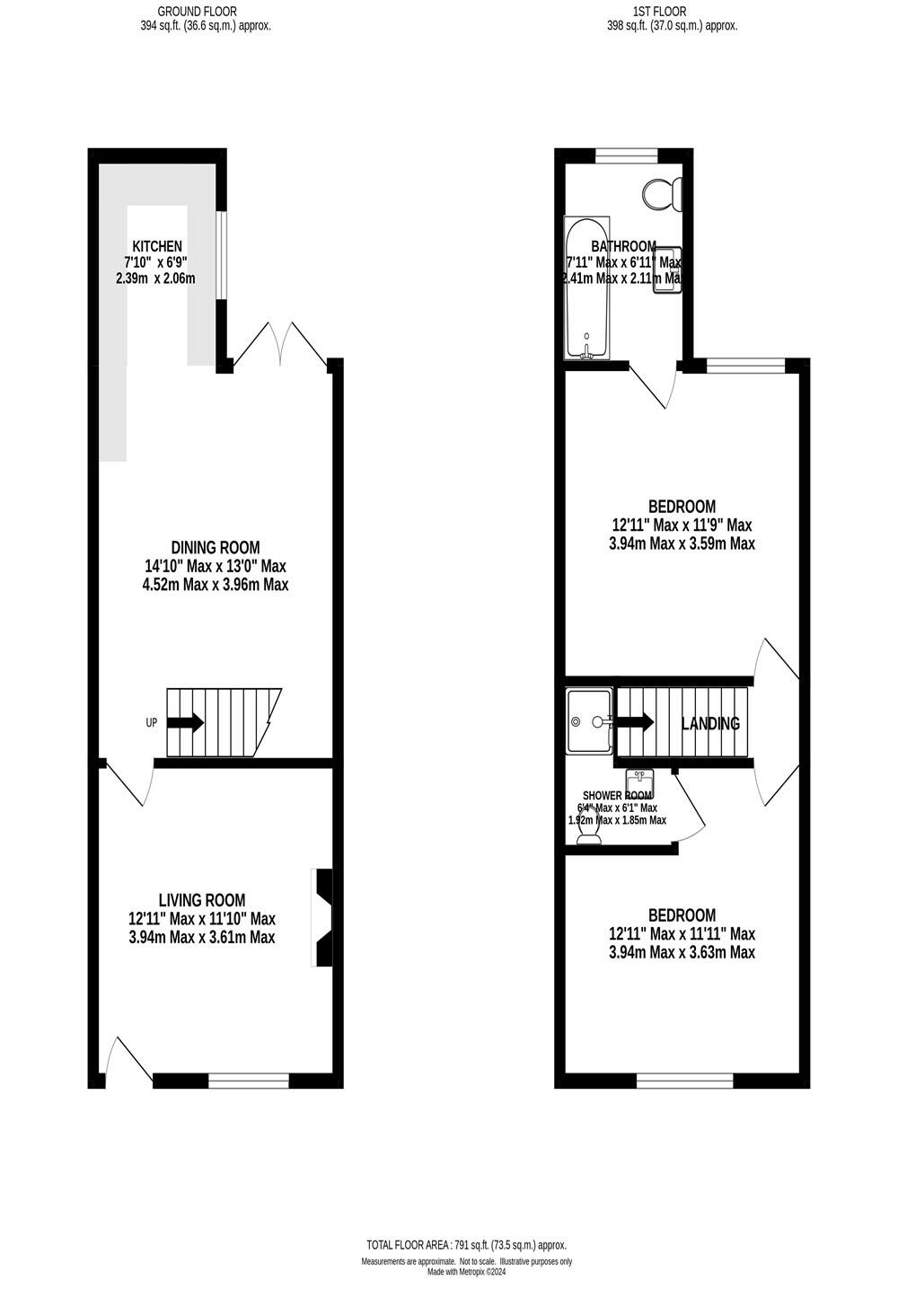
This property is a two-bedroom, two-bathroom terraced house located in Timperley, Greater Manchester. The location is excellent, with nearby outstanding schools like Pictor Academy and Cloverlea Primary School within a short distance. Timperley village centre is also within walking distance, offering various amenities. Transport links are good, with several train stations within a reasonable distance. The property itself appears to be in relatively good condition, though some minor cosmetic updates might enhance its appeal. The photos show a clean interior with modern flooring and updated kitchen and bathrooms. The small rear yard/garden is a functional space, though it could benefit from some landscaping. The list price of £349,900 seems reasonable considering the average price in the area is significantly higher, at £558,379. However, it is important to note that the average property size is also larger at 1,127 sqft compared to this property’s 791 sqft. While the property is smaller, its location and condition make it a potentially attractive investment.
Therefore, we give this property 6 / 10. *Disclaimer: This is our option and does constitute a recommendation or financial advice. Do your own research. *
- Price
- 8
- Condition
- 7
- Location
- 9
- Land
- 3
- Bedrooms
- 2
- Bathrooms
- 2
- Sqft (est)
- 791.00
The heatmap indicates the level of crime in the area. The color of the heatmap indicates the crime severity and recency.
Metrics Year-on-Year
- Average area value
- 505,714.00 £Decreased by 1.54 %
- Est sale value
- 392,336.00 £Increased by 32.62 %
- Average area rental value
- 1,900.00 £/moIncreased by 21.17 %
- Est letting value
- 791.00 £/moUnchanged by 0.00 %
- Est rental Yield
- 4.51 %Increased by 23.22 %
- Crime Rate
- 0.00 %
Agent Activity
Gascoigne Halman created the listing.
Nearby Schools
| Name | Type | Ofsted | Distance |
|---|---|---|---|
| Pictor Academy | Academy Special Converter | Outstanding | 0.30 KM |
| Cloverlea Primary School | Community School | Outstanding | 0.70 KM |
| Willows Primary School | Community School | Good | 0.85 KM |
| Heyes Lane Primary School | Community School | Good | 1.12 KM |
| Forest School | Other Independent School | 1.25 KM |
Images
Nearby Streets
| Name | Average Price | Average Sqft | Distance |
|---|---|---|---|
| Lime Grove | £ 0 | 0 | 0.00 KM |
| Merton Grove | £ 475,000 | 0 | 0.00 KM |
| The Old Garden | £ 450,000 | 0 | 0.00 KM |
| Glen Rise | £ 0 | 0 | 0.00 KM |
| Orchard Place | £ 350,000 | 0 | 0.00 KM |
Nearby Transport
| Name | NLC | TLC | Distance |
|---|---|---|---|
| Navigation Road | 2940 | NVR | 2.23 KM |
| Altrincham | 2806 | ALT | 2.78 KM |
| Hale (Manchester) | 2845 | HAL | 3.30 KM |
| Ashley | 2850 | ASY | 4.92 KM |
| Humphrey Park | 2937 | HUP | 6.26 KM |
Nearby Listings
| Address | Price | Type | Score | Distance |
|---|---|---|---|---|
| Bloomsbury Lane, Timperley, Altrincham | £ 349,900 | BUY | 6 / 10 | 0.00 KM |
| Bloomsbury Lane, Timperley, Altrincham, Greater Manchester, WA15 | £ 650,000 | BUY | 8 / 10 | 0.02 KM |
| Bloomsbury Lane, Timperley, Altrincham, WA15 | £ 345,000 | BUY | 6 / 10 | 0.03 KM |
| Stockport Road, Timperley, Altrincham | £ 550,000 | BUY | 6 / 10 | 0.06 KM |
| Bloomsbury Lane, Timperley | £ 395,000 | BUY | 8 / 10 | 0.06 KM |
Nearby Properties
| Address | Price | Distance |
|---|---|---|
| 132 Bloomsbury Lane | £ 253,000 | 0.03 KM |
| 130 Bloomsbury Lane | £ 177,000 | 0.03 KM |
| 136 Bloomsbury Lane | £ 143,000 | 0.03 KM |
| 134 Bloomsbury Lane | £ 80,000 | 0.03 KM |
| 153 Bloomsbury Lane | £ 235,000 | 0.05 KM |