Winkworth says ..
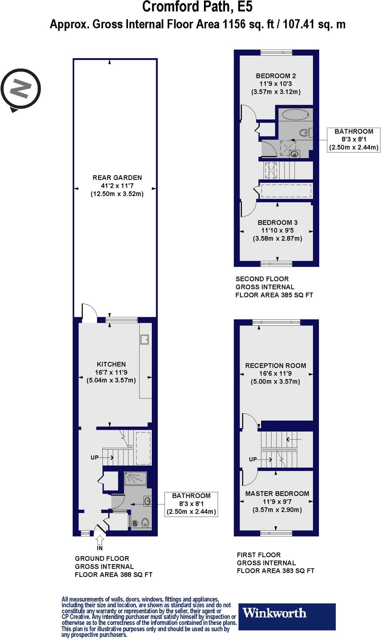
Situated on a quiet pedestrianised street in Hackney, this well-presented three-bedroom freehold house on Cromford Path offers comfortable living with a bright, practical layout and a welcoming feel throughout. At the rear of the property, you'll find a private south-facing garden that...
Property Oracle says ..
Therefore, we give this property 7 / 10. *Disclaimer: This is our option and does constitute a recommendation or financial advice. Do your own research. *
- Price
- 8
- Condition
- 6
- Location
- 7
- Land
- 7
- Bedrooms
- 3
- Bathrooms
- 2
- Sqft (est)
- 1,350.22
The heatmap indicates the level of crime in the area. The color of the heatmap indicates the crime severity and recency.
Metrics Year-on-Year
- Average area value
- 786,667.00 £Decreased by 0.96 %
- Est sale value
- 1,018,065.88 £Decreased by 11.29 %
- Average area rental value
- 2,720.00 £/moDecreased by 8.48 %
- Est letting value
- 2,700.44 £/moDecreased by 33.33 %
- Est rental Yield
- 4.15 %Decreased by 7.57 %
- Crime Rate
- 4.00 %Unchanged by 0.00 %
from 794,286.00 £
from 1,147,687.00 £
from 2,972.00 £/mo
from 4,050.66 £/mo
from 4.49 %
from 4.00 %
Agent Activity
Winkworth created the listing.
Nearby Schools
| Name | Type | Ofsted | Distance |
|---|---|---|---|
| Mandeville Primary School | Community School | Good | 0.28 KM |
| Daubeney Primary School | Community School | Requires improvement | 0.54 KM |
| Clapton Park Children'S Centre | Children's Centre Linked Site | 0.56 KM | |
| Rushmore Primary School | Community School | Good | 0.57 KM |
| Daubeney Children'S Centre | Children's Centre | 0.58 KM |
Images
Nearby Streets
| Name | Average Price | Average Sqft | Distance |
|---|---|---|---|
| Thyme Walk | £ 0 | 0 | 0.00 KM |
| Chowdhury Walk | £ 625,000 | 0 | 0.00 KM |
| Fisher Close | £ 0 | 0 | 0.00 KM |
| Fletching Road | £ 0 | 0 | 0.00 KM |
| Chatsworth Road | £ 0 | 0 | 0.00 KM |
Nearby Transport
| Name | NLC | TLC | Distance |
|---|---|---|---|
| Homerton | 6979 | HMN | 0.98 KM |
| Lea Bridge | 6927 | LEB | 1.32 KM |
| Clapton | 6926 | CPT | 1.81 KM |
| Hackney Central | 6977 | HKC | 1.86 KM |
| Hackney Downs | 6867 | HAC | 2.25 KM |
Nearby Listings
| Address | Price | Type | Score | Distance |
|---|---|---|---|---|
| Cromford Path, London, E5 | £ 640,000 | BUY | 7 / 10 | 0.00 KM |
| Cromford Path, Homerton, London, E5 | £ 750,000 | BUY | 6 / 10 | 0.08 KM |
| Cromford Path, London, E5 | £ 725,000 | BUY | 6 / 10 | 0.08 KM |
| Rushmore Road, Homerton, London, E5 | £ 680,000 | BUY | 7 / 10 | 0.10 KM |
| Glyn Road, London, E5 | £ 450,000 | BUY | 8 / 10 | 0.15 KM |
Nearby Properties
| Address | Price | Distance |
|---|---|---|
| 89 Overbury Street | £ 360,000 | 0.07 KM |
| 99 Overbury Street | £ 490,000 | 0.07 KM |
| 75 Overbury Street | £ 300,000 | 0.07 KM |
| 4 Cromford Path | £ 286,000 | 0.09 KM |
| 16 Cromford Path | £ 562,500 | 0.09 KM |