Rossdale, Sutton, Surrey. SM1
US

Rossdale, Sutton, Surrey. SM1

By Ushers Estate Agents

£ 599,950

Reviews

3 out of 5 stars

Ushers Estate Agents says ..

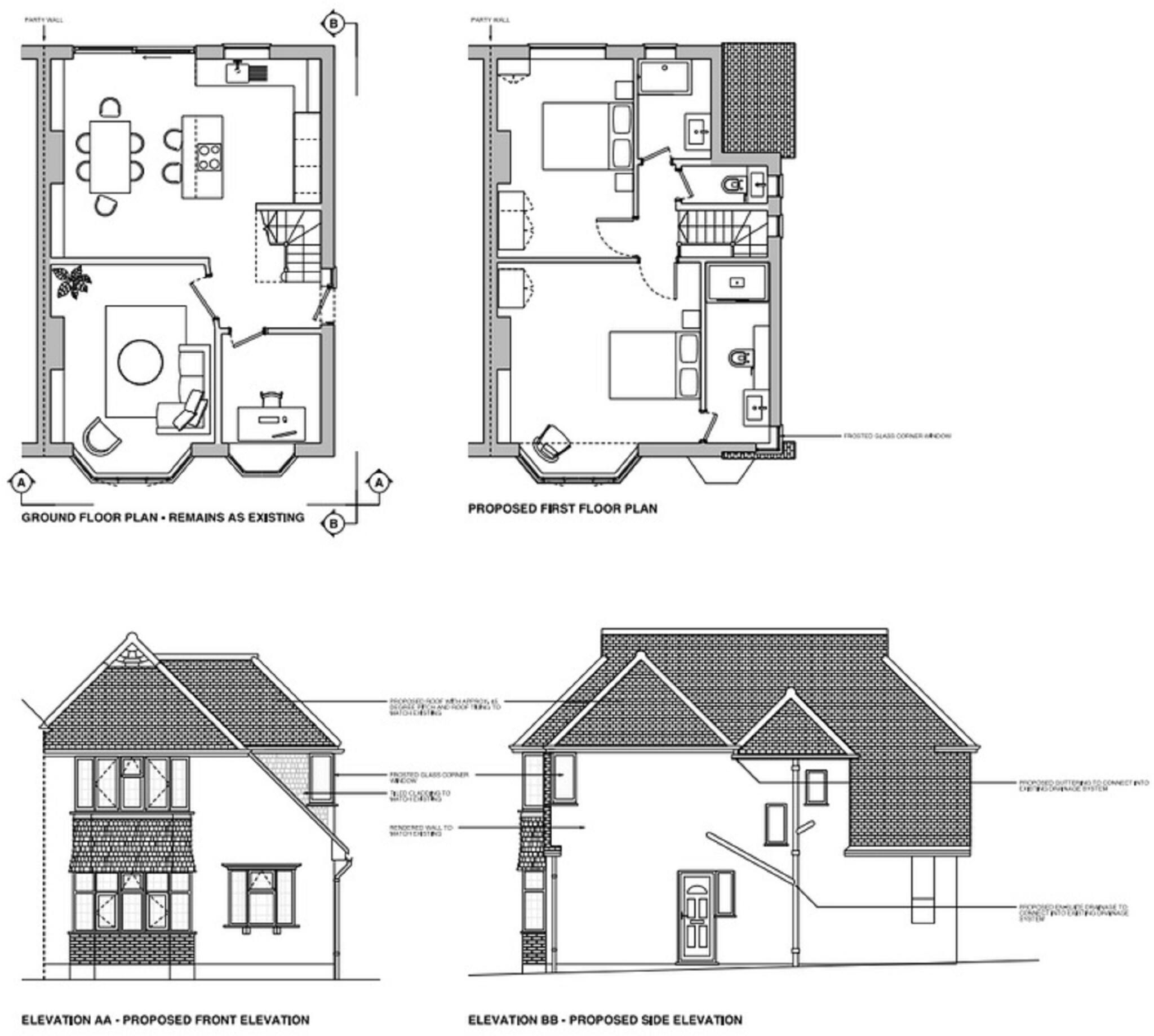
** Guide Price £599,950 ** Ushers are pleased to offer this attractive 3 bedroom semi detached chalet style house with luxury 20'3 x 14'8 luxury kitchen dining room & sizeable landscaped rear garden. Situated in a popular cul-de-sac in Sutton. The owner has plans drawn up to extend the...

Property Oracle says ..

A semi-detached property located in Carshalton Central, Sutton. The property is in close proximity to several schools and train stations. The internal photos suggest the property is in good condition, with a modern kitchen and bathroom. The external photos show a well-maintained garden with a shed.

Therefore, we give this property 7 / 10. *Disclaimer: This is our option and does constitute a recommendation or financial advice. Do your own research. *

Price
6
Condition
8
Location
8
Land
7
Bedrooms
3
Bathrooms
1
Sqft (est)
750.00

The heatmap indicates the level of crime in the area. The color of the heatmap indicates the crime severity and recency.

Metrics Year-on-Year

Average area value
524,000.00 £
Decreased by 3.73 %
from 544,291.00 £
Est sale value
522,750.00 £
Increased by 100.29 %
from 261,000.00 £
Average area rental value
1,458.00 £/mo
Decreased by 27.57 %
from 2,013.00 £/mo
Est letting value
750.00 £/mo
Unchanged by 0.00 %
from 750.00 £/mo
Est rental Yield
3.34 %
Decreased by 24.77 %
from 4.44 %
Crime Rate
2.00 %
Unchanged by 0.00 %
from 2.00 %

Agent Activity

  • Ushers Estate Agents created the listing.

Nearby Schools

NameTypeOfstedDistance
St Philomena'S Catholic High School For GirlsVoluntary Aided SchoolOutstanding0.36 KM
St Mary'S Rc Infants SchoolVoluntary Aided SchoolGood0.63 KM
Carshalton High School For GirlsAcademy ConverterGood0.65 KM
St Mary'S Rc Junior SchoolVoluntary Aided SchoolGood0.66 KM
Harris Junior Academy CarshaltonAcademy Sponsor LedGood0.87 KM

Images

Main Image Not Specified Not Specified Not Specified Not Specified Not Specified Not Specified Not Specified Not Specified Not Specified Not Specified Not Specified Not Specified Not Specified Not Specified Not Specified Not Specified Not Specified Not Specified Not Specified Not Specified Not Specified Not Specified Not Specified Not Specified Not Specified Not Specified Not Specified Not Specified Not Specified Not Specified Not Specified Not Specified Not Specified Not Specified Not Specified Not Specified Not Specified

Nearby Streets

NameAverage PriceAverage SqftDistance
Old Swan Yard £ 000.00 KM
Tyrell Court £ 000.00 KM
William Street £ 370,00000.00 KM
Waterloo Road £ 590,00000.00 KM
Upland Road £ 000.00 KM

Nearby Transport

NameNLCTLCDistance
Carshalton5405CSH0.82 KM
Carshalton Beeches5406CSB0.91 KM
Sutton5385SUO2.12 KM
Wallington5394WLT2.49 KM
Hackbridge5364HCB2.54 KM

Nearby Listings

AddressPriceTypeScoreDistance
Rossdale, Sutton, Surrey. SM1 £ 599,950BUY7 / 100.00 KM
Rossdale, Sutton £ 635,000BUY6 / 100.04 KM
Rossdale, Sutton £ 800,000BUY7 / 100.11 KM
Highfield Road, Sutton £ 750,000BUYUnknown0.13 KM
Westmead Road, Sutton, Surrey, SM1 £ 610,000BUY8 / 100.13 KM

Nearby Properties

AddressPriceDistance
3 Rossdale £ 275,0000.01 KM
20 Rossdale £ 590,0000.01 KM
5a Rossdale £ 295,0000.01 KM
17 Rossdale £ 410,0000.01 KM
31 Rossdale £ 334,5000.01 KM