Woodbrook, Whaley Bridge, High Peak
By Gascoigne Halman
£ 275,000
Reviews
3 out of 5 stars
Gascoigne Halman says ..
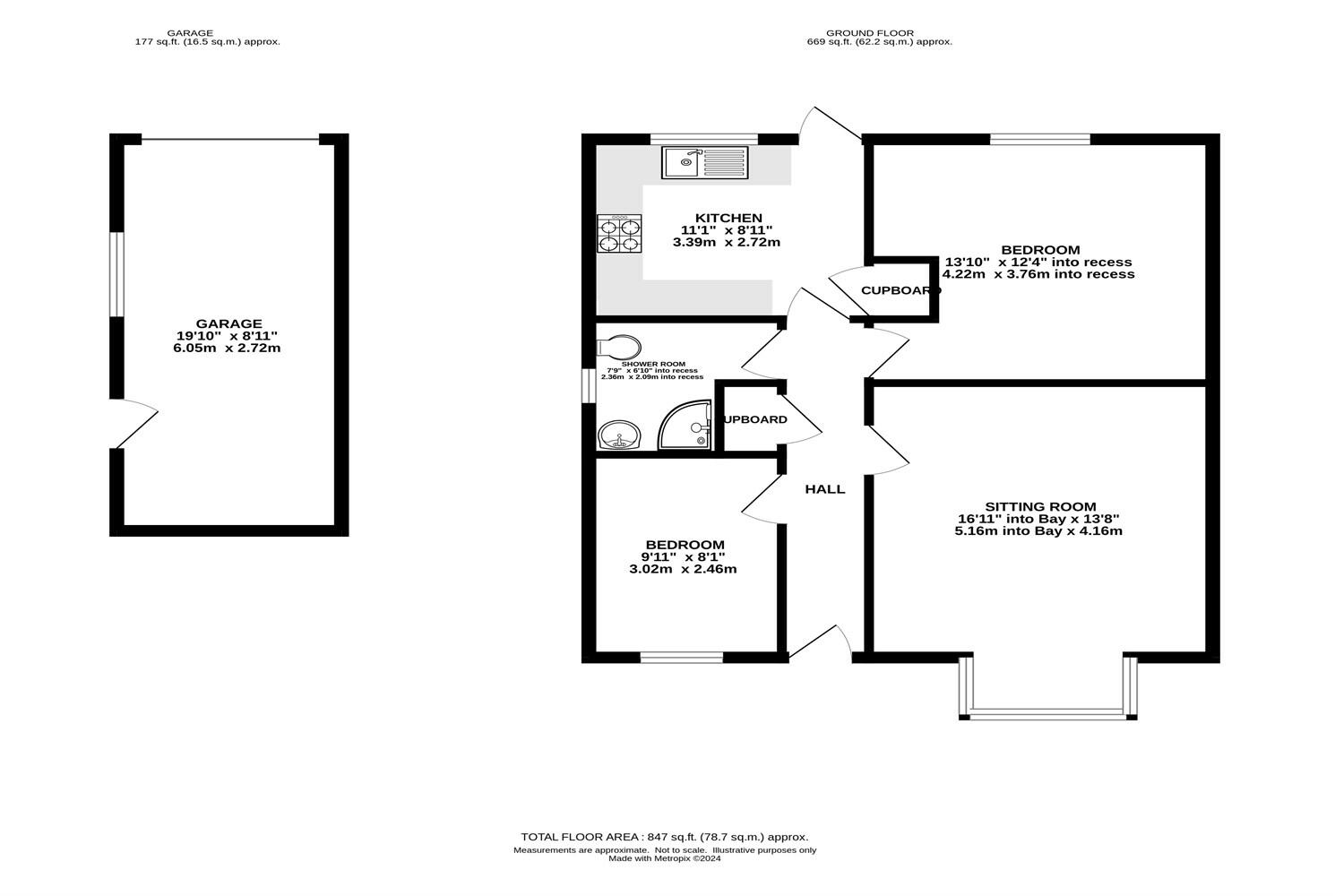
A TRADITIONAL SEMI DETACHED BUNGALOW which is located on a pleasant sought after small Development close to the town. The Bungalow offers excellent accommodation with TWO BEDROOMS, excellent garden spaces, driveway and a GARAGE.
Property Oracle says ..
This two-bedroom semi-detached bungalow in Whaley Bridge, Derbyshire, presents a mixed bag of pros and cons. The location is appealing, given its proximity to Whaley Bridge train station and several well-regarded primary schools, along with the semi-rural setting. However, the property’s condition requires considerable updating. The living room, in particular, needs complete redecoration, and other areas would likely benefit from modernisation. While the kitchen appears functional and the bathroom adequate, a significant investment in renovation would be necessary. The garden offers a pleasant outdoor space, though precise dimensions are unavailable. The £275,000 list price seems reasonable considering the need for renovations but requires further evaluation to determine the true value based on the market conditions in the area. More details on the property’s specifics, such as plot size and any recent market data in the local area would be helpful in forming a more conclusive opinion on the overall value. Potential buyers should factor in the cost of renovations before making an offer. The property would suit buyers looking for a project where they could add value through renovation, or buyers that want to be close to the town and its surrounding countryside.
Therefore, we give this property 6 / 10. *Disclaimer: This is our option and does constitute a recommendation or financial advice. Do your own research. *
- Price
- 7
- Condition
- 5
- Location
- 7
- Land
- 6
- Bedrooms
- 2
- Bathrooms
- 1
- Sqft (est)
- 847.12
The heatmap indicates the level of crime in the area. The color of the heatmap indicates the crime severity and recency.
Metrics Year-on-Year
- Average area value
- 334,167.00 £Increased by 24.23 %
- Est sale value
- 217,709.84 £Decreased by 19.44 %
- Average area rental value
- 1,252.00 £/moIncreased by 4.33 %
- Est letting value
- 0.00 £/moDecreased by 100.00 %
- Est rental Yield
- 4.50 %Decreased by 15.89 %
- Crime Rate
- 2.00 %Unchanged by 0.00 %
Agent Activity
Gascoigne Halman created the listing.
Nearby Schools
| Name | Type | Ofsted | Distance |
|---|---|---|---|
| Whaley Bridge Primary School | Community School | Requires improvement | 0.73 KM |
| Taxal And Fernilee Cofe Primary School | Voluntary Controlled School | Good | 1.31 KM |
| Buxworth Primary School | Community School | Good | 1.63 KM |
| Furness Vale Primary And Nursery School | Community School | Good | 2.17 KM |
| St George'S Cofe Primary School | Academy Sponsor Led | 4.38 KM |
Images
Nearby Streets
| Name | Average Price | Average Sqft | Distance |
|---|---|---|---|
| Williamson Crescent | £ 0 | 0 | 0.00 KM |
| The Paddock | £ 235,000 | 0 | 0.00 KM |
| Dale View | £ 602,500 | 0 | 0.00 KM |
| Foundry Lane | £ 0 | 0 | 0.00 KM |
| Manor Road | £ 0 | 0 | 0.00 KM |
Nearby Transport
| Name | NLC | TLC | Distance |
|---|---|---|---|
| Whaley Bridge | 2772 | WBR | 0.51 KM |
| Furness Vale | 2952 | FNV | 2.23 KM |
| Chinley | 2823 | CLY | 4.13 KM |
| New Mills Newtown | 2769 | NMN | 4.50 KM |
| New Mills Central | 2974 | NMC | 4.74 KM |
Nearby Listings
| Address | Price | Type | Score | Distance |
|---|---|---|---|---|
| Woodbrook, Whaley Bridge, High Peak | £ 260,000 | BUY | 7 / 10 | 0.00 KM |
| Bingswood Avenue, Whaley Bridge, High Peak | £ 195,000 | BUY | 5 / 10 | 0.14 KM |
| George Street, Whaley Bridge, High Peak | £ 248,000 | BUY | 6 / 10 | 0.15 KM |
| Woodbrook, Whaley Bridge, High Peak | £ 280,000 | BUY | Unknown | 0.15 KM |
| Woodbrook, Whaley Bridge, High Peak | £ 335,000 | BUY | 6 / 10 | 0.20 KM |
Nearby Properties
| Address | Price | Distance |
|---|---|---|
| 97 Bings Road | £ 73,000 | 0.14 KM |
| 77 Bings Road | £ 169,999 | 0.14 KM |
| 23 Bings Road | £ 355,000 | 0.14 KM |
| Spire House | £ 600,000 | 0.14 KM |
| 21 Bings Road | £ 520,000 | 0.14 KM |