Cherrybrook, Buckland Road, Bampton, OX18
By Chancellors
£ 725,000
Reviews
3 out of 5 stars
Chancellors says ..
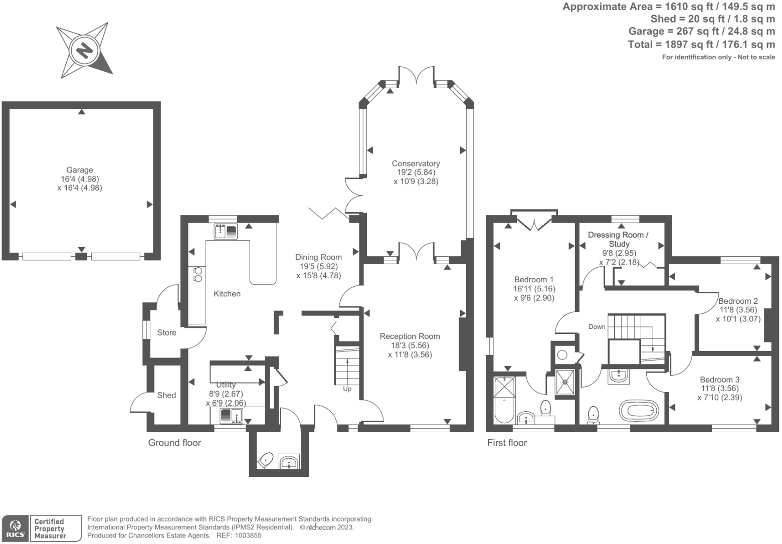
Situated within the picturesque village of Bampton is this detached stone built family home which is set back from the road offering a blend of character features with a contemporary finish benefitting a double garage, driveway parking and landscape garden to the rear.
Property Oracle says ..
Cherrybrook is a well-presented detached property located in the desirable village of Bampton. The house features four bedrooms, two bathrooms, a modern kitchen, and a spacious conservatory. The property also benefits from a large garden with mature trees and a stream. While the square footage is not provided, the property appears to offer ample living space for a family. The location is ideal for those seeking a rural lifestyle with access to local amenities and good schools. The property is in good condition and offers a blend of modern and traditional features. The price is reasonable for the area and the property’s features.
Therefore, we give this property 7 / 10. *Disclaimer: This is our option and does constitute a recommendation or financial advice. Do your own research. *
- Price
- 6
- Condition
- 8
- Location
- 7
- Land
- 9
- Bedrooms
- 4
- Bathrooms
- 2
The heatmap indicates the level of crime in the area. The color of the heatmap indicates the crime severity and recency.
Metrics Year-on-Year
- Average area value
- 270,000.00 £Increased by 41.58 %
- Average area rental value
- 936.00 £/moDecreased by 3.51 %
- Est rental Yield
- 4.16 %Decreased by 31.80 %
- Crime Rate
- 0.00 %
Agent Activity
Chancellors created the listing.
Nearby Schools
| Name | Type | Ofsted | Distance |
|---|---|---|---|
| Bampton Cofe Primary School | Academy Converter | Good | 1.21 KM |
| Aston And Cote Church Of England Primary School | Voluntary Controlled School | Good | 3.50 KM |
| St Hugh'S School | Other Independent School | 5.16 KM | |
| Brize Norton Primary School | Academy Converter | 5.70 KM | |
| Clanfield Cofe Primary School | Voluntary Controlled School | Good | 5.81 KM |
Images
Nearby Streets
| Name | Average Price | Average Sqft | Distance |
|---|---|---|---|
| Fox Close | £ 300,000 | 0 | 0.00 KM |
| Vesey Court | £ 0 | 0 | 0.00 KM |
| Whitaker Road | £ 0 | 0 | 0.00 KM |
| Queen Street | £ 0 | 0 | 0.00 KM |
| Chandler Close | £ 325,000 | 0 | 0.00 KM |
Nearby Listings
| Address | Price | Type | Score | Distance |
|---|---|---|---|---|
| Cherrybrook, Buckland Road, Bampton, OX18 | £ 725,000 | BUY | 7 / 10 | 0.00 KM |
| Bampton, Oxfordshire, OX18 | £ 600,000 | BUY | Unknown | 0.00 KM |
| Buckland Road, Bampton | £ 750,000 | BUY | 7 / 10 | 0.13 KM |
| Buckland Road, Bampton, OX18 | £ 865,000 | BUY | 7 / 10 | 0.35 KM |
| Bampton, Oxfordshire, OX18 | £ 300,000 | BUY | Unknown | 0.45 KM |
Nearby Properties
| Address | Price | Distance |
|---|---|---|
| Moss Rose Cottage | £ 585,000 | 0.13 KM |
| 8 Buckland Road | £ 395,000 | 0.13 KM |
| Haven Cottage | £ 469,500 | 0.13 KM |
| Penland Cottage | £ 452,500 | 0.13 KM |
| Cherrybrook | £ 615,000 | 0.13 KM |