Preston Road, Upper Leytonstone, E11
By Theydons
£ 950,000
Reviews
3 out of 5 stars
Theydons says ..
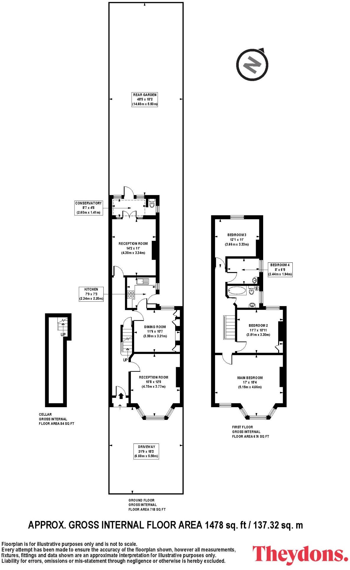
Offered chain free and located in the sought-after Upper Leytonstone neighbourhood, this charming four-bedroom terraced home offers space, character, endless potential and a rare opportunity to acquire a family home. With three versatile reception rooms and a generously sized rear garden stretching
Property Oracle says ..
Therefore, we give this property 6 / 10. *Disclaimer: This is our option and does constitute a recommendation or financial advice. Do your own research. *
- Price
- 7
- Condition
- 4
- Location
- 8
- Land
- 7
- Bedrooms
- 4
- Bathrooms
- 1
- Sqft (est)
- 1,478.00
The heatmap indicates the level of crime in the area. The color of the heatmap indicates the crime severity and recency.
Metrics Year-on-Year
- Average area value
- 775,000.00 £Increased by 28.05 %
- Est sale value
- 1,083,374.00 £Increased by 19.58 %
- Average area rental value
- 1,926.00 £/moIncreased by 6.88 %
- Est letting value
- 1,478.00 £/moUnchanged by 0.00 %
- Est rental Yield
- 2.98 %Decreased by 16.53 %
- Crime Rate
- 6.00 %Unchanged by 0.00 %
from 605,229.00 £
from 906,014.00 £
from 1,802.00 £/mo
from 1,478.00 £/mo
from 3.57 %
from 6.00 %
Agent Activity
Theydons created the listing.
Nearby Schools
| Name | Type | Ofsted | Distance |
|---|---|---|---|
| Leytonstone School | Community School | Good | 0.47 KM |
| Gwyn Jones Primary School | Community School | Good | 0.87 KM |
| George Tomlinson Primary School | Community School | Good | 0.95 KM |
| Our Lady Of Lourdes Rc Primary School | Academy Converter | 0.97 KM | |
| Davies Lane Primary School | Academy Converter | 1.13 KM |
Images
Nearby Streets
| Name | Average Price | Average Sqft | Distance |
|---|---|---|---|
| Maple Road | £ 475,000 | 0 | 0.00 KM |
| King's Road | £ 756,250 | 0 | 0.00 KM |
| Carlton Road | £ 775,000 | 0 | 0.00 KM |
| Clare Road | £ 762,500 | 0 | 0.00 KM |
| Cambridge Road | £ 357,740 | 0 | 0.00 KM |
Nearby Transport
| Name | NLC | TLC | Distance |
|---|---|---|---|
| Leytonstone High Road | 7403 | LER | 1.26 KM |
| Wood Street | 6954 | WST | 1.99 KM |
| Leyton Midland Road | 7402 | LEM | 2.17 KM |
| Wanstead Park | 7408 | WNP | 3.06 KM |
| Forest Gate | 6876 | FOG | 3.17 KM |
Nearby Listings
| Address | Price | Type | Score | Distance |
|---|---|---|---|---|
| Preston Road, Upper Leytonstone, E11 | £ 950,000 | BUY | 6 / 10 | 0.00 KM |
| Dyson Road, London, E11 | £ 475,000 | BUY | Unknown | 0.06 KM |
| Dyson Road, London, E11 | £ 450,000 | BUY | Unknown | 0.06 KM |
| Preston Road, Leytonstone | £ 500,000 | BUY | 6 / 10 | 0.07 KM |
| Preston Road, Upper Leytonstone, London, E11 | £ 1,350,000 | BUY | 8 / 10 | 0.07 KM |
Nearby Properties
| Address | Price | Distance |
|---|---|---|
| 40a Preston Road | £ 94,000 | 0.00 KM |
| 16b Preston Road | £ 375,750 | 0.00 KM |
| 34 Preston Road | £ 410,000 | 0.00 KM |
| 14 Preston Road | £ 150,000 | 0.01 KM |
| 22 Preston Road | £ 800,000 | 0.01 KM |