BA
Trenance Road, Exhall, CV7
By Bayzos Estate Agents
£ 225,000
Reviews
3 out of 5 stars
Bayzos Estate Agents says ..
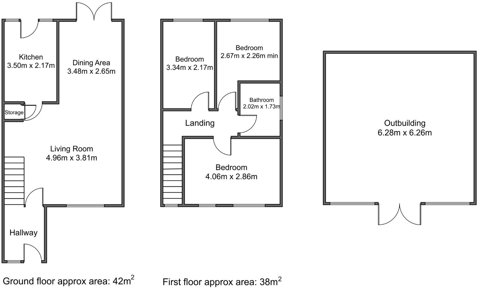
Sought After Location Of Exhall | No Upward Chain | Attention Investors/First Time Buyers | Large Driveway Offering Parking | Open Plan Living/Dining Area | Low Maintenance Garden With Outbuilding | Close To Local Amenities | Approx Floor Area 80 Sqm | EPC Expired & Reordered
Property Oracle says ..
Therefore, we give this property 6 / 10. *Disclaimer: This is our option and does constitute a recommendation or financial advice. Do your own research. *
- Price
- 7
- Condition
- 5
- Location
- 6
- Land
- 7
- Bedrooms
- 3
- Bathrooms
- 1
- Sqft (est)
- 1,113.35
The heatmap indicates the level of crime in the area. The color of the heatmap indicates the crime severity and recency.
Metrics Year-on-Year
- Average area value
- 371,430.00 £Increased by 11.76 %
- Est sale value
- 611,229.15 £Increased by 82.39 %
- Average area rental value
- 1,951.00 £/moDecreased by 12.94 %
- Est letting value
- 2,226.70 £/moUnchanged by 0.00 %
- Est rental Yield
- 6.30 %Decreased by 22.13 %
- Crime Rate
- 2.00 %Unchanged by 0.00 %
from 332,337.00 £
from 335,118.35 £
from 2,241.00 £/mo
from 2,226.70 £/mo
from 8.09 %
from 2.00 %
Agent Activity
Bayzos Estate Agents created the listing.
Nearby Schools
| Name | Type | Ofsted | Distance |
|---|---|---|---|
| Exhall Cedars Infant School | Community School | Requires improvement | 0.38 KM |
| Exhall Junior School | Community School | Requires improvement | 0.95 KM |
| The Canons C Of E Primary School | Voluntary Aided School | Outstanding | 1.33 KM |
| Foxford Community School | Academy Sponsor Led | 1.38 KM | |
| Goodyers End Primary School | Community School | Good | 1.71 KM |
Images
Nearby Streets
| Name | Average Price | Average Sqft | Distance |
|---|---|---|---|
| Trelawney Road | £ 280,000 | 0 | 0.00 KM |
| Little Bayton View | £ 0 | 0 | 0.00 KM |
| Longford Road | £ 0 | 0 | 0.00 KM |
| Wilsons Lane | £ 0 | 0 | 0.00 KM |
| Little Bayton View | £ 0 | 0 | 0.00 KM |
Nearby Transport
| Name | NLC | TLC | Distance |
|---|---|---|---|
| Bedworth | 1165 | BEH | 2.02 KM |
| Coventry Arena | 7416 | CAA | 2.58 KM |
| Bermuda Park | 6543 | BEP | 4.04 KM |
| Nuneaton | 1077 | NUN | 6.95 KM |
| Coventry | 1030 | COV | 8.15 KM |
Nearby Listings
| Address | Price | Type | Score | Distance |
|---|---|---|---|---|
| Trenance Road, Exhall, CV7 | £ 225,000 | BUY | 6 / 10 | 0.00 KM |
| Tregorrick Road, Exhall, Coventry, Warwickshire, CV7 | £ 240,000 | BUY | 6 / 10 | 0.15 KM |
| Tregorrick Road, Coventry, CV7 | £ 260,000 | BUY | Unknown | 0.17 KM |
| Trenance Road, Exhall, Coventry, Warwickshire, CV7 | £ 325,000 | BUY | Unknown | 0.19 KM |
| Treviscoe Close, Exhall, Coventry, CV7 9FE | £ 250,000 | BUY | 7 / 10 | 0.23 KM |
Nearby Properties
| Address | Price | Distance |
|---|---|---|
| 10 Trenance Road | £ 150,000 | 0.06 KM |
| 6 Trenance Road | £ 148,000 | 0.06 KM |
| 23 Trenance Road | £ 125,000 | 0.06 KM |
| 14 Trenance Road | £ 157,500 | 0.06 KM |
| 32 Trenance Road | £ 175,000 | 0.06 KM |