Wellington Road, Deal, CT14
By Jenkinson Estates
£ 585,000
Reviews
3 out of 5 stars
Jenkinson Estates says ..
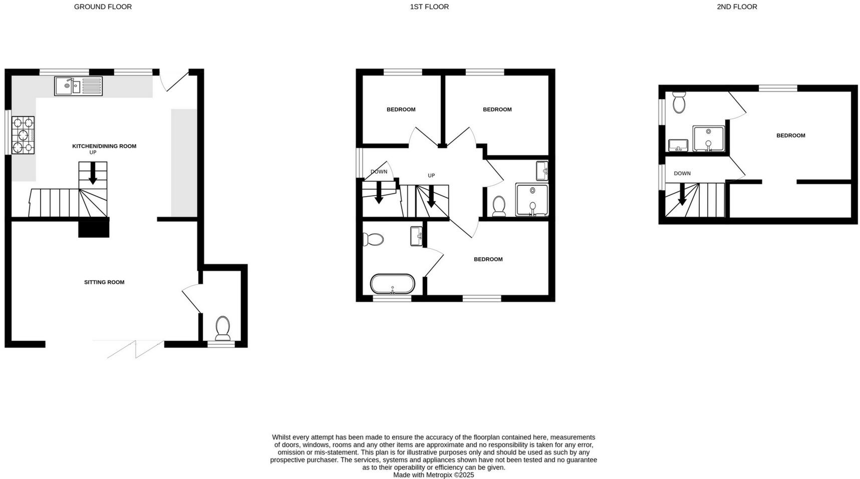
Jenkinson Estates are pleased to bring to the market this charming semi detached home, tucked away in a secluded location off Wellington Road, Deal. This home really must be seen to be appreciated. The accommodation, arranged over three floors offers an impressive open plan sitting / dining / kit...
Property Oracle says ..
This is a well-presented semi-detached property in a sought-after location in Deal. The house benefits from a modern interior, a good-sized garden, and proximity to local amenities, including schools and transport links. While the asking price is slightly above the average for the area, the property’s condition and features make it an attractive option for potential buyers. The property offers four bedrooms and four bathrooms, making it suitable for families.
Therefore, we give this property 7 / 10. *Disclaimer: This is our option and does constitute a recommendation or financial advice. Do your own research. *
- Price
- 6
- Condition
- 8
- Location
- 7
- Land
- 7
- Bedrooms
- 4
- Bathrooms
- 4
- Sqft (est)
- 1,030.00
The heatmap indicates the level of crime in the area. The color of the heatmap indicates the crime severity and recency.
Metrics Year-on-Year
- Average area value
- 505,375.00 £Increased by 53.39 %
- Est sale value
- 508,820.00 £Increased by 26.99 %
- Average area rental value
- 1,085.00 £/moDecreased by 20.22 %
- Est letting value
- 1,030.00 £/moUnchanged by 0.00 %
- Est rental Yield
- 2.58 %Decreased by 47.88 %
- Crime Rate
- 21.00 %Unchanged by 0.00 %
Agent Activity
Jenkinson Estates created the listing.
Nearby Schools
| Name | Type | Ofsted | Distance |
|---|---|---|---|
| Sandown School | Academy Converter | 0.82 KM | |
| Brewood Secondary School | Other Independent Special School | Good | 0.99 KM |
| Deal Parochial Church Of England Primary School | Academy Converter | 1.12 KM | |
| Goodwin Academy | Academy Sponsor Led | 1.15 KM | |
| The Downs Church Of England Primary School | Academy Converter | 1.94 KM |
Images
Nearby Streets
| Name | Average Price | Average Sqft | Distance |
|---|---|---|---|
| South Street | £ 0 | 0 | 0.00 KM |
| Black Horse Alley | £ 0 | 0 | 0.00 KM |
| Coach Yard | £ 0 | 0 | 0.00 KM |
| Wellington Court | £ 172,500 | 0 | 0.00 KM |
| Crown Court | £ 475,000 | 0 | 0.00 KM |
Nearby Transport
| Name | NLC | TLC | Distance |
|---|---|---|---|
| Deal | 5011 | DEA | 0.28 KM |
| Walmer | 5041 | WAM | 2.88 KM |
| Martin Mill | 5040 | MTM | 8.16 KM |
| Sandwich | 5026 | SDW | 8.39 KM |
Nearby Listings
| Address | Price | Type | Score | Distance |
|---|---|---|---|---|
| Wellington Road, Deal, CT14 | £ 585,000 | BUY | 7 / 10 | 0.00 KM |
| Wellington Road, Deal, CT14 7AL | £ 600,000 | BUY | 7 / 10 | 0.01 KM |
| Wellington Road, Deal | £ 295,000 | BUY | 5 / 10 | 0.03 KM |
| Queen Street, Deal, Kent | £ 90,000 | BUY | 5 / 10 | 0.07 KM |
| Wellington Road, Deal, CT14 | £ 350,000 | BUY | 7 / 10 | 0.08 KM |
Nearby Properties
| Address | Price | Distance |
|---|---|---|
| 17 Wellington Road | £ 268,000 | 0.01 KM |
| 2 Wellington Road | £ 425,000 | 0.01 KM |
| 33 Wellington Road | £ 171,000 | 0.01 KM |
| 32 Wellington Road | £ 120,000 | 0.01 KM |
| 38 Wellington Road | £ 230,000 | 0.01 KM |