Lathallan Grange, Polmont, FK2 0YZ
By Cala Homes Scotland West
£ 545,000
Reviews
3 out of 5 stars
Cala Homes Scotland West says ..
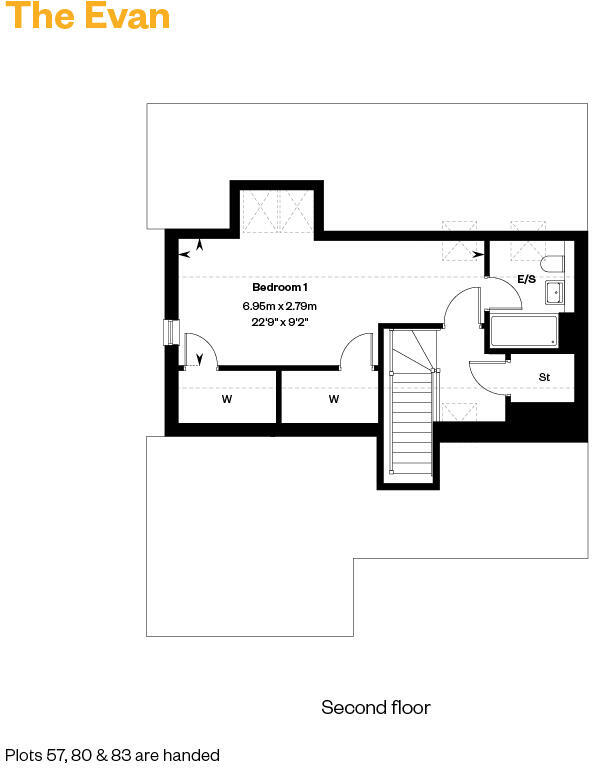
Now launched - Cala Homes in Polmont! Designed for spacious and flexible family living, our stunning new Evan homestyle offers beautiful, high spec interiors set across three levels.
Property Oracle says ..
This is a modern detached property located in a desirable area of Polmont, Falkirk. The house features 5 bedrooms and 4 bathrooms, making it suitable for a large family. The property is in excellent condition, with a modern interior and a well-maintained garden. The location is convenient, with easy access to local amenities, schools, and transportation links. While the price is relatively high compared to the average in the area, the property’s size, condition, and location justify the premium.
Therefore, we give this property 7 / 10. *Disclaimer: This is our option and does constitute a recommendation or financial advice. Do your own research. *
- Price
- 6
- Condition
- 9
- Location
- 7
- Land
- 7
- Bedrooms
- 5
- Bathrooms
- 4
- Sqft (est)
- 593.41
The heatmap indicates the level of crime in the area. The color of the heatmap indicates the crime severity and recency.
Metrics Year-on-Year
- Average area value
- 490,000.00 £Decreased by 5.86 %
- Est sale value
- 268,221.32 £Increased by 75.88 %
- Average area rental value
- 1,975.00 £/moIncreased by 83.72 %
- Est letting value
- 593.41 £/mo
- Est rental Yield
- 4.84 %Increased by 95.16 %
- Crime Rate
- 0.00 %
Agent Activity
Cala Homes Scotland West created the listing.
Nearby Schools
| Name | Type | Ofsted | Distance |
|---|---|---|---|
| Oakwood School | Offshore Schools | 7.61 KM |
Images
Nearby Streets
| Name | Average Price | Average Sqft | Distance |
|---|---|---|---|
| Taymouth Road | £ 0 | 0 | 0.00 KM |
| Breadalbane Place | £ 214,995 | 0 | 0.00 KM |
| Innerdouny Drive | £ 375,000 | 0 | 0.00 KM |
| Reddoch Road | £ 275,000 | 0 | 0.00 KM |
| Cleuch Place | £ 249,999 | 0 | 0.00 KM |
Nearby Transport
| Name | NLC | TLC | Distance |
|---|---|---|---|
| Polmont | 9936 | PMT | 2.62 KM |
Nearby Listings
| Address | Price | Type | Score | Distance |
|---|---|---|---|---|
| Lathallan Grange, Polmont, FK2 0YZ | £ 530,000 | BUY | 6 / 10 | 0.00 KM |
| Lathallan Grange, Polmont, FK2 0YZ | £ 560,000 | BUY | 7 / 10 | 0.00 KM |
| Lathallan Grange, Polmont, FK2 0YZ | £ 545,000 | BUY | 7 / 10 | 0.00 KM |
| Lathallan Grange, Polmont, FK2 0YZ | £ 258,000 | BUY | 7 / 10 | 0.00 KM |
| Lathallan Grange, Polmont, FK2 0YZ | £ 499,000 | BUY | 7 / 10 | 0.00 KM |