Pearsons says ..
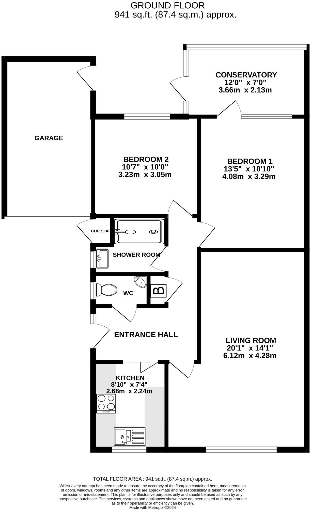
NO FORWARD CHAIN. This well-proportioned two bedroom link detached bungalow is ideally located to the west of Fareham town centre and benefits from overlooking a green space to the front aspect. The well-presented internal accommodation comprises; entrance hall, kitchen, 'L' shaped 20' living roo...
Property Oracle says ..
This two-bedroom property in Sandisplatt, Fareham, offers a blend of convenience and suburban living. The location is a strong point, being close to highly-rated primary schools and Fareham train station. The proximity to these amenities boosts its overall appeal, especially for families. The house itself, based on the images, seems reasonably well-maintained. The kitchen and bathroom appear recently updated, but there is potential for some minor cosmetic improvements and potential garden maintenance. The presence of a garden is a plus, although its size is relatively modest. The listed price appears reasonable, aligning with average pricing observed for comparable sized properties in nearby areas, however, given the data available, more detailed analysis would be needed to determine its exact valuation in this specific street. The lack of readily available data on comparable properties in the same street hampers a definitive assessment of value for money. However, given current market trends, the asking price appears to be in line with the broader market in Fareham. A potential buyer should factor in costs associated with any minor repairs or improvements and conduct further research into the local property market before making a final decision.
Therefore, we give this property 6 / 10. *Disclaimer: This is our option and does constitute a recommendation or financial advice. Do your own research. *
- Price
- 7
- Condition
- 6
- Location
- 7
- Land
- 4
- Bedrooms
- 2
- Bathrooms
- 1
- Sqft (est)
- 940.77
The heatmap indicates the level of crime in the area. The color of the heatmap indicates the crime severity and recency.
Metrics Year-on-Year
- Average area value
- 429,993.00 £Increased by 1.22 %
- Est sale value
- 360,314.91 £Increased by 9.12 %
- Average area rental value
- 1,850.00 £/moIncreased by 33.29 %
- Est letting value
- 940.77 £/moUnchanged by 0.00 %
- Est rental Yield
- 5.16 %Increased by 31.63 %
- Crime Rate
- 7.00 %Unchanged by 0.00 %
Agent Activity
Pearsons created the listing.
Nearby Schools
| Name | Type | Ofsted | Distance |
|---|---|---|---|
| Ranvilles Infant School | Community School | Outstanding | 0.28 KM |
| Ranvilles Junior School | Community School | Good | 0.28 KM |
| Heathfield Special School | Community Special School | Good | 0.37 KM |
| St Francis Special School | Community Special School | Good | 0.48 KM |
| St Columba Ce Primary School | Academy Sponsor Led | 1.70 KM |
Images
Nearby Streets
| Name | Average Price | Average Sqft | Distance |
|---|---|---|---|
| Sandisplatt | £ 254,975 | 0 | 0.00 KM |
| Rowan Way | £ 300,000 | 0 | 0.00 KM |
| Brendon Road | £ 269,950 | 0 | 0.00 KM |
| The Poplars | £ 0 | 0 | 0.00 KM |
| Crofton View | £ 750,000 | 0 | 0.00 KM |
Nearby Transport
| Name | NLC | TLC | Distance |
|---|---|---|---|
| Fareham | 5900 | FRM | 2.74 KM |
| Swanwick | 5920 | SNW | 6.39 KM |
| Botley | 5894 | BOE | 9.12 KM |
Nearby Listings
| Address | Price | Type | Score | Distance |
|---|---|---|---|---|
| SANDISPLATT, FAREHAM | £ 325,000 | BUY | 6 / 10 | 0.00 KM |
| Frogmore, Fareham | £ 160,000 | BUY | 6 / 10 | 0.09 KM |
| Frogmore, Fareham, PO14 | £ 110,000 | BUY | Unknown | 0.09 KM |
| Frogmore, Fareham | £ 190,000 | BUY | 7 / 10 | 0.09 KM |
| Greyshott Avenue, Fareham | £ 190,000 | BUY | 6 / 10 | 0.12 KM |
Nearby Properties
| Address | Price | Distance |
|---|---|---|
| 19 Sandisplatt | £ 175,000 | 0.04 KM |
| 11 Sandisplatt | £ 87,500 | 0.04 KM |
| 7 Sandisplatt | £ 250,000 | 0.04 KM |
| 8 Sandisplatt | £ 230,000 | 0.04 KM |
| 4 Sandisplatt | £ 245,000 | 0.04 KM |