Gilson Bailey says ..
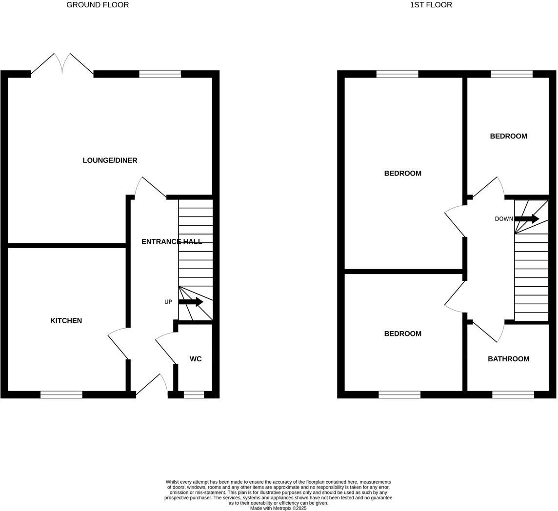
**40% SHARED OWNERSHIP** Gilson Bailey are delighted to offer this WELL PRESENTED, THREE BEDROOM, END TERRACE HOUSE situated in the highly sought after market town of Wymondham. Accommodation comprising entrance hall, lounge/diner, kitchen and WC to the ground floor. On the first floor there are ...
Property Oracle says ..
Therefore, we give this property 7 / 10. *Disclaimer: This is our option and does constitute a recommendation or financial advice. Do your own research. *
- Price
- 9
- Condition
- 8
- Location
- 7
- Land
- 6
- Bedrooms
- 3
- Bathrooms
- 1
- Sqft (est)
- 900.00
The heatmap indicates the level of crime in the area. The color of the heatmap indicates the crime severity and recency.
Metrics Year-on-Year
- Average area value
- 361,250.00 £Increased by 24.22 %
- Est sale value
- 414,900.00 £Increased by 77.31 %
- Average area rental value
- 1,375.00 £/moIncreased by 31.70 %
- Est letting value
- 900.00 £/mo
- Est rental Yield
- 4.57 %Increased by 6.03 %
- Crime Rate
- 0.00 %
from 290,814.00 £
from 234,000.00 £
from 1,044.00 £/mo
from 0.00 £/mo
from 4.31 %
from 0.00 %
Agent Activity
Gilson Bailey created the listing.
Nearby Schools
| Name | Type | Ofsted | Distance |
|---|---|---|---|
| Ashleigh Primary School And Nursery, Wymondham | Community School | Outstanding | 2.58 KM |
| Wymondham Area Children'S Centre | Children's Centre | 2.62 KM | |
| Hethersett Area Children'S Centre | Children's Centre | 3.27 KM | |
| Wymondham High Academy | Academy Converter | Good | 3.52 KM |
| Robert Kett Primary School | Foundation School | Requires improvement | 3.65 KM |
Images
Nearby Streets
| Name | Average Price | Average Sqft | Distance |
|---|---|---|---|
| Granger Close | £ 0 | 0 | 0.00 KM |
| Croft Way | £ 0 | 0 | 0.00 KM |
| Briggs Mead | £ 0 | 0 | 0.00 KM |
| Barnes Close | £ 0 | 0 | 0.00 KM |
| Wisteria Drive | £ 441,667 | 0 | 0.00 KM |
Nearby Transport
| Name | NLC | TLC | Distance |
|---|---|---|---|
| Wymondham | 7383 | WMD | 4.06 KM |
| Spooner Row | 7379 | SPN | 8.91 KM |
Nearby Listings
| Address | Price | Type | Score | Distance |
|---|---|---|---|---|
| Granger Crescent, Wymondham | £ 112,000 | BUY | 7 / 10 | 0.00 KM |
| Granger Crescent, Wymondham | £ 375,000 | BUY | Unknown | 0.05 KM |
| Briggs Mead, Wymondham | £ 220,000 | BUY | 7 / 10 | 0.11 KM |
| Briggs Mead, Wymondham | £ 300,000 | BUY | 7 / 10 | 0.11 KM |
| Briggs Mead, Wymondham | £ 290,000 | BUY | 8 / 10 | 0.18 KM |
Nearby Properties
| Address | Price | Distance |
|---|---|---|
| 55 Norwich Common | £ 260,000 | 0.34 KM |
| 49 Norwich Common | £ 590,000 | 0.34 KM |
| 17 Norwich Common | £ 279,650 | 0.35 KM |
| 59 Norwich Common | £ 68,000 | 0.35 KM |
| 39b Norwich Common | £ 395,000 | 0.35 KM |