Rogers & Co says ..
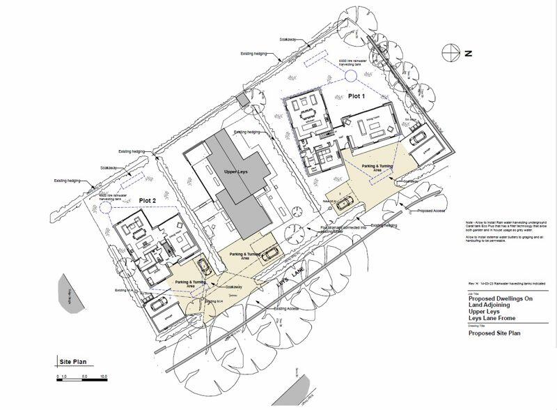
*** BUILDING PLOT *** A once in a lifetime opportunity to buy one of two plots with planning permission on the Northern fringe of Frome.
Property Oracle says ..
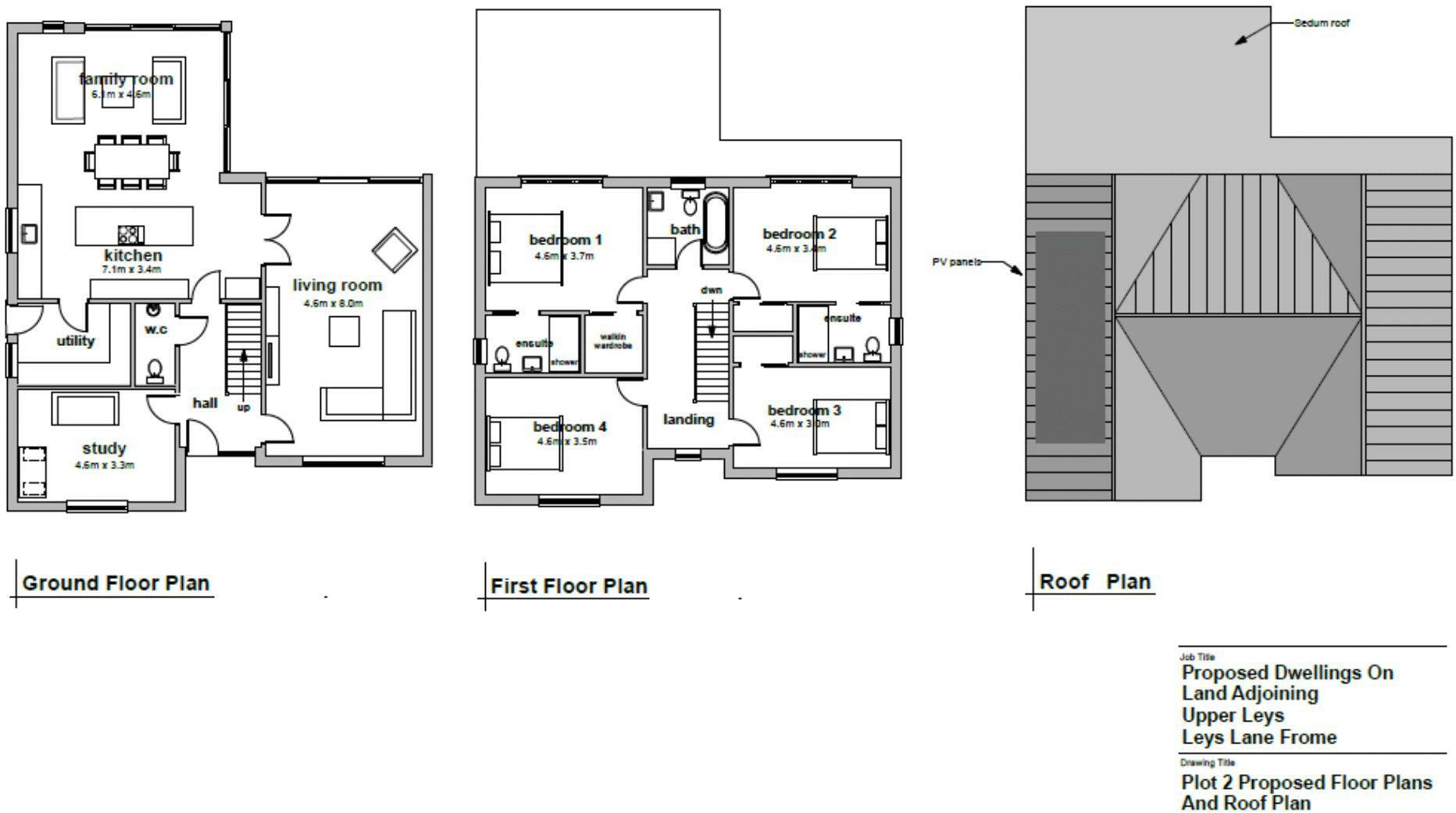
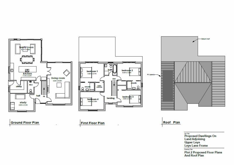
This property, situated on Leys Lane in Frome, Somerset, is a newly constructed or recently renovated four-bedroom, two-bathroom house. The architectural style features modern cladding and large windows. The property benefits from a garden, although its size appears to be moderate. The location offers a balance between suburban tranquility and proximity to town amenities such as Frome College, several schools, and Frome railway station. While some nearby schools have received less than ideal Ofsted ratings, others have received positive reviews. The list price sits within a reasonable range given the size, features and location, considering limited details provided on comparable properties. The lack of precise square footage data for comparable properties makes precise valuation more challenging, although the provided photographs suggest a high-quality build. Overall, the property presents itself as a good family home in a desirable area, offering a balance of space, modernity, and convenient access to local amenities.
Therefore, we give this property 6 / 10. *Disclaimer: This is our option and does constitute a recommendation or financial advice. Do your own research. *
- Price
- 7
- Condition
- 8
- Location
- 6
- Land
- 4
- Bedrooms
- 4
- Bathrooms
- 2
- Sqft (est)
- 1,751.93
The heatmap indicates the level of crime in the area. The color of the heatmap indicates the crime severity and recency.
Metrics Year-on-Year
- Average area value
- 491,651.00 £Increased by 28.33 %
- Est sale value
- 725,299.02 £Increased by 31.01 %
- Average area rental value
- 1,244.00 £/moIncreased by 23.17 %
- Est letting value
- 1,751.93 £/mo
- Est rental Yield
- 3.04 %Decreased by 3.80 %
- Crime Rate
- 0.00 %
Agent Activity
Rogers & Co created the listing.
Nearby Schools
| Name | Type | Ofsted | Distance |
|---|---|---|---|
| North Hill House | Other Independent Special School | Inadequate | 0.62 KM |
| Frome Community College | Community School | Good | 0.75 KM |
| Farleigh Further Education College - Frome | Special Post 16 Institution | Good | 0.91 KM |
| St Louis Catholic Primary School, Frome | Voluntary Aided School | Good | 1.07 KM |
| Vallis First School | Community School | Good | 1.16 KM |
Images
Nearby Streets
| Name | Average Price | Average Sqft | Distance |
|---|---|---|---|
| Park Hill Drive | £ 272,500 | 0 | 0.00 KM |
| Mendip Close | £ 0 | 0 | 0.00 KM |
| Cuckoo Lane | £ 0 | 0 | 0.00 KM |
| Rose Dale Walk | £ 0 | 0 | 0.00 KM |
| Thomas Bunn Close | £ 0 | 0 | 0.00 KM |
Nearby Transport
| Name | NLC | TLC | Distance |
|---|---|---|---|
| Frome | 5707 | FRO | 1.84 KM |
Nearby Listings
| Address | Price | Type | Score | Distance |
|---|---|---|---|---|
| Leys Lane, Frome | £ 350,000 | BUY | 6 / 10 | 0.00 KM |
| Selwood Lodge, Frome, Somerset | £ 3,500,000 | BUY | 7 / 10 | 0.01 KM |
| Leys Lane, Frome | £ 450,000 | BUY | 7 / 10 | 0.02 KM |
| Mendip Drive, Frome, BA11 | £ 350,000 | BUY | 6 / 10 | 0.16 KM |
| Lilly Batch, Frome | £ 399,950 | BUY | 7 / 10 | 0.18 KM |
Nearby Properties
| Address | Price | Distance |
|---|---|---|
| Upper Leys House | £ 465,000 | 0.04 KM |
| Selwood Lodge | £ 1,375,000 | 0.04 KM |
| Leys Tyning | £ 845,000 | 0.04 KM |
| Selwood Cottage | £ 620,000 | 0.04 KM |
| 6 Sedge Mead | £ 265,000 | 0.04 KM |