Church Hill Road, Cheam, SM3
By Kaybridge Residential
£ 225,000
Reviews
3 out of 5 stars
Kaybridge Residential says ..
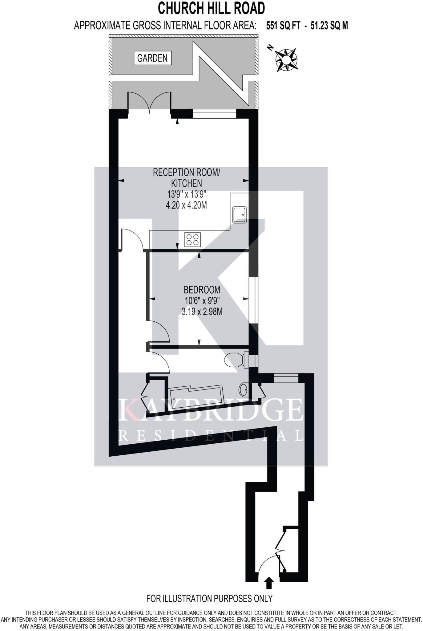
Modern one bedroom apartment with open plan living, fitted kitchen, spacious bedroom, allocated parking, and great transport links. Ideal for first-time buyers or investors. Sought-after location.
Property Oracle says ..
This is a one-bedroom apartment on Church Hill Road in Cheam. The property is in good condition, with a modern kitchen and bathroom. It also has a garden/patio area. The location is desirable, with good access to local amenities, schools, and transportation links. The price seems reasonable for the area and the property type. The property is located within walking distance of Cheam High School which is rated as ‘Outstanding’. The garden would benefit from some landscaping.
Therefore, we give this property 6 / 10. *Disclaimer: This is our option and does constitute a recommendation or financial advice. Do your own research. *
- Price
- 8
- Condition
- 7
- Location
- 7
- Land
- 5
- Bedrooms
- 1
- Bathrooms
- 1
- Sqft (est)
- 551.44
The heatmap indicates the level of crime in the area. The color of the heatmap indicates the crime severity and recency.
Metrics Year-on-Year
- Average area value
- 783,500.00 £Decreased by 0.05 %
- Est sale value
- 342,995.68 £Increased by 5.78 %
- Average area rental value
- 2,348.00 £/moIncreased by 2.67 %
- Est letting value
- 551.44 £/moUnchanged by 0.00 %
- Est rental Yield
- 3.60 %Increased by 2.86 %
- Crime Rate
- 3.00 %Unchanged by 0.00 %
Agent Activity
Kaybridge Residential created the listing.
Nearby Schools
| Name | Type | Ofsted | Distance |
|---|---|---|---|
| Cheam High School | Academy Converter | Outstanding | 0.20 KM |
| Cheam Fields Primary Academy | Academy Converter | Good | 0.44 KM |
| Cheam Park Farm Primary Academy | Academy Converter | Outstanding | 0.84 KM |
| Brookways School | Other Independent Special School | Good | 1.11 KM |
| Green Oak Children'S Centre (Formally Nonsuch And Cheam Sure Start Children'S Centre) | Children's Centre | 1.21 KM |
Images
Nearby Streets
| Name | Average Price | Average Sqft | Distance |
|---|---|---|---|
| Esher Avenue | £ 587,500 | 0 | 0.00 KM |
| The Meads | £ 0 | 0 | 0.00 KM |
| Westfield Close | £ 0 | 0 | 0.00 KM |
| Church Farm Road | £ 0 | 0 | 0.00 KM |
| Cheam Park Way | £ 0 | 0 | 0.00 KM |
Nearby Transport
| Name | NLC | TLC | Distance |
|---|---|---|---|
| West Sutton | 5293 | WSU | 1.28 KM |
| Cheam | 5352 | CHE | 1.36 KM |
| Sutton Common | 5436 | SUC | 2.39 KM |
| Sutton | 5385 | SUO | 2.95 KM |
| St Helier | 5290 | SIH | 3.18 KM |
Nearby Listings
| Address | Price | Type | Score | Distance |
|---|---|---|---|---|
| Church Hill Road, Cheam, SM3 | £ 225,000 | BUY | 6 / 10 | 0.00 KM |
| Church Hill Road, Cheam | £ 600,000 | BUY | 7 / 10 | 0.02 KM |
| Northfield Crescent, Cheam, Sutton, SM3 | £ 775,000 | BUY | 7 / 10 | 0.08 KM |
| Northfield Crescent, Sutton | £ 575,000 | BUY | Unknown | 0.12 KM |
| Abbotts Road, Cheam, Sutton, SM3 | £ 525,000 | BUY | 6 / 10 | 0.14 KM |
Nearby Properties
| Address | Price | Distance |
|---|---|---|
| 44 Church Hill Road | £ 472,000 | 0.02 KM |
| 131a Church Hill Road | £ 160,000 | 0.02 KM |
| 70 Church Hill Road | £ 600,000 | 0.02 KM |
| 76 Church Hill Road | £ 415,000 | 0.02 KM |
| 32 Church Hill Road | £ 615,000 | 0.02 KM |