FI
Brenaire Park, Woodlands Drive, Rawdon, Leeds, West Yorkshire
By Fine & Country
£ 3,800,000
Reviews
4 out of 5 stars
Fine & Country says ..
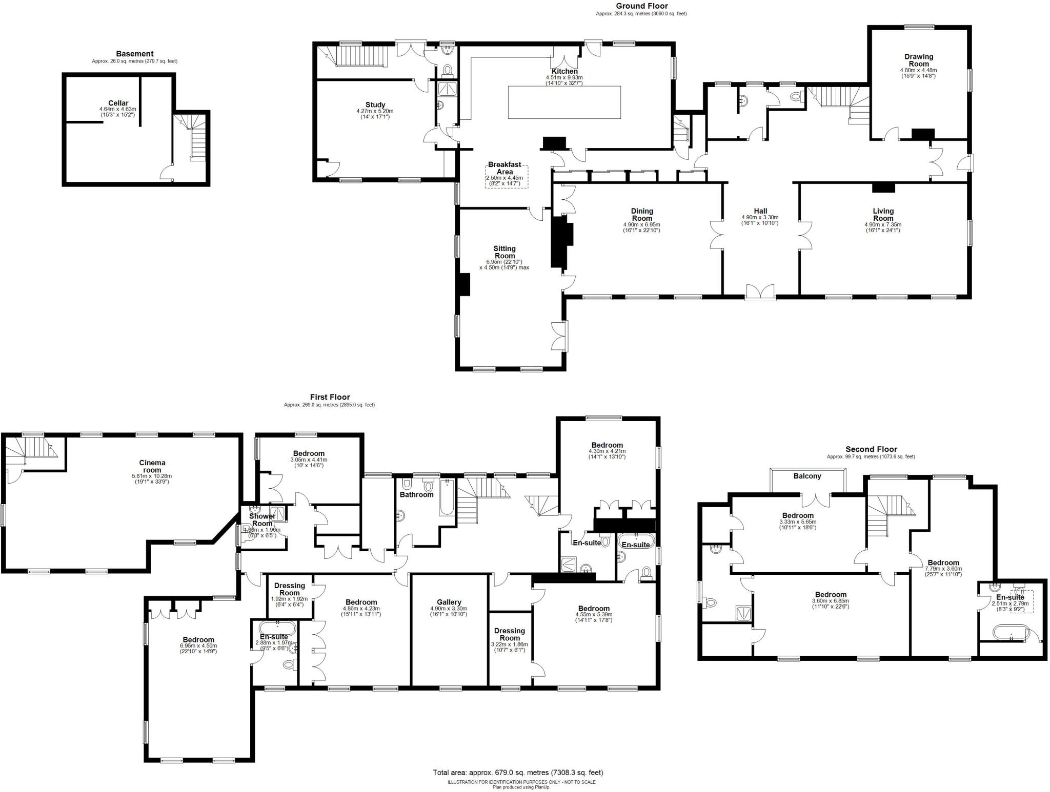
Brenaire Park takes full advantage of its elevated setting with extensive southerly views and a lovely wooded aspect on the western edge of the City of Leeds, with the locality noted for its individual calibre homes. Standing in grounds extending to some 10 acres in all comprising formal gardens ...
Property Oracle says ..
Therefore, we give this property 8 / 10. *Disclaimer: This is our option and does constitute a recommendation or financial advice. Do your own research. *
- Price
- 7
- Condition
- 8
- Location
- 9
- Land
- 9
- Bedrooms
- 8
- Bathrooms
- 5
- Sqft (est)
- 5,087.02
The heatmap indicates the level of crime in the area. The color of the heatmap indicates the crime severity and recency.
Metrics Year-on-Year
- Average area value
- 389,660.00 £Decreased by 2.80 %
- Est sale value
- 2,065,330.12 £Increased by 42.96 %
- Average area rental value
- 1,475.00 £/moIncreased by 31.70 %
- Est letting value
- 5,087.02 £/mo
- Est rental Yield
- 4.54 %Increased by 35.52 %
- Crime Rate
- 0.00 %
from 400,899.00 £
from 1,444,713.68 £
from 1,120.00 £/mo
from 0.00 £/mo
from 3.35 %
from 0.00 %
Agent Activity
Fine & Country created the listing.
Nearby Schools
| Name | Type | Ofsted | Distance |
|---|---|---|---|
| Woodhouse Grove School | Other Independent School | 1.04 KM | |
| Rawdon Littlemoor Primary School | Foundation School | Good | 1.23 KM |
| Benton Park School | Community School | Good | 1.67 KM |
| Calverley Church Of England Voluntary Aided Primary School | Voluntary Aided School | Good | 1.74 KM |
| Calverley Parkside Primary School | Academy Sponsor Led | 1.94 KM |
Images
Nearby Streets
| Name | Average Price | Average Sqft | Distance |
|---|---|---|---|
| Cragg Wood Drive | £ 826,000 | 0 | 0.00 KM |
| Woodlands Close | £ 975,000 | 0 | 0.00 KM |
| Low Fold | £ 0 | 0 | 0.00 KM |
| Thornhill Drive | £ 0 | 0 | 0.00 KM |
| Chapel Street | £ 0 | 0 | 0.00 KM |
Nearby Transport
| Name | NLC | TLC | Distance |
|---|---|---|---|
| Apperley Bridge | 8562 | APY | 1.55 KM |
| Guiseley | 8567 | GSY | 4.28 KM |
| New Pudsey | 8506 | NPD | 4.67 KM |
| Baildon | 8552 | BLD | 6.82 KM |
| Horsforth | 8499 | HRS | 6.86 KM |
Nearby Listings
| Address | Price | Type | Score | Distance |
|---|---|---|---|---|
| Brenaire Park, Woodlands Drive, Rawdon, Leeds, West Yorkshire | £ 3,800,000 | BUY | 8 / 10 | 0.00 KM |
| Woodlands Drive, Rawdon, Leeds, West Yorkshire, LS19 | £ 3,800,000 | BUY | Unknown | 0.01 KM |
| Cragg Wood Drive, Rawdon, Leeds | £ 900,000 | BUY | 8 / 10 | 0.30 KM |
| Acacia Park Terrace, Rawdon Border | £ 600,000 | BUY | 7 / 10 | 0.53 KM |
| The Spinney, Leeds | £ 1,250,000 | BUY | 8 / 10 | 0.55 KM |
Nearby Properties
| Address | Price | Distance |
|---|---|---|
| 2 Cragg Terrace | £ 202,500 | 0.27 KM |
| 8 Cragg Terrace | £ 182,500 | 0.29 KM |
| 1 Cragg Terrace | £ 319,950 | 0.29 KM |
| Larkrise | £ 760,000 | 0.30 KM |
| Orchard Hill | £ 1,130,000 | 0.30 KM |