24 Queens Road Queens Road, Weybridge, KT13 9UX
By McCarthy & Stone - South East
£ 475,000
Reviews
3 out of 5 stars
McCarthy & Stone - South East says ..
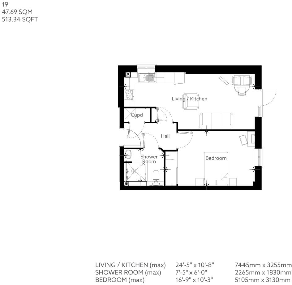
Apartment 19 is a beautiful one-bedroom apartment at our stunning Campbell House development in Weybridge.
Property Oracle says ..
This one-bedroom apartment located at 24 Queens Road, Weybridge, is situated in a prime location within a desirable area of Surrey. The proximity to excellent schools such as Manby Lodge Infant School (0.42 km) and Oatlands School (1.00 km) makes this property particularly attractive for families. Weybridge train station, providing convenient access to London, is also within comfortable walking distance.
The apartment itself appears to be in excellent condition, based on the high-quality photos. The finishes and décor are modern and stylish. However, the apparent lack of private outdoor space, along with the plot size of 0.00 sqft, may be a drawback for some buyers. It is part of a development with communal garden space, which provides some outdoor access.
While the list price of £475,000 seems reasonable given the location and condition, the lack of private outdoor space should be considered by potential buyers. Nearby property prices vary significantly depending on size and features, making it essential for buyers to conduct thorough market research before committing to a purchase. The absence of square footage information for some nearby properties makes direct price comparisons difficult.
Therefore, we give this property 6 / 10. *Disclaimer: This is our option and does constitute a recommendation or financial advice. Do your own research. *
- Price
- 7
- Condition
- 9
- Location
- 8
- Land
- 3
- Bedrooms
- 1
- Bathrooms
- 0
- Sqft (est)
- 513.34
The heatmap indicates the level of crime in the area. The color of the heatmap indicates the crime severity and recency.
Metrics Year-on-Year
- Average area value
- 2,713,636.00 £Increased by 69.90 %
- Est sale value
- 430,692.26 £Increased by 44.66 %
- Average area rental value
- 4,007.00 £/moIncreased by 11.27 %
- Est letting value
- 513.34 £/moUnchanged by 0.00 %
- Est rental Yield
- 1.77 %Decreased by 34.69 %
- Crime Rate
- 16.00 %Unchanged by 0.00 %
Agent Activity
McCarthy & Stone - South East created the listing.
Nearby Schools
| Name | Type | Ofsted | Distance |
|---|---|---|---|
| Manby Lodge Infant School | Community School | Good | 0.42 KM |
| St James Cofe Primary School | Voluntary Controlled School | Good | 0.87 KM |
| Oatlands School | Community School | Outstanding | 1.00 KM |
| St George'S Junior School Weybridge | Other Independent School | 1.39 KM | |
| Weybridge Sure Start Children'S Centre | Children's Centre | 1.49 KM |
Images
Nearby Streets
| Name | Average Price | Average Sqft | Distance |
|---|---|---|---|
| York Road | £ 925,000 | 0 | 0.00 KM |
| Barrington Lodge | £ 0 | 0 | 0.00 KM |
| Howard Place | £ 412,500 | 0 | 0.00 KM |
| Saint George’s Close | £ 725,000 | 0 | 0.00 KM |
| Cedar Grove | £ 0 | 0 | 0.00 KM |
Nearby Transport
| Name | NLC | TLC | Distance |
|---|---|---|---|
| Weybridge | 5577 | WYB | 1.46 KM |
| Shepperton | 5605 | SHP | 3.25 KM |
| Walton-On-Thames | 5575 | WAL | 3.51 KM |
| Addlestone | 5550 | ASN | 4.30 KM |
| Byfleet And New Haw | 5689 | BFN | 4.39 KM |
Nearby Listings
| Address | Price | Type | Score | Distance |
|---|---|---|---|---|
| 24 Queens Road Queens Road, Weybridge, KT13 9UX | £ 730,200 | BUY | 7 / 10 | 0.00 KM |
| 24 Queens Road Queens Road, Weybridge, KT13 9UX | £ 745,000 | BUY | 7 / 10 | 0.00 KM |
| 24 Queens Road Queens Road, Weybridge, KT13 9UX | £ 525,000 | BUY | 7 / 10 | 0.00 KM |
| 24 Queens Road Queens Road, Weybridge, KT13 9UX | £ 475,000 | BUY | 6 / 10 | 0.00 KM |
| 24 Queens Road Queens Road, Weybridge, KT13 9UX | £ 650,000 | BUY | 6 / 10 | 0.00 KM |
Nearby Properties
| Address | Price | Distance |
|---|---|---|
| 61 Queens Road | £ 490,000 | 0.05 KM |
| 99a Queens Road | £ 280,000 | 0.06 KM |
| 87a Queens Road | £ 250,000 | 0.06 KM |
| 22a Princes Road | £ 880,000 | 0.08 KM |
| 22 Princes Road | £ 649,995 | 0.08 KM |