Yopa says ..
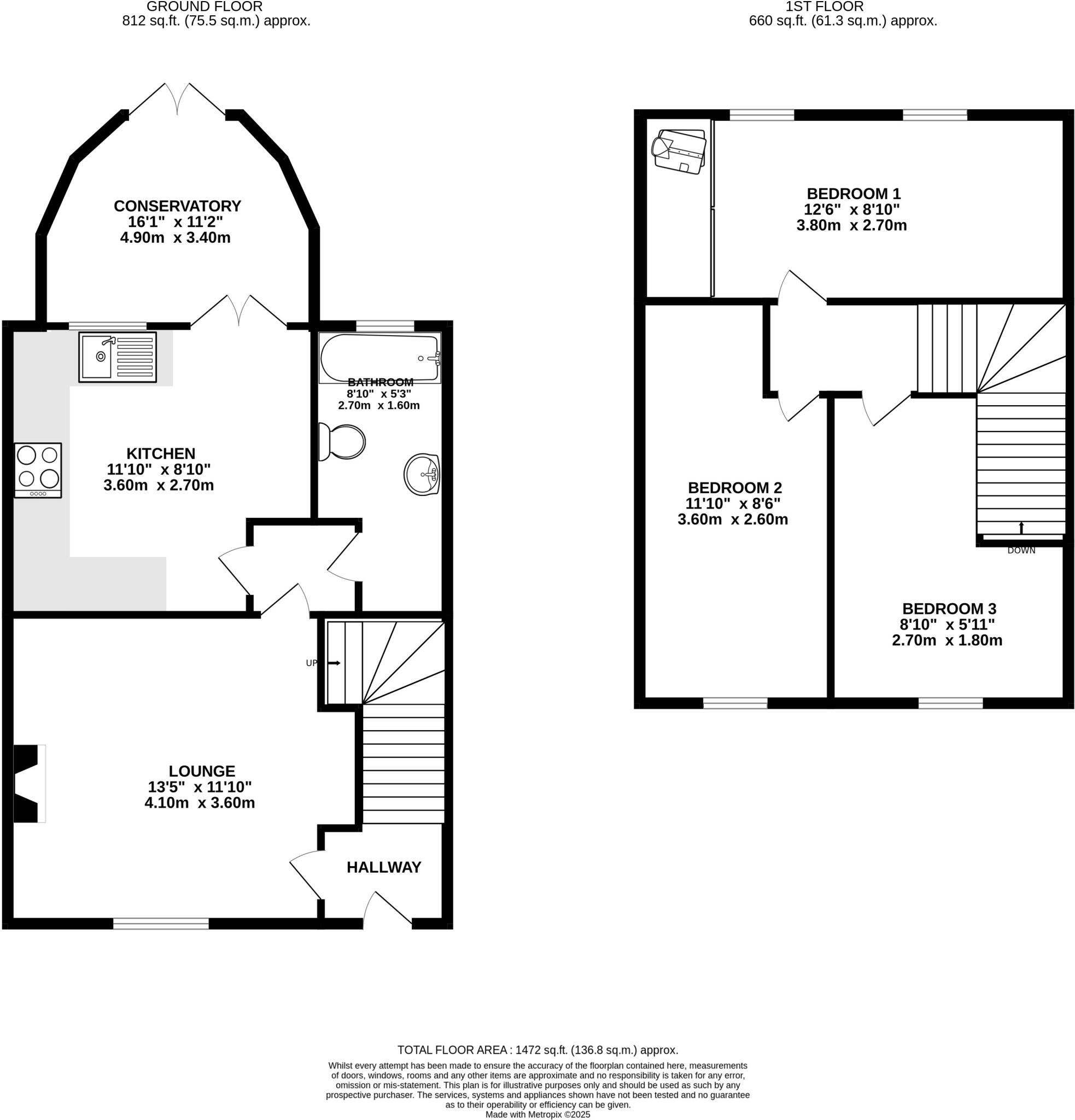
A 3-bedroom semi-detached home on Laburnum Road, Swindon, needs renovation and TLC. Features include a spacious garden, off-street parking, and potential for modern upgrades. Room to modernise and add your own stamp.
Property Oracle says ..
This 3-bedroom semi-detached house on Laburnum Road, Swindon, presents a mixed bag of opportunities and challenges. Its location in Gorse Hill and Pinehurst offers relative affordability and proximity to schools and transport links, making it potentially appealing to families or first-time buyers on a budget. However, the property is clearly in need of significant modernisation and renovation. The photographs reveal dated fixtures, fittings, and cosmetic issues in several rooms, requiring considerable investment to bring the property up to a modern standard. The bathroom, in particular, appears to require a full refurbishment. The garden, while present, requires further details on size and condition for a proper assessment. The asking price of £200,000 appears marginally high given the extensive renovation needed but, considering comparative prices in the Laburnum Road vicinity, it is not unreasonable. Potential buyers should budget carefully for refurbishment costs and thoroughly investigate the property’s structural integrity before committing to purchase.
Therefore, we give this property 5 / 10. *Disclaimer: This is our option and does constitute a recommendation or financial advice. Do your own research. *
- Price
- 7
- Condition
- 4
- Location
- 6
- Land
- 5
- Bedrooms
- 3
- Bathrooms
- 1
- Sqft (est)
- 1,472.50
The heatmap indicates the level of crime in the area. The color of the heatmap indicates the crime severity and recency.
Metrics Year-on-Year
- Average area value
- 481,967.00 £Increased by 28.07 %
- Est sale value
- 589,000.00 £Decreased by 15.97 %
- Average area rental value
- 1,254.00 £/moIncreased by 10.97 %
- Est letting value
- 1,472.50 £/moUnchanged by 0.00 %
- Est rental Yield
- 3.12 %Decreased by 13.33 %
- Crime Rate
- 13.00 %Unchanged by 0.00 %
Agent Activity
Yopa created the listing.
Nearby Schools
| Name | Type | Ofsted | Distance |
|---|---|---|---|
| Swindon Academy | Academy Sponsor Led | Good | 0.49 KM |
| Seven Fields Primary School | Academy Converter | Requires improvement | 0.76 KM |
| Swindon Sure Start Academy | Children's Centre Linked Site | 0.93 KM | |
| Sure Start Pinehurst And Penhill Children'S Centre | Children's Centre | 1.13 KM | |
| Crowdys Hill School | Community Special School | Good | 1.21 KM |
Images
Nearby Streets
| Name | Average Price | Average Sqft | Distance |
|---|---|---|---|
| Laburnum Road | £ 167,500 | 0 | 0.00 KM |
| Stockton Road | £ 0 | 0 | 0.00 KM |
| Semley Walk | £ 0 | 0 | 0.00 KM |
| Firethorn Close | £ 210,000 | 0 | 0.00 KM |
| Acacia Grove | £ 0 | 0 | 0.00 KM |
Nearby Transport
| Name | NLC | TLC | Distance |
|---|---|---|---|
| Swindon (Wilts) | 3333 | SWI | 2.00 KM |
Nearby Listings
| Address | Price | Type | Score | Distance |
|---|---|---|---|---|
| Laburnum Road, Swindon, SN2 | £ 200,000 | BUY | 5 / 10 | 0.00 KM |
| Laburnum Road, Swindon | £ 280,000 | BUY | 6 / 10 | 0.01 KM |
| Laburnum Road, Swindon | £ 280,000 | BUY | 6 / 10 | 0.01 KM |
| Swindon, Wiltshire, SN25 | £ 260,000 | BUY | 7 / 10 | 0.09 KM |
| Laburnum Road, Swindon, Wiltshire, SN2 1QY | £ 150,000 | BUY | 6 / 10 | 0.10 KM |
Nearby Properties
| Address | Price | Distance |
|---|---|---|
| 9 Laburnum Road | £ 230,000 | 0.01 KM |
| 1 Laburnum Road | £ 240,000 | 0.01 KM |
| 21 Laburnum Road | £ 119,000 | 0.01 KM |
| 10 Laburnum Road | £ 137,500 | 0.01 KM |
| 16 Laburnum Road | £ 166,500 | 0.01 KM |