MA
Balcombe Road, Horley, Surrey, RH6
By Mayhew Estates
£ 750,000
Reviews
3 out of 5 stars
Mayhew Estates says ..
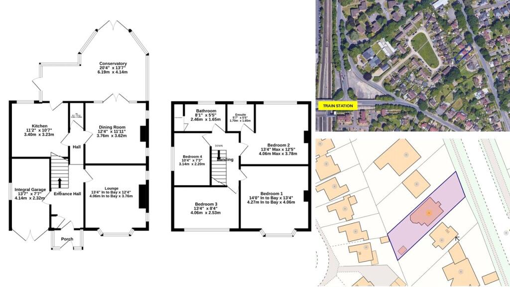
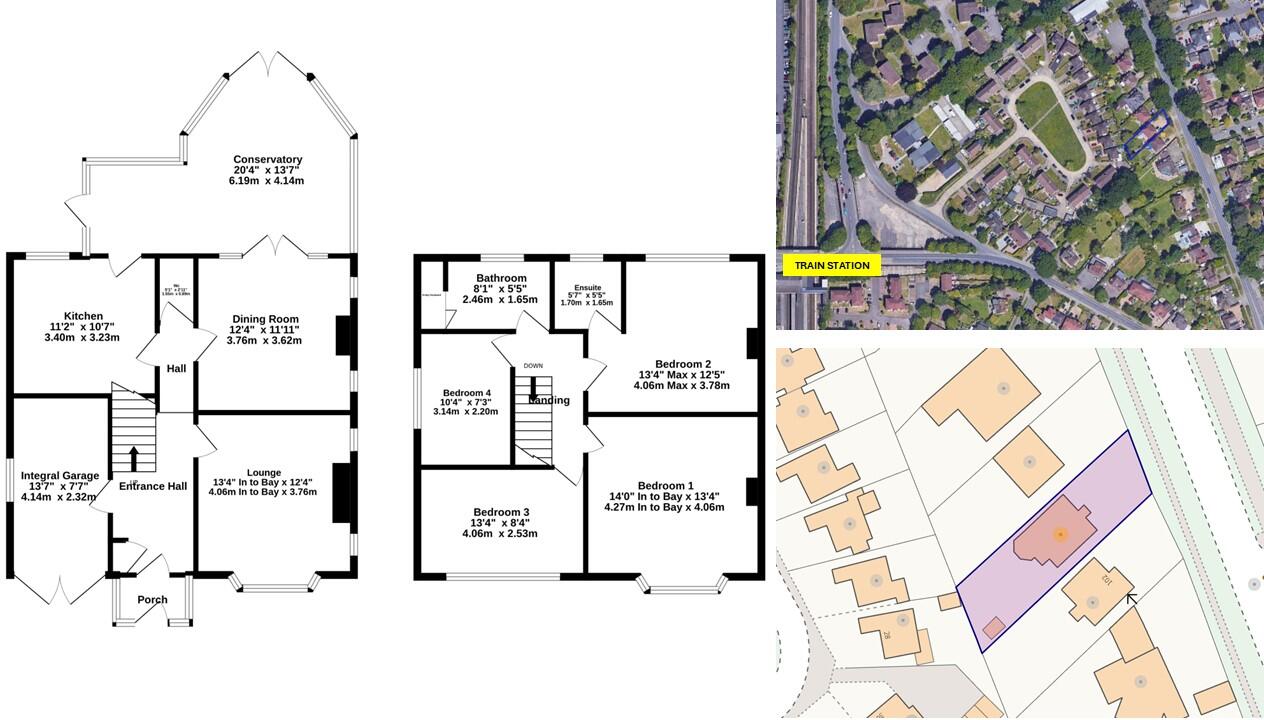
Guide Price £750,000 - £800,000. A 4 double bedroom detached house with 2 bath/shower rooms, downstairs WC, 3 reception rooms, integral garage, ample parking, lovely garden and beautiful character features.
Property Oracle says ..
Therefore, we give this property 7 / 10. *Disclaimer: This is our option and does constitute a recommendation or financial advice. Do your own research. *
- Price
- 6
- Condition
- 8
- Location
- 8
- Land
- 7
- Bedrooms
- 4
- Bathrooms
- 2
- Sqft (est)
- 1,419.44
The heatmap indicates the level of crime in the area. The color of the heatmap indicates the crime severity and recency.
Metrics Year-on-Year
- Average area value
- 401,643.00 £Decreased by 13.23 %
- Est sale value
- 675,653.44 £Increased by 40.83 %
- Average area rental value
- 1,377.00 £/moDecreased by 6.96 %
- Est letting value
- 1,419.44 £/moUnchanged by 0.00 %
- Est rental Yield
- 4.11 %Increased by 7.03 %
- Crime Rate
- 5.00 %Unchanged by 0.00 %
from 462,859.00 £
from 479,770.72 £
from 1,480.00 £/mo
from 1,419.44 £/mo
from 3.84 %
from 5.00 %
Agent Activity
Mayhew Estates created the listing.
Nearby Schools
| Name | Type | Ofsted | Distance |
|---|---|---|---|
| Oakwood School | Community School | Good | 0.41 KM |
| Langshott Primary School | Community School | Good | 0.53 KM |
| Horley Infant School | Community School | Good | 0.91 KM |
| Yattendon School | Foundation School | Good | 1.13 KM |
| Trinity Oaks Church Of England Primary School | Voluntary Aided School | Good | 1.63 KM |
Images
Nearby Streets
| Name | Average Price | Average Sqft | Distance |
|---|---|---|---|
| Fishers Farm | £ 795,000 | 0 | 0.00 KM |
| The Drive | £ 475,000 | 0 | 0.00 KM |
| Meadowside | £ 0 | 0 | 0.00 KM |
| Larksfield | £ 550,000 | 0 | 0.00 KM |
| Maizecroft | £ 235,000 | 0 | 0.00 KM |
Nearby Transport
| Name | NLC | TLC | Distance |
|---|---|---|---|
| Horley | 5365 | HOR | 0.47 KM |
| Gatwick Airport | 5416 | GTW | 1.56 KM |
| Salfords (Surrey) | 5380 | SAF | 3.60 KM |
| Three Bridges | 5491 | TBD | 5.91 KM |
| Earlswood (Surrey) | 5414 | ELD | 6.58 KM |
Nearby Listings
| Address | Price | Type | Score | Distance |
|---|---|---|---|---|
| Balcombe Road, Horley, Surrey, RH6 | £ 750,000 | BUY | 7 / 10 | 0.00 KM |
| Balcombe Road, Horley, Surrey, RH6 | £ 740,000 | BUY | 7 / 10 | 0.02 KM |
| Fairlawns, Horley, RH6 | £ 325,000 | BUY | 7 / 10 | 0.11 KM |
| Aurum Close, Horley, Surrey, RH6 | £ 150,000 | BUY | Unknown | 0.12 KM |
| Aurum Close, Horley, Surrey, RH6 | £ 135,000 | BUY | 6 / 10 | 0.12 KM |
Nearby Properties
| Address | Price | Distance |
|---|---|---|
| 96 Balcombe Road | £ 740,000 | 0.04 KM |
| 94 Balcombe Road | £ 360,000 | 0.04 KM |
| 102 Balcombe Road | £ 560,000 | 0.04 KM |
| 119a Balcombe Road | £ 485,000 | 0.12 KM |
| 121 Balcombe Road | £ 500,000 | 0.12 KM |