Yopa says ..
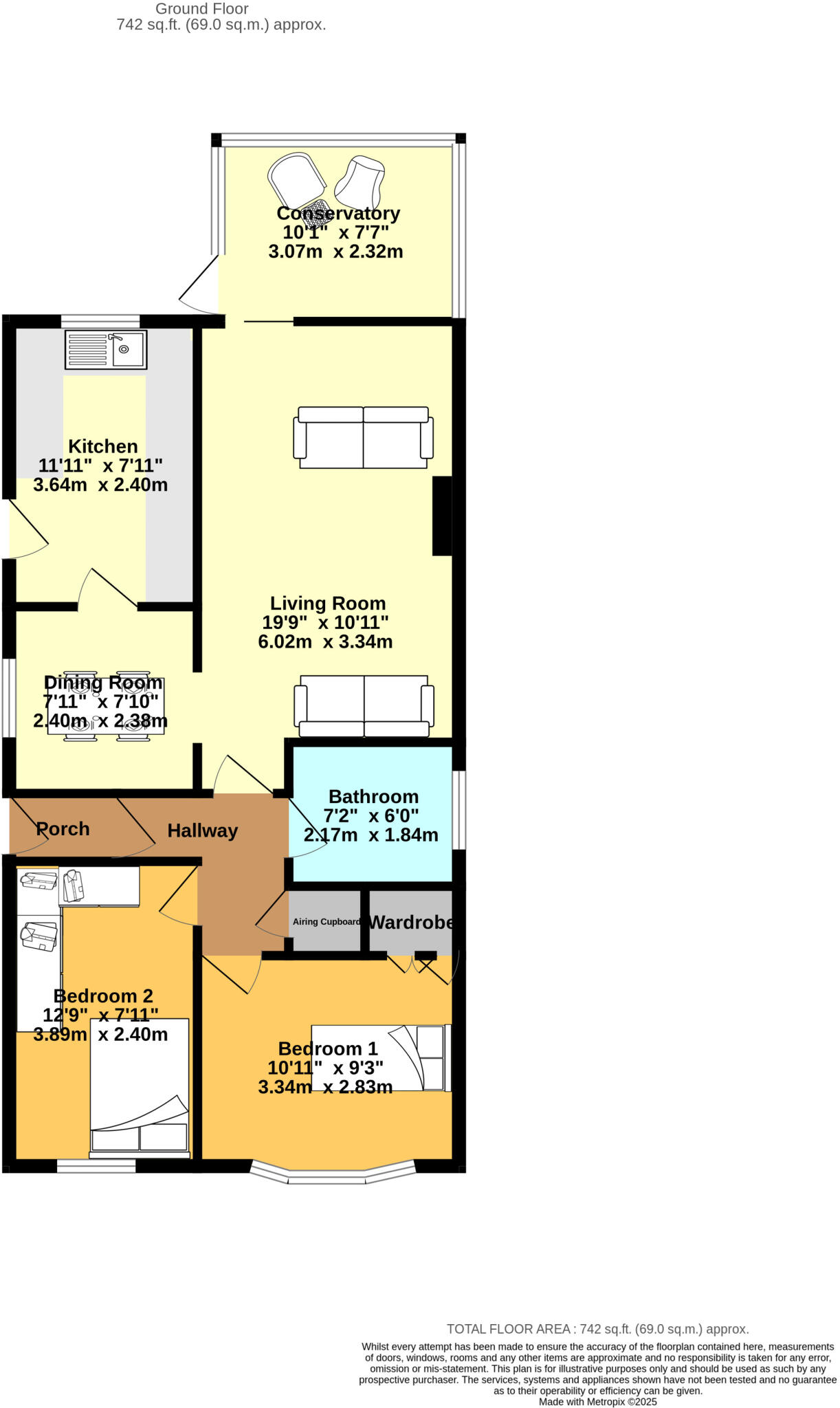
Beautifully maintained and well cared for 2-bed detached bungalow in a peaceful cul-de-sac. Features a spacious living room, conservatory, modern kitchen, walk-in shower, and picturesque garden. Long driveway with garage and no upward chain. A perfect home in a friendly, well-connected community.
Property Oracle says ..
The property is a two-bedroom bungalow located in a residential area of Crewe, Cheshire. The property is in need of modernisation, but has a good sized garden and a garage. The property is located close to local amenities, including a primary school and a train station. The property is listed for £260,000, which is reasonable considering the condition of the property and the location.
Therefore, we give this property 6 / 10. *Disclaimer: This is our option and does constitute a recommendation or financial advice. Do your own research. *
- Price
- 7
- Condition
- 5
- Location
- 7
- Land
- 7
- Bedrooms
- 2
- Bathrooms
- 1
- Sqft (est)
- 693.67
The heatmap indicates the level of crime in the area. The color of the heatmap indicates the crime severity and recency.
Metrics Year-on-Year
- Average area value
- 393,216.00 £Increased by 17.54 %
- Est sale value
- 223,361.74 £Increased by 20.15 %
- Average area rental value
- 1,150.00 £/moIncreased by 7.38 %
- Est letting value
- 0.00 £/mo
- Est rental Yield
- 3.51 %Decreased by 8.59 %
- Crime Rate
- 83.00 %Unchanged by 0.00 %
Agent Activity
Yopa created the listing.
Nearby Schools
| Name | Type | Ofsted | Distance |
|---|---|---|---|
| Weston Village Primary School | Academy Converter | 0.75 KM | |
| Safe Opportunities | Special Post 16 Institution | 3.13 KM | |
| Springfield School | Community Special School | Outstanding | 3.47 KM |
| Haslington Primary Academy | Academy Converter | 3.87 KM | |
| Shavington Primary School | Academy Converter | Good | 4.12 KM |
Images
Nearby Streets
| Name | Average Price | Average Sqft | Distance |
|---|---|---|---|
| Haverhill Close | £ 0 | 0 | 0.00 KM |
| Abbeydale Close | £ 0 | 0 | 0.00 KM |
| Casey Lane | £ 0 | 0 | 0.00 KM |
| Larch Avenue | £ 290,000 | 0 | 0.00 KM |
Nearby Transport
| Name | NLC | TLC | Distance |
|---|---|---|---|
| Crewe | 1243 | CRE | 3.81 KM |
| Sandbach | 1261 | SDB | 9.63 KM |
Nearby Listings
| Address | Price | Type | Score | Distance |
|---|---|---|---|---|
| Fairview Avenue, Crewe, CW2 | £ 260,000 | BUY | 6 / 10 | 0.00 KM |
| Fairview Avenue, Weston, Crewe, Cheshire, CW2 | £ 200,000 | BUY | 5 / 10 | 0.00 KM |
| Fairview Avenue, Weston, CW2 | £ 400,000 | BUY | 7 / 10 | 0.11 KM |
| Joseph Major Close, Weston Woods, Crewe | £ 290,000 | BUY | 7 / 10 | 0.15 KM |
| Joseph Major Close, Weston Woods, Crewe | £ 194,250 | BUY | 7 / 10 | 0.18 KM |
Nearby Properties
| Address | Price | Distance |
|---|---|---|
| 25 Fairview Avenue | £ 250,000 | 0.00 KM |
| 4 Fairview Avenue | £ 189,000 | 0.00 KM |
| 1 Fairview Avenue | £ 175,000 | 0.01 KM |
| 37 Mere Road | £ 275,000 | 0.04 KM |
| 40 Mere Road | £ 155,000 | 0.04 KM |