Corrie and Co Ltd says ..
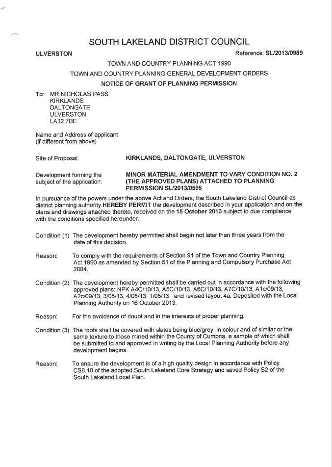
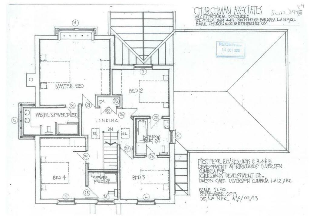
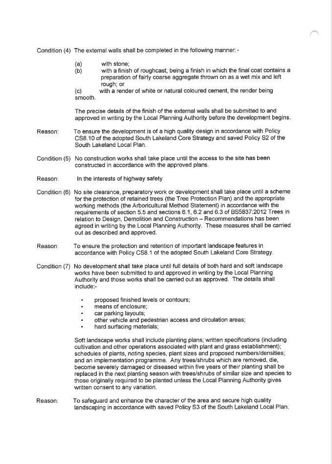
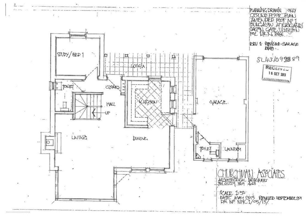
Located close to the Town Centre, this prime site with residential planning permission (Reference SL/2013/0989) is available for development of six detached properties. The site extends to approximately 1.07 acres and is offered Freehold with vacant possession. All enquiries should be directed to...
Property Oracle says ..
This property in Ulverston, Cumbria, is a development opportunity rather than a ready-to-occupy home. It’s a 1.07-acre plot with planning permission (reference SL/2013/0989) for six detached houses. The existing structure on the site appears older and would require extensive renovation or demolition and new construction. The location is advantageous, close to Ulverston town centre, train station, and good schools. However, the proximity to a busy road may be a drawback. Nearby properties provide limited price comparison data. Given the cost of demolishing the existing structure, building six new houses, and the necessary land preparation and services installation, along with the inherent uncertainties and risks involved in new construction, it’s worth considering the total cost of this project and comparing that total cost to the final sale price of the project to determine if the asking price is reflective of current market conditions. The potential for future profit is high with the current planning consent. Ulverston is a desirable area with strong demand, and the large plot size is highly attractive to developers. The planning permission documentation is extensive. Therefore, due diligence is required on all planning conditions prior to purchase of the property. Buyers should independently verify all planning requirements, costs, and market conditions before committing to a purchase.
Therefore, we give this property 6 / 10. *Disclaimer: This is our option and does constitute a recommendation or financial advice. Do your own research. *
- Price
- 6
- Condition
- 4
- Location
- 7
- Land
- 8
- Bedrooms
- 0
- Bathrooms
- 0
The heatmap indicates the level of crime in the area. The color of the heatmap indicates the crime severity and recency.
Metrics Year-on-Year
- Average area value
- 285,000.00 £Decreased by 11.80 %
- Average area rental value
- 1,200.00 £/moDecreased by 16.67 %
- Est rental Yield
- 5.05 %Decreased by 5.61 %
- Crime Rate
- 2.00 %Unchanged by 0.00 %
Agent Activity
Corrie and Co Ltd created the listing.
Nearby Schools
| Name | Type | Ofsted | Distance |
|---|---|---|---|
| St Mary'S Catholic Primary School | Voluntary Aided School | Good | 0.67 KM |
| Church Walk Cofe Primary School | Voluntary Aided School | Good | 0.90 KM |
| Ulverston Victoria High School | Community School | Good | 0.96 KM |
| Sir John Barrow School | Community School | Good | 1.18 KM |
| Croftlands Infant School | Community School | Good | 1.50 KM |
Images
Nearby Streets
| Name | Average Price | Average Sqft | Distance |
|---|---|---|---|
| The Knoll | £ 525,000 | 0 | 0.00 KM |
| Kennedy Place | £ 0 | 0 | 0.00 KM |
| County Road | £ 200,000 | 0 | 0.00 KM |
| Daltongate | £ 250,000 | 0 | 0.00 KM |
| Gill Banks | £ 367,500 | 0 | 0.00 KM |
Nearby Transport
| Name | NLC | TLC | Distance |
|---|---|---|---|
| Ulverston | 2010 | ULV | 0.45 KM |
| Dalton (Cumbria) | 1957 | DLT | 9.85 KM |
Nearby Listings
| Address | Price | Type | Score | Distance |
|---|---|---|---|---|
| Daltongate, Ulverston | £ 725,000 | BUY | 6 / 10 | 0.00 KM |
| Fallowfield Avenue, Ulverston | £ 230,000 | BUY | 7 / 10 | 0.13 KM |
| Deerfield, Ulverston | £ 239,500 | BUY | 7 / 10 | 0.18 KM |
| Trinity Gardens, Ulverston, LA12 7UB | £ 170,000 | BUY | 6 / 10 | 0.22 KM |
| The Knoll, Daltongate, Ulverston | £ 525,000 | BUY | 6 / 10 | 0.24 KM |
Nearby Properties
| Address | Price | Distance |
|---|---|---|
| Waverley Cottage | £ 220,000 | 0.12 KM |
| 34 Daltongate | £ 315,000 | 0.12 KM |
| 53 Daltongate | £ 285,000 | 0.12 KM |
| Kirklands | £ 120,000 | 0.12 KM |
| 32 Daltongate | £ 220,000 | 0.12 KM |