Church Hill, Arnside, LA5
By Waterhouse Estate Agents
£ 199,995
Reviews
3 out of 5 stars
Waterhouse Estate Agents says ..
A wonderful one bedroom apartment bursting with character and original features and benefitting from elevated views over to the estuary and beyond
Property Oracle says ..
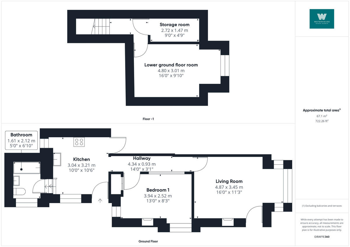
This one-bedroom apartment in Arnside, Cumbria, presents a charming and well-maintained living space. The property benefits from a convenient location near the Arnside train station and has access to several schools within a reasonable distance, including Arnside National Cofe School. While some schools may require improvement according to Ofsted, others, such as Bleasdale School, have achieved an outstanding rating. The apartment’s interior showcases a tasteful blend of modern amenities and period features, with an updated kitchen and a comfortable living area. The inclusion of multiple fireplaces adds to the property’s character. Outside, a small patio garden provides an outdoor area, perfect for relaxing. Although limited in land size, the garden is well-maintained and landscaped. The overall condition of the property suggests that it is ready for immediate occupation. The asking price falls within a reasonable range considering similar properties in the area. However, prospective buyers should carefully consider the relatively small size of the apartment and land area before proceeding with a purchase. Overall, it is well-suited to a single person or couple looking for a stylish and convenient home in a picturesque location.
Therefore, we give this property 6 / 10. *Disclaimer: This is our option and does constitute a recommendation or financial advice. Do your own research. *
- Price
- 7
- Condition
- 8
- Location
- 7
- Land
- 3
- Bedrooms
- 1
- Bathrooms
- 1
- Sqft (est)
- 235.73
The heatmap indicates the level of crime in the area. The color of the heatmap indicates the crime severity and recency.
Metrics Year-on-Year
- Average area value
- 403,333.00 £Increased by 25.71 %
- Est sale value
- 81,798.31 £Decreased by 5.45 %
- Average area rental value
- 1,350.00 £/moIncreased by 104.55 %
- Est letting value
- 235.73 £/mo
- Est rental Yield
- 4.02 %Increased by 62.75 %
- Crime Rate
- 7.00 %Unchanged by 0.00 %
Agent Activity
Waterhouse Estate Agents created the listing.
Nearby Schools
| Name | Type | Ofsted | Distance |
|---|---|---|---|
| Arnside National Cofe School | Academy Converter | Requires improvement | 0.18 KM |
| Switched2 | Other Independent Special School | 2.75 KM | |
| Storth Cofe School | Voluntary Controlled School | Good | 3.07 KM |
| Silverdale St John'S Church Of England Voluntary Aided Primary School | Voluntary Aided School | Good | 3.57 KM |
| Bleasdale School | Community Special School | Outstanding | 3.69 KM |
Images
Nearby Streets
| Name | Average Price | Average Sqft | Distance |
|---|---|---|---|
| Station Road | £ 193,750 | 0 | 0.00 KM |
| Queens Drive | £ 239,000 | 0 | 0.00 KM |
| Inglewood Court | £ 238,500 | 0 | 0.00 KM |
| The Spinney | £ 550,000 | 0 | 0.00 KM |
| Parkside Drive | £ 350,000 | 0 | 0.00 KM |
Nearby Transport
| Name | NLC | TLC | Distance |
|---|---|---|---|
| Arnside | 1963 | ARN | 0.28 KM |
| Silverdale | 1968 | SVR | 4.67 KM |
| Grange-Over-Sands | 1965 | GOS | 7.99 KM |
Nearby Listings
| Address | Price | Type | Score | Distance |
|---|---|---|---|---|
| Church Hill, Arnside, LA5 | £ 199,995 | BUY | 6 / 10 | 0.00 KM |
| Flat 2 Howgill, 24 Church Hill, Arnside, Cumbria LA5 0DJ | £ 240,000 | BUY | Unknown | 0.13 KM |
| 7 Ashleigh Court, Station Road, Arnside, Cumbria, LA5 0JH | £ 185,000 | BUY | Unknown | 0.13 KM |
| 32 Ashleigh Court, Station Road, Arnside, Cumbria, LA5 0JH | £ 170,000 | BUY | 8 / 10 | 0.13 KM |
| Station Road, Carnforth, LA5 | £ 170,000 | BUY | 7 / 10 | 0.14 KM |
Nearby Properties
| Address | Price | Distance |
|---|---|---|
| 2 Church View Cottages | £ 230,000 | 0.04 KM |
| 4 Church View Cottages | £ 268,000 | 0.04 KM |
| Sandford | £ 225,000 | 0.11 KM |
| Glenroyd | £ 220,000 | 0.11 KM |
| Duart | £ 262,000 | 0.11 KM |