Blagraves, Barnard Castle, County Durham
IN

Blagraves, Barnard Castle, County Durham

By Inigo

£ 550,000

Reviews

3 out of 5 stars

Inigo says ..

The oldest residence in Barnard Castle, and the second oldest building in the town after its namesake medieval castle, Blagraves is an astonishing Grade I-listed, mixed-use three/four-bedroom home with a ground-floor commercial space previously used as a delightful café/antiques shop/gallery.

Property Oracle says ..

Blagraves in Barnard Castle, County Durham is a Grade I-listed, mixed-use property boasting significant historical character. The images reveal a home that retains a great deal of its original features, including stunning woodwork, fireplaces, and architectural details. The property includes three or four bedrooms and two bathrooms, alongside a ground floor commercial space previously used as a café or shop. The interior is presented in a uniquely styled and decorated fashion, which, while attractive to some, may require a future owner to either appreciate the present styling, or embark on remodeling. A small, walled courtyard garden provides a degree of external space. The location within Barnard Castle offers access to local amenities and schools, with several highly-rated primary schools within a short distance. However, a lack of specific information concerning plot size and precise square footage for similar properties prevents precise comparative analysis of the property’s value. The asking price is substantial; it must be weighed against the costs of any necessary maintenance or renovation work while considering the potential return if the commercial space is rented or operated as a business.

Therefore, we give this property 6 / 10. *Disclaimer: This is our option and does constitute a recommendation or financial advice. Do your own research. *

Price
7
Condition
7
Location
8
Land
3
Bedrooms
3
Bathrooms
2
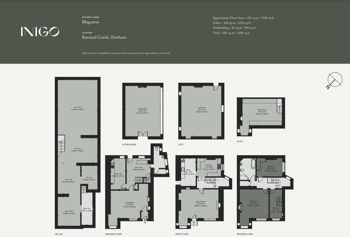
Sqft (est)
5,392.72

The heatmap indicates the level of crime in the area. The color of the heatmap indicates the crime severity and recency.

Metrics Year-on-Year

Average area value
484,999.00 £
Increased by 46.03 %
from 332,133.00 £
Est sale value
1,860,488.40 £
Increased by 58.99 %
from 1,170,220.24 £
Average area rental value
775.00 £/mo
Increased by 4.59 %
from 741.00 £/mo
Est letting value
0.00 £/mo
from 0.00 £/mo
Est rental Yield
1.92 %
Decreased by 28.36 %
from 2.68 %
Crime Rate
15.00 %
Unchanged by 0.00 %
from 15.00 %

Agent Activity

  • Inigo created the listing.

Nearby Schools

NameTypeOfstedDistance
St Mary'S Roman Catholic Voluntary Aided Primary School, Barnard CastleVoluntary Aided SchoolGood0.45 KM
Montalbo Nursery & Primary SchoolCommunity SchoolGood0.84 KM
Barnard Castle SchoolOther Independent School1.37 KM
Teesdale School And Sixth FormAcademy Sponsor LedOutstanding1.57 KM
Green Lane Church Of England Controlled Primary SchoolVoluntary Controlled SchoolGood1.62 KM

Images

233673 - a0OP6000003Oac8MAC_N3.jpg 233687 - a0OP6000003Oac8MAC_N47.jpg 233682 - a0OP6000003Oac8MAC_N36.jpg 233572 - blagraves_briggs_065.jpg 233674 - a0OP6000003Oac8MAC_N4.jpg 233681 - a0OP6000003Oac8MAC_N34.jpg 233697 - a0OP6000003Oac8MAC_N68.jpg 233698 - a0OP6000003Oac8MAC_N69.jpg 233580 - blagraves_briggs_073.jpg 233708 - a0OP6000003Oac8MAC_N110.jpg 233675 - a0OP6000003Oac8MAC_N12.jpg 233676 - a0OP6000003Oac8MAC_N13.jpg 233677 - a0OP6000003Oac8MAC_N14.jpg 233689 - a0OP6000003Oac8MAC_N51.jpg 233685 - a0OP6000003Oac8MAC_N42.jpg 233683 - a0OP6000003Oac8MAC_N37.jpg 233575 - blagraves_briggs_068.jpg 233692 - a0OP6000003Oac8MAC_N55.jpg 233702 - a0OP6000003Oac8MAC_N87.jpg 233703 - a0OP6000003Oac8MAC_N90.jpg 233591 - blagraves_briggs_084.jpg 233680 - a0OP6000003Oac8MAC_N30.jpg 233704 - a0OP6000003Oac8MAC_N94.jpg 233691 - a0OP6000003Oac8MAC_N53.jpg 233690 - a0OP6000003Oac8MAC_N52.jpg 233693 - a0OP6000003Oac8MAC_N57.jpg 233694 - a0OP6000003Oac8MAC_N58.jpg 233696 - a0OP6000003Oac8MAC_N64.jpg 233699 - a0OP6000003Oac8MAC_N79.jpg 233586 - blagraves_briggs_079.jpg 233700 - a0OP6000003Oac8MAC_N82.jpg 233705 - a0OP6000003Oac8MAC_N96.jpg 233707 - a0OP6000003Oac8MAC_N106.jpg

Nearby Streets

NameAverage PriceAverage SqftDistance
West View £ 000.00 KM
Gray Lane £ 000.00 KM
St Marys Close £ 244,95000.00 KM
Chapel Court £ 000.00 KM
Hole in the Wall £ 000.00 KM

Nearby Listings

AddressPriceTypeScoreDistance
Blagraves, Barnard Castle, County Durham £ 550,000BUY6 / 100.00 KM
The Bank, Barnard Castle, County Durham, DL12 £ 350,000BUY5 / 100.02 KM
The Bank, Barnard Castle £ 200,000BUY5 / 100.05 KM
The Bank, Barnard Castle £ 180,000BUY6 / 100.05 KM
The Bank, Barnard Castle, DL12 £ 200,000BUYUnknown0.05 KM

Nearby Properties

AddressPriceDistance
44 The Bank £ 430,0000.10 KM
34 The Bank £ 250,0000.10 KM
46 The Bank £ 260,0000.10 KM
52 The Bank £ 213,0000.10 KM
37 The Bank £ 310,0000.11 KM