PR
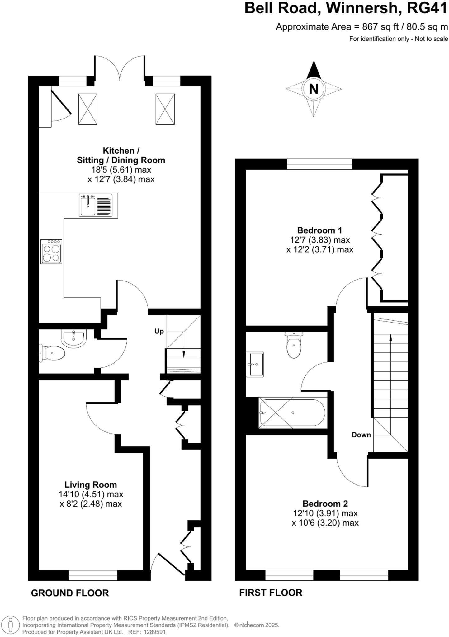
Bell Road, Winnersh, RG41
By Property Assistant UK Ltd
£ 400,000
Reviews
3 out of 5 stars
Property Assistant UK Ltd says ..
Charming two double bedroom terraced home with low maintenance garden, off-road parking and unique living space providing versatile accommodation.
Property Oracle says ..
Therefore, we give this property 7 / 10. *Disclaimer: This is our option and does constitute a recommendation or financial advice. Do your own research. *
- Price
- 8
- Condition
- 8
- Location
- 7
- Land
- 7
- Bedrooms
- 2
- Bathrooms
- 1
- Sqft (est)
- 867.00
The heatmap indicates the level of crime in the area. The color of the heatmap indicates the crime severity and recency.
Metrics Year-on-Year
- Average area value
- 750,000.00 £Increased by 26.30 %
- Est sale value
- 273,972.00 £Decreased by 28.83 %
- Average area rental value
- 2,175.00 £/moIncreased by 10.29 %
- Est letting value
- 0.00 £/moDecreased by 100.00 %
- Est rental Yield
- 3.48 %Decreased by 12.56 %
- Crime Rate
- 10.00 %Unchanged by 0.00 %
from 593,827.00 £
from 384,948.00 £
from 1,972.00 £/mo
from 867.00 £/mo
from 3.98 %
from 10.00 %
Agent Activity
Property Assistant UK Ltd created the listing.
Nearby Schools
| Name | Type | Ofsted | Distance |
|---|---|---|---|
| Bearwood Primary School | Community School | Good | 1.06 KM |
| Winnersh Children'S Centre | Children's Centre | 1.07 KM | |
| The Forest School | Academy Converter | Good | 1.47 KM |
| Reddam House Berkshire | Other Independent School | 1.50 KM | |
| Hawkedon Primary School | Community School | Good | 1.74 KM |
Images
Nearby Streets
| Name | Average Price | Average Sqft | Distance |
|---|---|---|---|
| Rhodes Close | £ 0 | 0 | 0.00 KM |
| Sidney Linton Way | £ 0 | 0 | 0.00 KM |
| Mermaid Close | £ 0 | 0 | 0.00 KM |
| Baslow Road | £ 560,000 | 0 | 0.00 KM |
| Hermes Close | £ 0 | 0 | 0.00 KM |
Nearby Transport
| Name | NLC | TLC | Distance |
|---|---|---|---|
| Winnersh Triangle | 5698 | WTI | 1.01 KM |
| Winnersh | 5697 | WNS | 1.49 KM |
| Earley | 5694 | EAR | 3.43 KM |
| Wokingham | 5696 | WKM | 5.56 KM |
| Twyford | 3155 | TWY | 6.09 KM |
Nearby Listings
| Address | Price | Type | Score | Distance |
|---|---|---|---|---|
| Bell Road, Winnersh, RG41 | £ 400,000 | BUY | 7 / 10 | 0.00 KM |
| Bell Road, Winnersh, Wokingham, RG41 | £ 425,000 | BUY | 6 / 10 | 0.01 KM |
| Glasspool Road, Winnersh, RG41 | £ 850,000 | BUY | 8 / 10 | 0.07 KM |
| Hambleton Way, Winnersh, RG41 | £ 380,000 | BUY | 7 / 10 | 0.11 KM |
| Hambleton Way, Wokingham, Berkshire, RG41 | £ 125,000 | BUY | 6 / 10 | 0.12 KM |
Nearby Properties
| Address | Price | Distance |
|---|---|---|
| 6 Guernsey Way | £ 169,950 | 0.37 KM |
| 7 Guernsey Way | £ 222,500 | 0.37 KM |
| 2 Guernsey Way | £ 379,950 | 0.37 KM |
| 17 Guernsey Way | £ 375,000 | 0.37 KM |
| 3 Guernsey Way | £ 330,000 | 0.37 KM |