Ellis & Co says ..
Nestled in a quiet and charming neighbourhood, this immaculately presented maisonette offers a spacious and modern living space spread across two levels. The property boasts three well-proportioned bedrooms, a bright reception room, two contemporary bathrooms with additional guest toi...
Property Oracle says ..
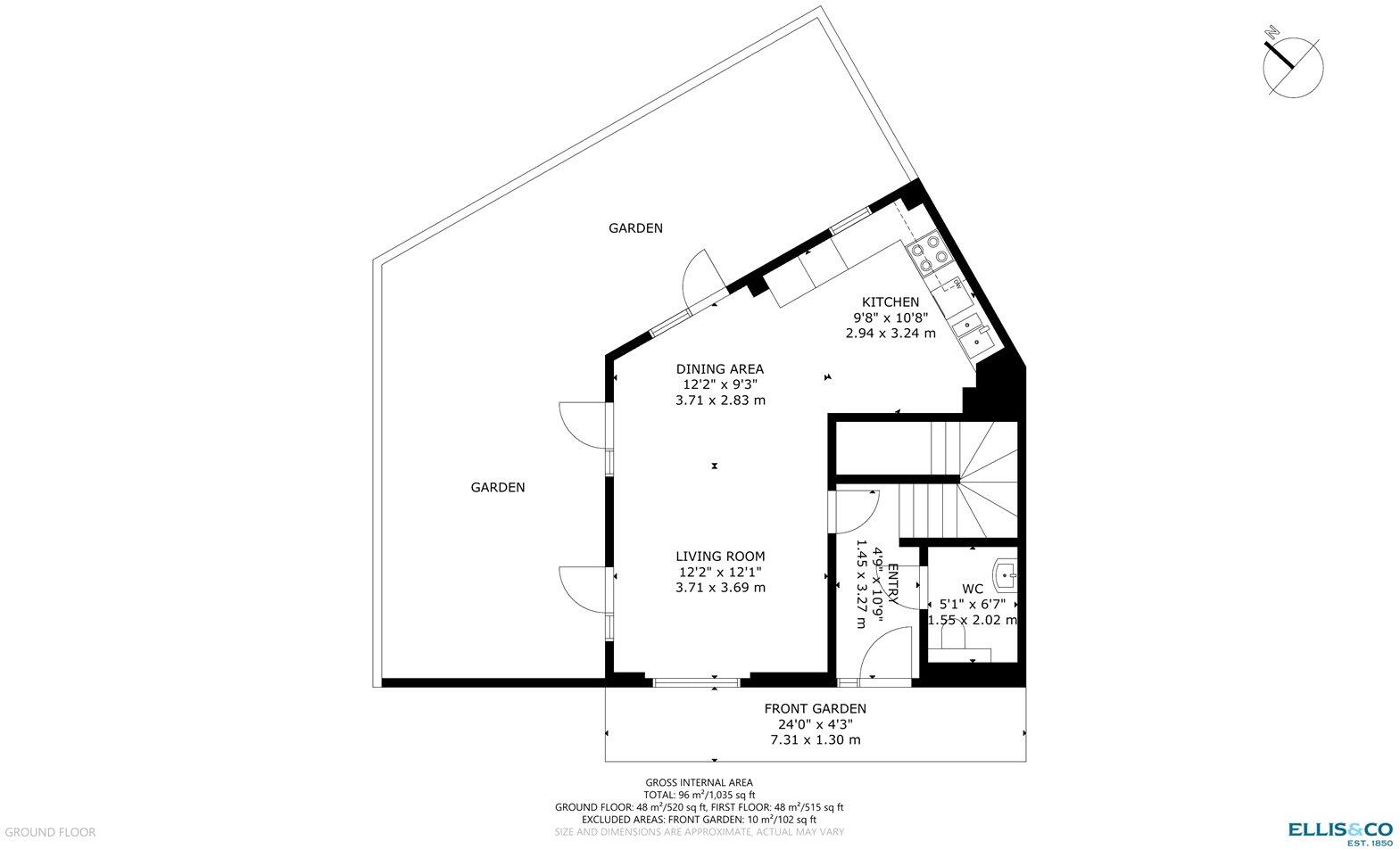
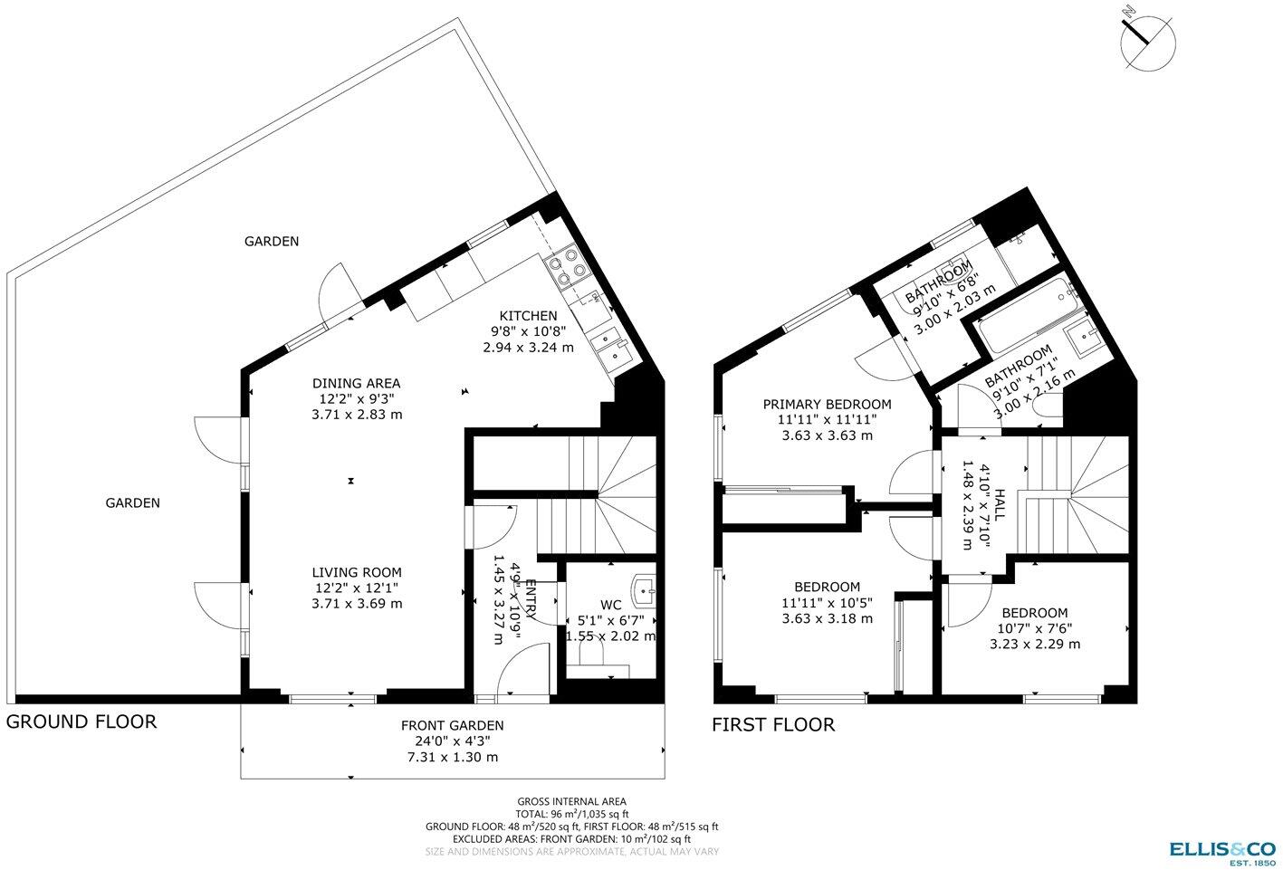
The property is located in Wembley, a suburban area in Brent, London. It is a 3-bedroom, 2-bathroom house with a total area of 1,033.34 sqft and a small garden. The location benefits from relatively close proximity to Sudbury Hill Harrow and Wembley Central train stations, offering convenient access to public transport. Several primary and secondary schools are within a reasonable distance, making it potentially suitable for families. The property itself appears to be in good condition, based on the provided images, with a modern and well-maintained interior. However, the plot size is small. The list price of £525,000 seems relatively high compared to other properties in the area, especially considering the limited land.
Therefore, we give this property 5 / 10. *Disclaimer: This is our option and does constitute a recommendation or financial advice. Do your own research. *
- Price
- 5
- Condition
- 8
- Location
- 7
- Land
- 3
- Bedrooms
- 3
- Bathrooms
- 2
- Sqft (est)
- 1,033.34
The heatmap indicates the level of crime in the area. The color of the heatmap indicates the crime severity and recency.
Metrics Year-on-Year
- Average area value
- 497,772.00 £Increased by 11.11 %
- Est sale value
- 618,970.66 £Increased by 37.70 %
- Average area rental value
- 1,863.00 £/moDecreased by 5.72 %
- Est letting value
- 2,066.68 £/moIncreased by 100.00 %
- Est rental Yield
- 4.49 %Decreased by 15.12 %
- Crime Rate
- 15.00 %Unchanged by 0.00 %
Agent Activity
Ellis & Co created the listing.
Nearby Schools
| Name | Type | Ofsted | Distance |
|---|---|---|---|
| Sudbury Primary School | Academy Converter | Good | 0.69 KM |
| Wembley High Technology College | Academy Converter | 1.25 KM | |
| Barham Primary School | Community School | Good | 1.32 KM |
| North Brent School | Free Schools | 1.47 KM | |
| East Lane Primary School | Academy Converter | Outstanding | 1.47 KM |
Images
Nearby Streets
| Name | Average Price | Average Sqft | Distance |
|---|---|---|---|
| Chestnut Grove | £ 528,333 | 0 | 0.00 KM |
| Allendale Road | £ 367,500 | 0 | 0.00 KM |
| Chestnut Avenue | £ 621,667 | 0 | 0.00 KM |
| Whitton Close | £ 0 | 0 | 0.00 KM |
| Elms Lane | £ 499,950 | 0 | 0.00 KM |
Nearby Transport
| Name | NLC | TLC | Distance |
|---|---|---|---|
| Sudbury And Harrow Road | 1483 | SUD | 0.20 KM |
| North Wembley | 1422 | NWB | 1.75 KM |
| South Kenton | 1453 | SOK | 2.04 KM |
| Sudbury Hill Harrow | 1484 | SDH | 2.11 KM |
| Wembley Central | 1423 | WMB | 2.31 KM |
Nearby Listings
| Address | Price | Type | Score | Distance |
|---|---|---|---|---|
| Williams Way, Wembley, HA0 | £ 525,000 | BUY | 5 / 10 | 0.00 KM |
| Williams Way, Wembley, HA0 267 | £ 345,000 | BUY | 6 / 10 | 0.01 KM |
| Williams Way, Wembley | £ 400,000 | BUY | 7 / 10 | 0.01 KM |
| Williams Way, Wembley, HA0 | £ 375,000 | BUY | 5 / 10 | 0.02 KM |
| Williams Way, HA0 | £ 305,000 | BUY | Unknown | 0.07 KM |
Nearby Properties
| Address | Price | Distance |
|---|---|---|
| 297 Williams Way | £ 250,000 | 0.01 KM |
| 257 Williams Way | £ 241,500 | 0.01 KM |
| 299 Williams Way | £ 377,500 | 0.01 KM |
| 265 Williams Way | £ 242,500 | 0.01 KM |
| 279 Williams Way | £ 300,000 | 0.01 KM |