Bungalow set within approximately 8 acres, Nancledra
By Mather Partnership
£ 725,000
Reviews
3 out of 5 stars
Mather Partnership says ..
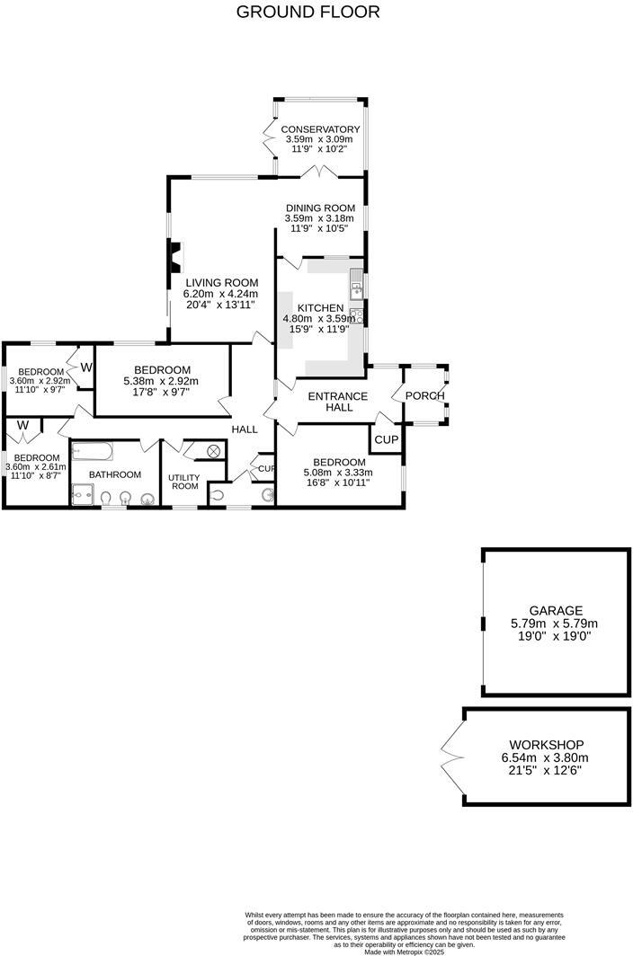
This is a rare opportunity to purchase a spacious detached bungalow, in a quiet and peaceful location. Set within generous gardens that span approximately 8 acres, this property is surrounded by natural beauty, offering both privacy and space for outdoor activities. The bungalow features two invi...
Property Oracle says ..
This detached bungalow in Nancledra, Cornwall, offers a unique opportunity to acquire a property with a substantial amount of land. The property features four bedrooms and one bathroom, a modern kitchen, and a conservatory. While the condition is generally good, some areas may benefit from updating. The expansive 8-acre plot is a standout feature, providing ample space and privacy. The location, while rural, is within a reasonable distance of local amenities and schools. The price reflects the value of the land and the size of the property, but potential buyers should consider the cost of any desired renovations.
Therefore, we give this property 6 / 10. *Disclaimer: This is our option and does constitute a recommendation or financial advice. Do your own research. *
- Price
- 6
- Condition
- 6
- Location
- 6
- Land
- 9
- Bedrooms
- 4
- Bathrooms
- 1
- Sqft (est)
- 1,735.57
The heatmap indicates the level of crime in the area. The color of the heatmap indicates the crime severity and recency.
Metrics Year-on-Year
- Average area value
- 444,916.00 £Decreased by 14.40 %
- Est sale value
- 916,380.96 £Increased by 4.35 %
- Average area rental value
- 2,300.00 £/moIncreased by 76.11 %
- Est letting value
- 3,471.14 £/moIncreased by 100.00 %
- Est rental Yield
- 6.20 %Increased by 105.30 %
- Crime Rate
- 0.00 %
Agent Activity
Mather Partnership created the listing.
Nearby Schools
| Name | Type | Ofsted | Distance |
|---|---|---|---|
| Nancledra School | Academy Converter | Good | 1.38 KM |
| Ludgvan School | Academy Converter | Good | 3.61 KM |
| St Ives School | Academy Sponsor Led | Good | 4.53 KM |
| Gulval School | Academy Sponsor Led | Good | 4.64 KM |
| St Ives Junior School | Community School | Outstanding | 4.73 KM |
Images
Nearby Streets
| Name | Average Price | Average Sqft | Distance |
|---|---|---|---|
| Baldhu Lane | £ 0 | 0 | 0.00 KM |
| The Field | £ 450,000 | 0 | 0.00 KM |
| Croft Road | £ 412,500 | 0 | 0.00 KM |
| The Mowhay | £ 0 | 0 | 0.00 KM |
Nearby Transport
| Name | NLC | TLC | Distance |
|---|---|---|---|
| St Ives (Cornwall) | 3538 | SIV | 5.34 KM |
| Carbis Bay | 3542 | CBB | 5.53 KM |
| Penzance | 3526 | PNZ | 6.08 KM |
| St Erth | 3537 | SER | 6.67 KM |
| Lelant Saltings | 3498 | LTS | 7.12 KM |
Nearby Listings
| Address | Price | Type | Score | Distance |
|---|---|---|---|---|
| Bungalow set within approximately 8 acres, Nancledra | £ 725,000 | BUY | 6 / 10 | 0.00 KM |
| The Field, Nancledra, TR20 8NB | £ 450,000 | BUY | Unknown | 0.29 KM |
| Chypons Estate, Nancledra, Penzance, Cornwall | £ 260,000 | BUY | Unknown | 0.46 KM |
| Chypons Estate, Nancledra, Penzance, Cornwall | £ 69,950 | BUY | Unknown | 0.47 KM |
| Nancledra, Penzance, TR20 | £ 610,000 | BUY | 8 / 10 | 0.47 KM |
Nearby Properties
| Address | Price | Distance |
|---|---|---|
| 5 Baldhu Row | £ 208,000 | 0.45 KM |
| 1 Baldhu Row | £ 385,000 | 0.45 KM |
| 6 Baldhu Row | £ 171,000 | 0.45 KM |
| 3 Baldhu Row | £ 255,000 | 0.45 KM |
| 2 Chypons Estate | £ 195,000 | 0.47 KM |